Log In/Sign Up
Your email has been sent.
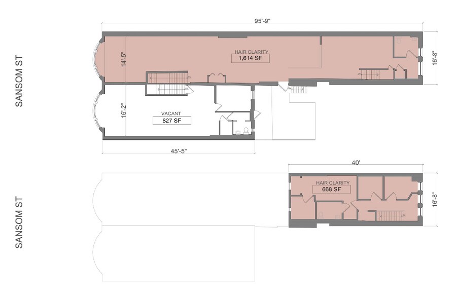
1532-1534 Sansom St
Philadelphia, PA 19102
1532-34 Sansom St · Retail Property For Lease
·
2,282 SF


HIGHLIGHTS
- Rare 2nd generation salon space available in the heart of Rittenhouse
PROPERTY FACTS
| Total Space Available | 2,282 SF | Gross Leasable Area | 7,134 SF |
| Property Type | Retail | Year Built | 1920 |
| Property Subtype | Storefront Retail/Office |
| Total Space Available | 2,282 SF |
| Property Type | Retail |
| Property Subtype | Storefront Retail/Office |
| Gross Leasable Area | 7,134 SF |
| Year Built | 1920 |
ABOUT THE PROPERTY
2,282 SF available for lease
1 of 6
VIDEOS
MATTERPORT 3D EXTERIOR
MATTERPORT 3D TOUR
PHOTOS
STREET VIEW
STREET
MAP
