Your email has been sent.
PARK HIGHLIGHTS
- On-site leasing and management. Located in the heart of Orange County's high tech research and development center.
PARK FACTS
| Total Space Available | 12,810 SF | Cross Streets | Technology Dr |
| Park Type | Industrial Park | Features | Property Manager on Site |
| Total Space Available | 12,810 SF |
| Park Type | Industrial Park |
| Cross Streets | Technology Dr |
| Features | Property Manager on Site |
FEATURES AND AMENITIES
- Property Manager on Site
ALL AVAILABLE SPACES(7)
Display Rental Rate as
- SPACE
- SIZE
- TERM
- RENTAL RATE
- SPACE USE
- CONDITION
- AVAILABLE
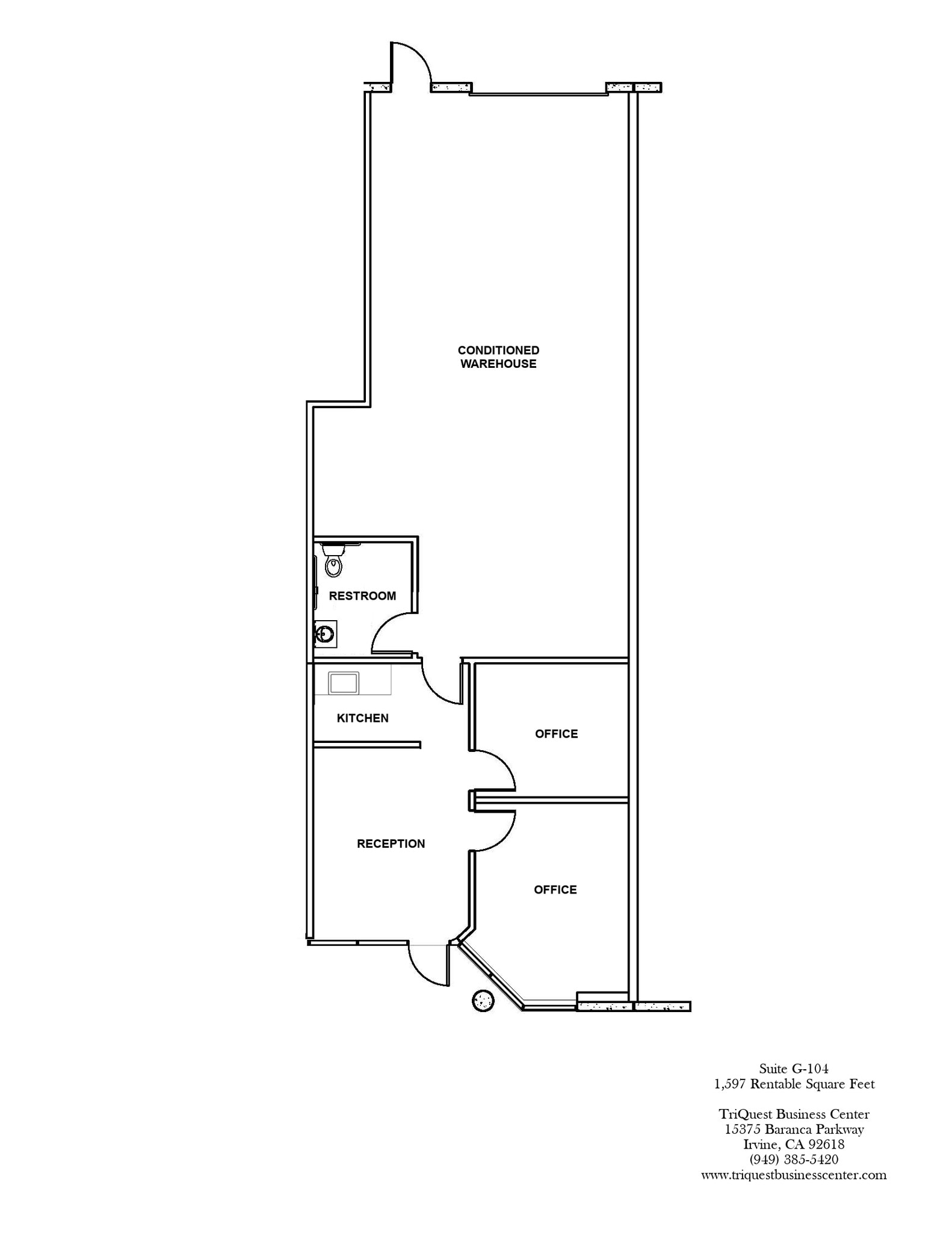
Reception space, 2 private offices, private restroom, kitchenette and large insulated warehouse. *Under renovation
- Lease rate does not include utilities, property expenses or building services
| Space | Size | Term | Rental Rate | Space Use | Condition | Available |
| 1st Floor - G-104 | 1,597 SF | 3-5 Years | $34.86 CAD/SF/YR $2.91 CAD/SF/MO $55,673 CAD/YR $4,639 CAD/MO | Flex | Full Build-Out | 30 Days |
15375 Barranca Pky - 1st Floor - G-104
- SPACE
- SIZE
- TERM
- RENTAL RATE
- SPACE USE
- CONDITION
- AVAILABLE
Large reception or office area, two private offices, private restroom, kitchenette and large air-conditioned warehouse.
- Lease rate does not include utilities, property expenses or building services
| Space | Size | Term | Rental Rate | Space Use | Condition | Available |
| 1st Floor - K-101 | 1,800 SF | 3-5 Years | $34.86 CAD/SF/YR $2.91 CAD/SF/MO $62,750 CAD/YR $5,229 CAD/MO | Flex | - | Now |
15375 Barranca Pky - 1st Floor - K-101
- SPACE
- SIZE
- TERM
- RENTAL RATE
- SPACE USE
- CONDITION
- AVAILABLE
**MOVE-IN SPECIAL** 4 private offices, large open office area and kitchenette. *CAM + $0.18 psf electricity charge
- Lease rate does not include utilities, property expenses or building services
Large open office area and two private offices. *CAM + $0.18 psf electricity charge
- Lease rate does not include utilities, property expenses or building services
**MOVE-IN SPECIAL** 4 private offices, large open office area, and breakroom with kitchenette. *CAM + $0.18 psf electricity charge
- Lease rate does not include utilities, property expenses or building services
**MOVE-IN SPECIAL** 2 private offices, 2 conference rooms or offices, reception area, large open office space, and breakroom with kitchenette. *CAM + $0.18 psf electricity charge
- Lease rate does not include utilities, property expenses or building services
| Space | Size | Term | Rental Rate | Space Use | Condition | Available |
| 2nd Floor - A-202 | 1,276 SF | 3-5 Years | $26.56 CAD/SF/YR $2.21 CAD/SF/MO $33,892 CAD/YR $2,824 CAD/MO | Flex | Full Build-Out | Now |
| 2nd Floor - A-208 | 629 SF | 3-5 Years | $39.01 CAD/SF/YR $3.25 CAD/SF/MO $24,538 CAD/YR $2,045 CAD/MO | Flex | Full Build-Out | Now |
| 2nd Floor - A-211 | 1,717 SF | 3-5 Years | $26.56 CAD/SF/YR $2.21 CAD/SF/MO $45,605 CAD/YR $3,800 CAD/MO | Flex | Full Build-Out | Now |
| 2nd Floor - A-212 | 2,290 SF | 3-5 Years | $26.56 CAD/SF/YR $2.21 CAD/SF/MO $60,824 CAD/YR $5,069 CAD/MO | Flex | Full Build-Out | Now |
15375 Barranca Pky - 2nd Floor - A-202
15375 Barranca Pky - 2nd Floor - A-208
15375 Barranca Pky - 2nd Floor - A-211
15375 Barranca Pky - 2nd Floor - A-212
- SPACE
- SIZE
- TERM
- RENTAL RATE
- SPACE USE
- CONDITION
- AVAILABLE
**MOVE-IN SPECIAL** Reception space, 7 private offices, 2 office/conference rooms, 1 large open office area, breakroom and private secondary entrance/exit. *CAM + $0.18 psf electricity charge
- Lease rate does not include utilities, property expenses or building services
| Space | Size | Term | Rental Rate | Space Use | Condition | Available |
| 2nd Floor - B-209 | 3,501 SF | 3-5 Years | $29.88 CAD/SF/YR $2.49 CAD/SF/MO $104,613 CAD/YR $8,718 CAD/MO | Flex | Full Build-Out | 2026-04-01 |
15375 Barranca Pky - 2nd Floor - B-209
15375 Barranca Pky - 1st Floor - G-104
| Size | 1,597 SF |
| Term | 3-5 Years |
| Rental Rate | $34.86 CAD/SF/YR |
| Space Use | Flex |
| Condition | Full Build-Out |
| Available | 30 Days |
Reception space, 2 private offices, private restroom, kitchenette and large insulated warehouse. *Under renovation
- Lease rate does not include utilities, property expenses or building services
15375 Barranca Pky - 1st Floor - K-101
| Size | 1,800 SF |
| Term | 3-5 Years |
| Rental Rate | $34.86 CAD/SF/YR |
| Space Use | Flex |
| Condition | - |
| Available | Now |
Large reception or office area, two private offices, private restroom, kitchenette and large air-conditioned warehouse.
- Lease rate does not include utilities, property expenses or building services
15375 Barranca Pky - 2nd Floor - A-202
| Size | 1,276 SF |
| Term | 3-5 Years |
| Rental Rate | $26.56 CAD/SF/YR |
| Space Use | Flex |
| Condition | Full Build-Out |
| Available | Now |
**MOVE-IN SPECIAL** 4 private offices, large open office area and kitchenette. *CAM + $0.18 psf electricity charge
- Lease rate does not include utilities, property expenses or building services
15375 Barranca Pky - 2nd Floor - A-208
| Size | 629 SF |
| Term | 3-5 Years |
| Rental Rate | $39.01 CAD/SF/YR |
| Space Use | Flex |
| Condition | Full Build-Out |
| Available | Now |
Large open office area and two private offices. *CAM + $0.18 psf electricity charge
- Lease rate does not include utilities, property expenses or building services
15375 Barranca Pky - 2nd Floor - A-211
| Size | 1,717 SF |
| Term | 3-5 Years |
| Rental Rate | $26.56 CAD/SF/YR |
| Space Use | Flex |
| Condition | Full Build-Out |
| Available | Now |
**MOVE-IN SPECIAL** 4 private offices, large open office area, and breakroom with kitchenette. *CAM + $0.18 psf electricity charge
- Lease rate does not include utilities, property expenses or building services
15375 Barranca Pky - 2nd Floor - A-212
| Size | 2,290 SF |
| Term | 3-5 Years |
| Rental Rate | $26.56 CAD/SF/YR |
| Space Use | Flex |
| Condition | Full Build-Out |
| Available | Now |
**MOVE-IN SPECIAL** 2 private offices, 2 conference rooms or offices, reception area, large open office space, and breakroom with kitchenette. *CAM + $0.18 psf electricity charge
- Lease rate does not include utilities, property expenses or building services
15375 Barranca Pky - 2nd Floor - B-209
| Size | 3,501 SF |
| Term | 3-5 Years |
| Rental Rate | $29.88 CAD/SF/YR |
| Space Use | Flex |
| Condition | Full Build-Out |
| Available | 2026-04-01 |
**MOVE-IN SPECIAL** Reception space, 7 private offices, 2 office/conference rooms, 1 large open office area, breakroom and private secondary entrance/exit. *CAM + $0.18 psf electricity charge
- Lease rate does not include utilities, property expenses or building services
SITE PLAN
PARK OVERVIEW
Buildings at TriQuest Business Center feature advanced architectural design that complement the image of established and growing companies. The TriQuest Business Center is centrally located in the heart of Orange County at the intersection of three major freeways. On-site leasing and management. On-site deli and cafe. Suites from approximately 450 - 10,000 square feet. Office, R&D, and Industrial suites available. Industrial suites have ground level roll-up doors. Ample parking available. Parking ratio is 3.75/1000. Pre-improved units available for immediate occupancy. Park-like settings. Master planned 13.7 acre business park. Located in the heart of Orange County' s high tech research and development center. Located at the intersection of 3 major freeways (5, 405, & 133). 1 mile from the Irvine Transportation Center and Rail Station. 1 mile from the Irvine Spectrum. 3 miles from the Irvine Medical Center. 10 minutes from John Wayne Airport.
Presented by
TriQuest Business Center | Irvine, CA 92618
Hmm, there seems to have been an error sending your message. Please try again.
Thanks! Your message was sent.


















