Log In/Sign Up
Your email has been sent.
Features
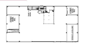
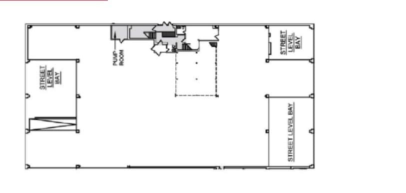
Clear Height
20’
Column Spacing
48’ x 35’
Drive In Bays
1
Exterior Dock Doors
9
All Available Space(1)
Display Rental Rate as
- Space
- Size
- Term
- Rental Rate
- Space Use
- Condition
- Available
- Sublease space available from current tenant
- Space is in Excellent Condition
- Includes 300 SF of dedicated office space
| Space | Size | Term | Rental Rate | Space Use | Condition | Available |
| 1st Floor | 19,418 SF | Apr 2028 | Upon Request Upon Request Upon Request Upon Request | Industrial | Full Build-Out | Now |
1st Floor
| Size |
| 19,418 SF |
| Term |
| Apr 2028 |
| Rental Rate |
| Upon Request Upon Request Upon Request Upon Request |
| Space Use |
| Industrial |
| Condition |
| Full Build-Out |
| Available |
| Now |
1 of 1
Videos
Matterport 3D Exterior
Matterport 3D Tour
Photos
Street View
Street
Map
1st Floor
| Size | 19,418 SF |
| Term | Apr 2028 |
| Rental Rate | Upon Request |
| Space Use | Industrial |
| Condition | Full Build-Out |
| Available | Now |
- Sublease space available from current tenant
- Includes 300 SF of dedicated office space
- Space is in Excellent Condition
Warehouse Facility Facts
Building Size
45,922 SF
Lot Size
0.78 AC
Year Built
1994
Construction
Masonry
Water
City
Sewer
City
Heating
Gas
Zoning
M1-1 - a light manufacturing district that allows for manufacturing, commercial, and community facility uses
Select Tenants
- Floor
- Tenant Name
- Industry
- 3rd
- General Noli
- Transportation and Warehousing
- 3rd
- GIF Services
- Transportation and Warehousing
- 1st
- Hankyu Hanshin Express USA
- Transportation and Warehousing
- 1st
- SF Express
- Transportation and Warehousing
- 3rd
- Teitelbaum Robert L Inc
- Construction
- 3rd
- Unique Logistics
- Transportation and Warehousing
1 1
1 of 13
Videos
Matterport 3D Exterior
Matterport 3D Tour
Photos
Street View
Street
Map
1 of 1
Presented by
154-09 146th Ave
Already a member? Log In
Hmm, there seems to have been an error sending your message. Please try again.
Thanks! Your message was sent.





