Your email has been sent.
Highlights
- Built in 2007, Ample Paved Parking, High Traffic Area close to I-91, Route 3 and Routes 5/15.
Display Rental Rate as
- Space
- Size
- Term
- Rental Rate
- Rent Type
| Space | Size | Term | Rental Rate | Rent Type | ||
| 2nd Floor, Ste 2 | 1,313 SF | Negotiable | Upon Request Upon Request Upon Request Upon Request | TBD |
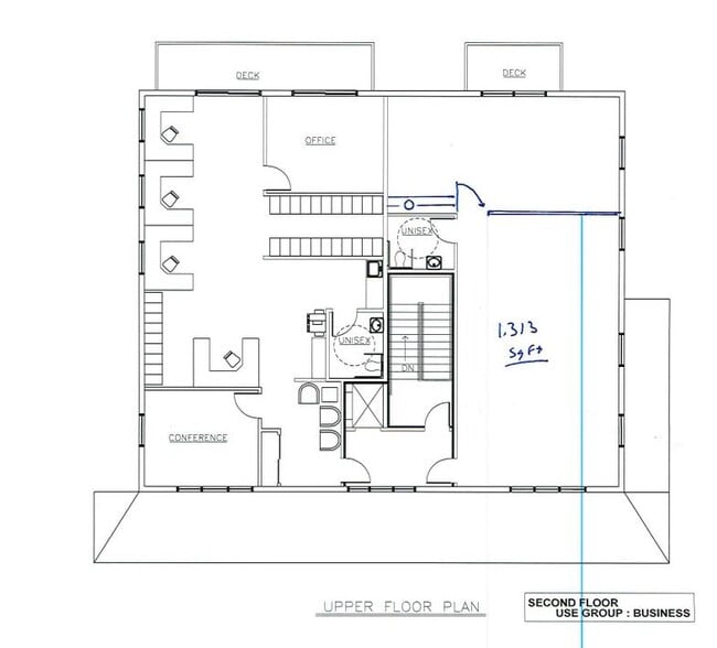
154 New Britain Ave - 2nd Floor - Ste 2
- Fully Built-Out as Standard Office
- Mostly Open Floor Plan Layout
- Fits 4 - 11 People
- Space
- Size
- Term
- Rental Rate
- Rent Type
| Space | Size | Term | Rental Rate | Rent Type | ||
| 1st Floor, Ste 3000 | 3,000 SF | 10 Years | $24.67 CAD/SF/YR $2.06 CAD/SF/MO $74,002 CAD/YR $6,167 CAD/MO | Triple Net (NNN) | ||
| 2nd Floor, Ste 2 | 1,313 SF | Negotiable | Upon Request Upon Request Upon Request Upon Request | TBD |
154 New Britain Ave - 1st Floor - Ste 3000
- Lease rate does not include utilities, property expenses or building services
- Central Air and Heating
- Freezer Space
- Wi-Fi Connectivity
- Fully Carpeted
- Drop Ceilings
- Emergency Lighting
- After Hours HVAC Available
- Smoke Detector
- Wheelchair Accessible
154 New Britain Ave - 2nd Floor - Ste 2
- Fully Built-Out as Standard Office
- Mostly Open Floor Plan Layout
- Fits 4 - 11 People
Rent Types
The rent amount and type that the tenant (lessee) will be responsible to pay to the landlord (lessor) throughout the lease term is negotiated prior to both parties signing a lease agreement. The rent type will vary depending upon the services provided. For example, triple net rents are typically lower than full service rents due to additional expenses the tenant is required to pay in addition to the base rent. Contact the listing broker for a full understanding of any associated costs or additional expenses for each rent type.
1. Full Service: A rental rate that includes normal building standard services as provided by the landlord within a base year rental.
2. Double Net (NN): Tenant pays for only two of the building expenses; the landlord and tenant determine the specific expenses prior to signing the lease agreement.
3. Triple Net (NNN): A lease in which the tenant is responsible for all expenses associated with their proportional share of occupancy of the building.
4. Modified Gross: Modified Gross is a general type of lease rate where typically the tenant will be responsible for their proportional share of one or more of the expenses. The landlord will pay the remaining expenses. See the below list of common Modified Gross rental rate structures: 4. Plus All Utilities: A type of Modified Gross Lease where the tenant is responsible for their proportional share of utilities in addition to the rent. 4. Plus Cleaning: A type of Modified Gross Lease where the tenant is responsible for their proportional share of cleaning in addition to the rent. 4. Plus Electric: A type of Modified Gross Lease where the tenant is responsible for their proportional share of the electrical cost in addition to the rent. 4. Plus Electric & Cleaning: A type of Modified Gross Lease where the tenant is responsible for their proportional share of the electrical and cleaning cost in addition to the rent. 4. Plus Utilities and Char: A type of Modified Gross Lease where the tenant is responsible for their proportional share of the utilities and cleaning cost in addition to the rent. 4. Industrial Gross: A type of Modified Gross lease where the tenant pays one or more of the expenses in addition to the rent. The landlord and tenant determine these prior to signing the lease agreement.
5. Tenant Electric: The landlord pays for all services and the tenant is responsible for their usage of lights and electrical outlets in the space they occupy.
6. Negotiable or Upon Request: Used when the leasing contact does not provide the rent or service type.
7. TBD: To be determined; used for buildings for which no rent or service type is known, commonly utilized when the buildings are not yet built.
Select Tenants at Old Main Village
- Tenant
- Description
- US Locations
- Reach
- Commercial Services Realty
- Real Estate
- -
- -
- Fitness Together
- Services
- -
- -
- Four Seasons Nail Salon
- Services
- -
- -
- Kiddie Academy
- Daycare
- 481
- National
- Shear 2000
- Services
- -
- -
- West Hill Family Dental
- Health Care and Social Assistance
- -
- -
| Tenant | Description | US Locations | Reach |
| Commercial Services Realty | Real Estate | - | - |
| Fitness Together | Services | - | - |
| Four Seasons Nail Salon | Services | - | - |
| Kiddie Academy | Daycare | 481 | National |
| Shear 2000 | Services | - | - |
| West Hill Family Dental | Health Care and Social Assistance | - | - |
Property Facts
| Total Space Available | 4,313 SF | Center Properties | 2 |
| Center Type | Strip Center | Gross Leasable Area | 18,000 SF |
| Parking | 50 Spaces | Total Land Area | 6.00 AC |
| Stores | 3 | Year Built | 2007 |
| Total Space Available | 4,313 SF |
| Center Type | Strip Center |
| Parking | 50 Spaces |
| Stores | 3 |
| Center Properties | 2 |
| Gross Leasable Area | 18,000 SF |
| Total Land Area | 6.00 AC |
| Year Built | 2007 |
About the Property
13,200 vehicles per day pass by this location known as Old Main Village, 132-158 New Britain Ave., Rocky Hill. There is a diverse group of businesses, including Blue Chip Indian Eats, Shear 2000 Hair Salon, Four Seasons Nail Salon, Kiddie Academy Early Childhood Education Center, Rocky Hill Transitional Academy, Fitness Together, Horace Mann Insurance, West Hill Family Dental, Perfect Body Aesthetics, the Dream Cafe run by the Rocky Hill Board of Education and Commercial Services Realty. Close to West Hill Elementary School and many independently owned and chain businesses. $2,000/month.
- Bus Line
- Corner Lot
- Property Manager on Site
- Pylon Sign
- Signage
- Air Conditioning
- Balcony
Nearby Major Retailers
Presented by
Old Main Village | 154 New Britain Ave
Hmm, there seems to have been an error sending your message. Please try again.
Thanks! Your message was sent.



