Log In/Sign Up
Your email has been sent.
1540 Hannah Ave 13,000 SF 100% Leased Flex Building Forest Park, IL 60130 For Sale



Investment Highlights
- Conveniently located about one mile from the I-290 interchange and approximately 18 miles from O’Hare International Airport
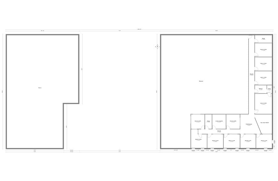
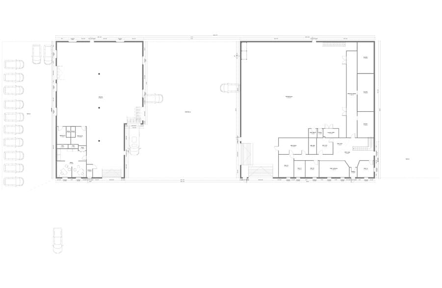
- Includes two drive-in doors (14’ and 10’) and a clear height of 17’8”, supporting a variety of industrial and flex uses.
- Situated on a 0.76-acre lot with 7,400 square feet of secured outdoor yard space and an additional parking lot for enhanced functionality.
Executive Summary
Beautiful custom buildout, recently renovated. Properties are 85% leased and generating $20,500/month gross. Long term LOI recently received for 1540. We have not exectured that LOI yet. Will be making a decision end of April.
Property Facts
| Sale Type | Investment | No. Stories | 1 |
| Property Type | Flex | Year Built/Renovated | 1970/2023 |
| Property Subtype | Light Distribution | Parking Ratio | 1.92/1,000 SF |
| Building Class | B | Clear Ceiling Height | 17’8” |
| Lot Size | 0.35 AC | No. Drive In / Grade-Level Doors | 2 |
| Rentable Building Area | 13,000 SF | ||
| Zoning | I-2 - Industrial District | ||
| Sale Type | Investment |
| Property Type | Flex |
| Property Subtype | Light Distribution |
| Building Class | B |
| Lot Size | 0.35 AC |
| Rentable Building Area | 13,000 SF |
| No. Stories | 1 |
| Year Built/Renovated | 1970/2023 |
| Parking Ratio | 1.92/1,000 SF |
| Clear Ceiling Height | 17’8” |
| No. Drive In / Grade-Level Doors | 2 |
| Zoning | I-2 - Industrial District |
1 1
Moderately walkable
70/100
Very drivable
80/100
Some public transit
40/100
Fairly bikeable
50/100
Property Taxes
| Parcel Number | 15-24-213-027-0000 | Improvements Assessment | $794 CAD |
| Land Assessment | $4,978 CAD | Total Assessment | $5,771 CAD |
Property Taxes
Parcel Number
15-24-213-027-0000
Land Assessment
$4,978 CAD
Improvements Assessment
$794 CAD
Total Assessment
$5,771 CAD
1 of 60
Videos
Matterport 3D Exterior
Matterport 3D Tour
Photos
Street View
Street
Map
1 of 1
Presented by
1540 Hannah Ave
Already a member? Log In
Hmm, there seems to have been an error sending your message. Please try again.
Thanks! Your message was sent.
