Your email has been sent.
Highlights
- Renovated 2024 - 2025
- Entire property was repaved
- Ownership will build to suit or combine spaces
- Flex Space featuring warehouse and office
- Streamwood is conveniently located near major highways, including Interstate 90 and the Elgin-O’Hare Expressway, providing easy access to Chicago
- Industrial Flex Space, Warehouse, office and Retail
Features
All Available Space(1)
Display Rental Rate as
- Space
- Size
- Term
- Rental Rate
- Space Use
- Build-Out
- Available
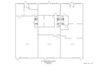
Suite 1541 A: Size: 3,917 sq. ft. Features: Open floor plan in warehouse, large windows in the front for natural light, private restrooms, and 14-foot ceilings in the warehouse space. Rear loading and unloading access to warehouse space. Two skylights in the warehouse space. 400 AMP Electricity service This property is a 2024 - 2025 renovated multi-unit commercial building located in a prime area, offering three separate units for lease. Each unit is designed to cater to a variety of business needs, providing flexibility and convenience for potential tenants. Ownership will build to suit. Ownership will consider combining spaces. Recent Renovations and Upgrades (2024 - 2025): New roof installed. New HVAC systems. New bathrooms. New warehouse overhead doors and rear entry doors. Suites 1541 A and 1541 B are equipped with a three-phase 400 AMP electricity service. Suite 1543 is equipped with a two-phase 200 AMP electricity service. The parking lot was paved and striped.
- Listed rate may not include certain utilities, building services and property expenses
- 1 Drive Bay
- Partitioned Offices
- Private Restrooms
- Plug & Play
- Yard
- Conference Rooms
- Flex space featuring warehouse and office
- Includes 900 SF of dedicated office space
- Central Air and Heating
- Reception Area
- Secure Storage
- High Ceilings
- After Hours HVAC Available
- Renovated 2025
| Space | Size | Term | Rental Rate | Space Use | Build-Out | Available |
| 1st Floor - 1541 A | 3,917 SF | 3-10 Years | $20.46 CAD/SF/YR $1.71 CAD/SF/MO $80,156 CAD/YR $6,680 CAD/MO | Flex | Full Build-Out | Now |
1st Floor - 1541 A
| Size |
| 3,917 SF |
| Term |
| 3-10 Years |
| Rental Rate |
| $20.46 CAD/SF/YR $1.71 CAD/SF/MO $80,156 CAD/YR $6,680 CAD/MO |
| Space Use |
| Flex |
| Build-Out |
| Full Build-Out |
| Available |
| Now |
1st Floor - 1541 A
| Size | 3,917 SF |
| Term | 3-10 Years |
| Rental Rate | $20.46 CAD/SF/YR |
| Space Use | Flex |
| Build-Out | Full Build-Out |
| Available | Now |
Suite 1541 A: Size: 3,917 sq. ft. Features: Open floor plan in warehouse, large windows in the front for natural light, private restrooms, and 14-foot ceilings in the warehouse space. Rear loading and unloading access to warehouse space. Two skylights in the warehouse space. 400 AMP Electricity service This property is a 2024 - 2025 renovated multi-unit commercial building located in a prime area, offering three separate units for lease. Each unit is designed to cater to a variety of business needs, providing flexibility and convenience for potential tenants. Ownership will build to suit. Ownership will consider combining spaces. Recent Renovations and Upgrades (2024 - 2025): New roof installed. New HVAC systems. New bathrooms. New warehouse overhead doors and rear entry doors. Suites 1541 A and 1541 B are equipped with a three-phase 400 AMP electricity service. Suite 1543 is equipped with a two-phase 200 AMP electricity service. The parking lot was paved and striped.
- Listed rate may not include certain utilities, building services and property expenses
- Includes 900 SF of dedicated office space
- 1 Drive Bay
- Central Air and Heating
- Partitioned Offices
- Reception Area
- Private Restrooms
- Secure Storage
- Plug & Play
- High Ceilings
- Yard
- After Hours HVAC Available
- Conference Rooms
- Renovated 2025
- Flex space featuring warehouse and office
Property Overview
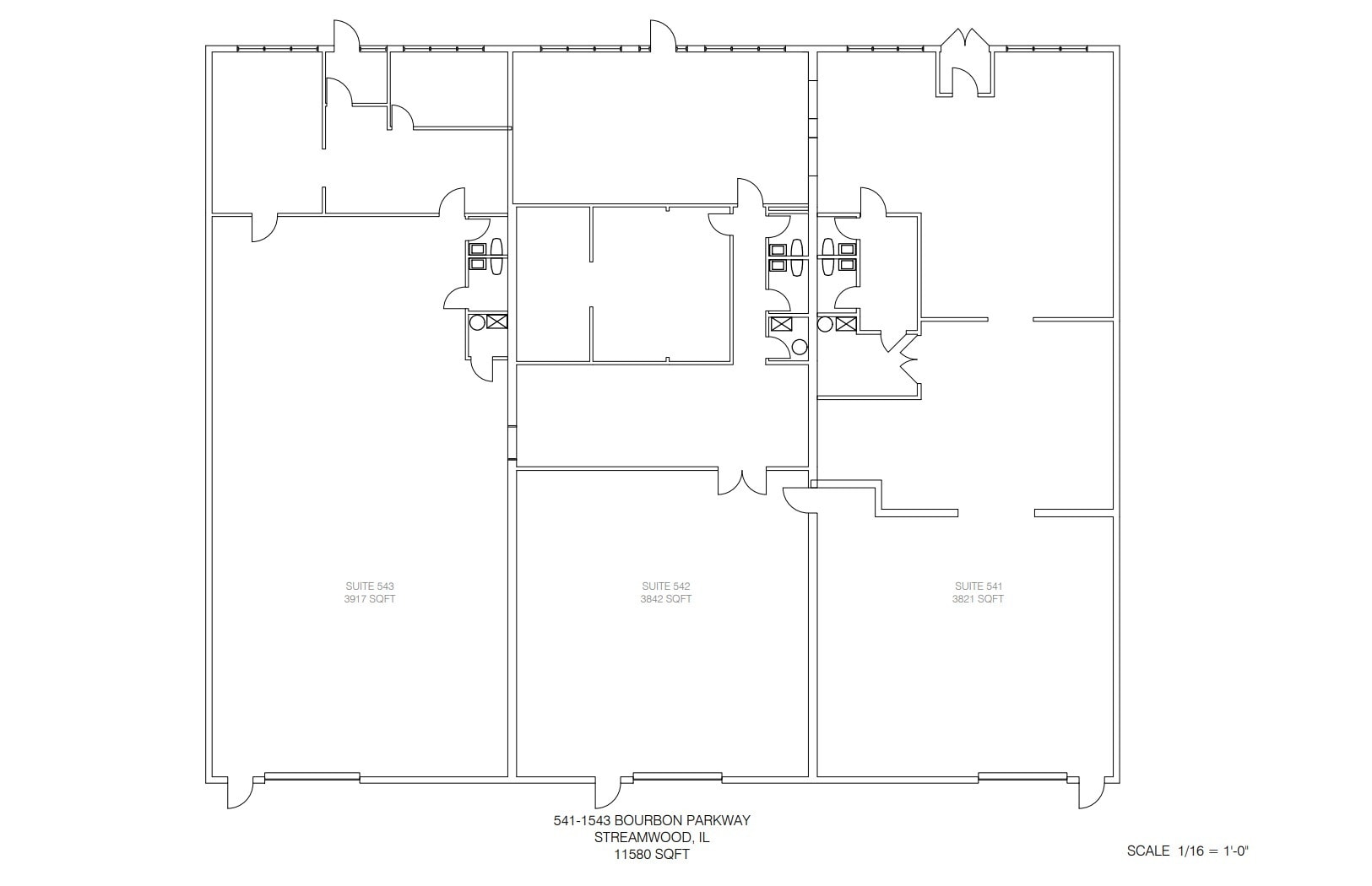
This property is a 2024 - 2025 renovated multi-unit commercial building located in a prime area, offering three separate units for lease. Each unit is designed to cater to a variety of business needs, providing flexibility and convenience for potential tenants. Ownership will build to suit. Ownership will consider combining spaces. Recent Renovations and Upgrades (2024 - 2025): New roof installed. New HVAC systems. New bathrooms. New warehouse overhead doors and rear entry doors. Suites 1541 A and 1541 B are equipped with a three-phase 400 AMP electricity service. Suite 1543 is equipped with a two-phase 200 AMP electricity service. The parking lot will be paved and striped. Tenant pays all utilities Modified Gross: Tenant will be responsible for prorated share of tax increases after base year
Property Facts
Presented by
1541-1543 Bourbon Pky
Hmm, there seems to have been an error sending your message. Please try again.
Thanks! Your message was sent.





