Your email has been sent.
Park Highlights
- Offers great street visibility, plentiful parking and floor plans that are designed for office/warehouse use
- Off the 5 and 55 Freeways near John Wayne Airport, shopping, and restaurants
- Warehouse units and truck doors with 14’-16’ ground-level clear height
- Floor Plans that are Designed for Office-Warehouse Use
- Located Off the 5 & 55 Freeways near John Wayne Airport, Shopping, and Restaurants
- Great street visibility & plentiful parking
- Street frontage and an opportunity for signage on Redhill or Valencia Ave
- Proximity to the 5 Freeway, the Newport Beach 55 Freeway, and the Toll Road
- Great Street Visibility and Plentiful Parking
Park Facts
| Total Space Available | 8,640 SF | Park Type | Industrial Park |
| Total Space Available | 8,640 SF |
| Park Type | Industrial Park |
Display Rental Rate as
- Space
- Size
- Term
- Rental Rate
- Space Use
- Build-Out
- Available
Reception - 2 Window Offices - 2 Interior Offices - Restroom - Open Work Area - Part of a Professionally Managed Business Park
- Lease rate does not include utilities, property expenses or building services
- Mostly Open Floor Plan Layout
- Reception Area
- Includes 960 SF of dedicated office space
- Open Work Area
- Fully Built-Out as Standard Office
- Fits 3 - 8 People
- Private Restrooms
- 2 Window Offices - 2 Interior Offices
| Space | Size | Term | Rental Rate | Space Use | Build-Out | Available |
| 1st Floor, Ste F | 960 SF | 3 Years | $28.78 CAD/SF/YR $2.40 CAD/SF/MO $27,627 CAD/YR $2,302 CAD/MO | Office | Full Build-Out | Now |
15445 Red Hill Ave - 1st Floor - Ste F
- Space
- Size
- Term
- Rental Rate
- Space Use
- Build-Out
- Available
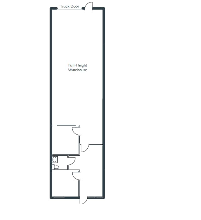
Reception - Restroom - Open Work Area - Ground-Level Truck Door - Approximately 1,200 sq. ft. of Full-Height Warehouse - Part of a Professionally Managed Business Park
- Lease rate does not include utilities, property expenses or building services
- Reception Area
- Includes 720 SF of dedicated office space
- Private Restrooms
Reception - Window Office - Interior Office - Conference Room - Restroom - Ground-Level Truck Door - Approximately 1,025 sq. ft. of Full-Height Warehouse - Part of a Professionally Managed Business Park
- Lease rate does not include utilities, property expenses or building services
- Private Restrooms
- Ground-Level Truck Door
- Includes 895 SF of dedicated office space
- Conference Rooms
- Window Office - Interior Office
| Space | Size | Term | Rental Rate | Space Use | Build-Out | Available |
| 1st Floor - C | 1,920 SF | 3 Years | $27.79 CAD/SF/YR $2.32 CAD/SF/MO $53,360 CAD/YR $4,447 CAD/MO | Flex | Full Build-Out | Now |
| 1st Floor - E | 1,920 SF | 3 Years | Upon Request Upon Request Upon Request Upon Request | Flex | - | 2026-05-01 |
15461 Red Hill Ave - 1st Floor - C
15461 Red Hill Ave - 1st Floor - E
- Space
- Size
- Term
- Rental Rate
- Space Use
- Build-Out
- Available
- Lease rate does not include utilities, property expenses or building services
| Space | Size | Term | Rental Rate | Space Use | Build-Out | Available |
| 1st Floor - C | 1,920 SF | 3 Years | $27.79 CAD/SF/YR $2.32 CAD/SF/MO $53,360 CAD/YR $4,447 CAD/MO | Flex | - | Now |
15421 Red Hill Ave - 1st Floor - C
- Space
- Size
- Term
- Rental Rate
- Space Use
- Build-Out
- Available
Reception - Restroom - Open Work Area - Ground-Level Truck Door - Approximately 1,420 sq. ft. of Full-Height Warehouse - Part of a Professionally Managed Business Park
- Lease rate does not include utilities, property expenses or building services
- Reception Area
- Approx. 1,420 sq. ft. of Full-Height Warehouse
- Includes 500 SF of dedicated office space
- Private Restrooms
- Ground-Level Truck Door
| Space | Size | Term | Rental Rate | Space Use | Build-Out | Available |
| 1st Floor - F | 1,920 SF | 3 Years | $27.79 CAD/SF/YR $2.32 CAD/SF/MO $53,360 CAD/YR $4,447 CAD/MO | Flex | Full Build-Out | Now |
15441 Red Hill Ave - 1st Floor - F
- Space
- Size
- Term
- Rental Rate
- Space Use
- Build-Out
- Available
Reception - 2 Window Offices - 2 Interior Offices - Restroom - Open Work Area - Part of a Professionally Managed Business Park
- Lease rate does not include utilities, property expenses or building services
- Mostly Open Floor Plan Layout
- Reception Area
- Includes 960 SF of dedicated office space
- Open Work Area
- Fully Built-Out as Standard Office
- Fits 3 - 8 People
- Private Restrooms
- 2 Window Offices - 2 Interior Offices
| Space | Size | Term | Rental Rate | Space Use | Build-Out | Available |
| 1st Floor, Ste F | 960 SF | 3 Years | $28.78 CAD/SF/YR $2.40 CAD/SF/MO $27,627 CAD/YR $2,302 CAD/MO | Office | Full Build-Out | Now |
15445 Red Hill Ave - 1st Floor - Ste F
15461 Red Hill Ave - 1st Floor - C
| Size | 1,920 SF |
| Term | 3 Years |
| Rental Rate | $27.79 CAD/SF/YR |
| Space Use | Flex |
| Build-Out | Full Build-Out |
| Available | Now |
Reception - Restroom - Open Work Area - Ground-Level Truck Door - Approximately 1,200 sq. ft. of Full-Height Warehouse - Part of a Professionally Managed Business Park
- Lease rate does not include utilities, property expenses or building services
- Includes 720 SF of dedicated office space
- Reception Area
- Private Restrooms
15461 Red Hill Ave - 1st Floor - E
| Size | 1,920 SF |
| Term | 3 Years |
| Rental Rate | Upon Request |
| Space Use | Flex |
| Build-Out | - |
| Available | 2026-05-01 |
Reception - Window Office - Interior Office - Conference Room - Restroom - Ground-Level Truck Door - Approximately 1,025 sq. ft. of Full-Height Warehouse - Part of a Professionally Managed Business Park
- Lease rate does not include utilities, property expenses or building services
- Includes 895 SF of dedicated office space
- Private Restrooms
- Conference Rooms
- Ground-Level Truck Door
- Window Office - Interior Office
15421 Red Hill Ave - 1st Floor - C
| Size | 1,920 SF |
| Term | 3 Years |
| Rental Rate | $27.79 CAD/SF/YR |
| Space Use | Flex |
| Build-Out | - |
| Available | Now |
- Lease rate does not include utilities, property expenses or building services
15441 Red Hill Ave - 1st Floor - F
| Size | 1,920 SF |
| Term | 3 Years |
| Rental Rate | $27.79 CAD/SF/YR |
| Space Use | Flex |
| Build-Out | Full Build-Out |
| Available | Now |
Reception - Restroom - Open Work Area - Ground-Level Truck Door - Approximately 1,420 sq. ft. of Full-Height Warehouse - Part of a Professionally Managed Business Park
- Lease rate does not include utilities, property expenses or building services
- Includes 500 SF of dedicated office space
- Reception Area
- Private Restrooms
- Approx. 1,420 sq. ft. of Full-Height Warehouse
- Ground-Level Truck Door
15445 Red Hill Ave - 1st Floor - Ste F
| Size | 960 SF |
| Term | 3 Years |
| Rental Rate | $28.78 CAD/SF/YR |
| Space Use | Office |
| Build-Out | Full Build-Out |
| Available | Now |
Reception - 2 Window Offices - 2 Interior Offices - Restroom - Open Work Area - Part of a Professionally Managed Business Park
- Lease rate does not include utilities, property expenses or building services
- Fully Built-Out as Standard Office
- Mostly Open Floor Plan Layout
- Fits 3 - 8 People
- Reception Area
- Private Restrooms
- Includes 960 SF of dedicated office space
- 2 Window Offices - 2 Interior Offices
- Open Work Area
Site Plan
Select Tenants at This Property
- Floor
- Tenant Name
- Industry
- 1st
- Adimpact Corporate Signage
- Construction
- 1st
- Bauer International
- Professional, Scientific, and Technical Services
- 1st
- Best Mountain, Inc.
- -
- 1st
- Five Star Garage Door Repair
- Construction
- 1st
- Hawk Group Inc
- Wholesaler
- 1st
- M P V Insurance Services
- Finance and Insurance
- 1st
- Source Commercial Printer
- Manufacturing
- 1st
- Thomas Ad Impact
- Manufacturing
- 1st
- Tls Building Services MMR
- Real Estate
Park Overview
Redhill Business Park is an office/flex property consisting of 12 one-story buildings totaling 119,640 square feet. The property offers great street visibility, plentiful parking and floor plans that are designed for office/warehouse use. Redhill Business Park is conveniently located off the 5 and 55 Freeways and close to John Wayne Airport, restaurants, and retail.
Presented by
Red Hill Business Park | Tustin, CA 92780
Hmm, there seems to have been an error sending your message. Please try again.
Thanks! Your message was sent.












