Your email has been sent.
Highlights
- Located in downtown Lake Oswego on the corner of 2nd and B avenue
- Property Manager onsite
- Reserved Underground Parking Garage Spaces included with lease and unreserved Surface Parking
- Rate includes utilities, building services, property expenses and daily janitorial service
All Available Spaces(3)
Display Rental Rate as
- Space
- Size
- Term
- Rental Rate
- Space Use
- Build-Out
- Available
First Floor Prime Lobby Space. Wall of Windows facing Mt Hood. Inquire for availability.
- Rate includes utilities, building services and property expenses
- Prime Location
- Fully Built-Out as Standard Office
- Rate includes utilities, building services and property expenses
Space comes complete with a lobby/reception area, plethora of windows, 3 spacious private offices. Prime Downtown Lake Oswego Location. Walk to the Lake, restaurants, and retail stores. Easy and free street parking for visitors and reserved parking for tenants. Rare availability.
- Rate includes utilities, building services and property expenses
- Mostly Open Floor Plan Layout
- 4 Workstations
- Reception Area
- Secure Storage
- Prime Location
- Lots of natural light
- Clean and quiet professional office setting
- Fully Built-Out as Standard Office
- 5 Private Offices
- Space is in Excellent Condition
- Kitchen
- Natural Light
- Free parking
- Spacious private offices
| Space | Size | Term | Rental Rate | Space Use | Build-Out | Available |
| 1st Floor | 1,740 SF | Negotiable | Upon Request Upon Request Upon Request Upon Request | Office/Medical | Full Build-Out | Now |
| 1st Floor, Ste 110 | 1,574 SF | Negotiable | Upon Request Upon Request Upon Request Upon Request | Office/Medical | - | Now |
| 2nd Floor, Ste 220 | 940 SF | Negotiable | Upon Request Upon Request Upon Request Upon Request | Office | Full Build-Out | Now |
1st Floor
| Size |
| 1,740 SF |
| Term |
| Negotiable |
| Rental Rate |
| Upon Request Upon Request Upon Request Upon Request |
| Space Use |
| Office/Medical |
| Build-Out |
| Full Build-Out |
| Available |
| Now |
1st Floor, Ste 110
| Size |
| 1,574 SF |
| Term |
| Negotiable |
| Rental Rate |
| Upon Request Upon Request Upon Request Upon Request |
| Space Use |
| Office/Medical |
| Build-Out |
| - |
| Available |
| Now |
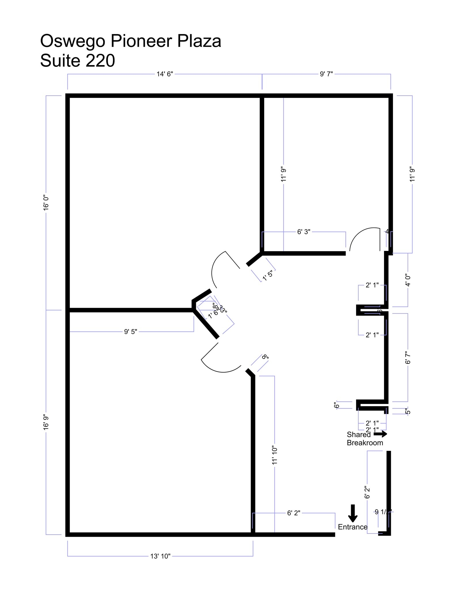
2nd Floor, Ste 220
| Size |
| 940 SF |
| Term |
| Negotiable |
| Rental Rate |
| Upon Request Upon Request Upon Request Upon Request |
| Space Use |
| Office |
| Build-Out |
| Full Build-Out |
| Available |
| Now |
1st Floor
| Size | 1,740 SF |
| Term | Negotiable |
| Rental Rate | Upon Request |
| Space Use | Office/Medical |
| Build-Out | Full Build-Out |
| Available | Now |
First Floor Prime Lobby Space. Wall of Windows facing Mt Hood. Inquire for availability.
- Rate includes utilities, building services and property expenses
- Fully Built-Out as Standard Office
- Prime Location
1st Floor, Ste 110
| Size | 1,574 SF |
| Term | Negotiable |
| Rental Rate | Upon Request |
| Space Use | Office/Medical |
| Build-Out | - |
| Available | Now |
- Rate includes utilities, building services and property expenses
2nd Floor, Ste 220
| Size | 940 SF |
| Term | Negotiable |
| Rental Rate | Upon Request |
| Space Use | Office |
| Build-Out | Full Build-Out |
| Available | Now |
Space comes complete with a lobby/reception area, plethora of windows, 3 spacious private offices. Prime Downtown Lake Oswego Location. Walk to the Lake, restaurants, and retail stores. Easy and free street parking for visitors and reserved parking for tenants. Rare availability.
- Rate includes utilities, building services and property expenses
- Fully Built-Out as Standard Office
- Mostly Open Floor Plan Layout
- 5 Private Offices
- 4 Workstations
- Space is in Excellent Condition
- Reception Area
- Kitchen
- Secure Storage
- Natural Light
- Prime Location
- Free parking
- Lots of natural light
- Spacious private offices
- Clean and quiet professional office setting
Property Overview
Prime Downtown Lake Oswego Office Building located on B Avenue and 2nd Avenue Ideal location for professional offices and medical users Suites are in move-in ready condition Clean, Quiet, Professional Office Building Full Service Lease - All Property Expenses and Daily Janitorial Service Included in Lease Rate Reserved Underground Parking Garage Spaces included for each Suite in Building Unreserved surface parking on the premises Walk to the Lake, Shops, Restaurants, Banks, Grocery Stores and many other amenities Contact Jason Gwazdacz or John Berg at American Capital Properties to arrange your tour today! 503.675.4596 JasonGwazdacz@americancapitalpropertiesllc.com JohnBerg@americancapitalpropertiesllc.com
- Bus Line
- Controlled Access
- Property Manager on Site
- Signage
- Kitchen
Property Facts
Select Tenants
- Floor
- Tenant Name
- Industry
- 3rd
- American Capital Properties, LLC
- Real Estate
- 2nd
- Contract Flooring Consultants
- Administrative and Support Services
- 2nd
- Dr. Quita Lopez - Aesthetic Laser Center
- Professional, Scientific, and Technical Services
- 2nd
- Farouk Al Hadi & Associates
- Professional, Scientific, and Technical Services
- 2nd
- Live CGI
- Services
- 1st
- LO Solutions
- Health Care and Social Assistance
- 2nd
- PF Holdings, A Planet Fitness Franchisee
- Administrative and Support Services
- 1st
- Suntel Design
- Real Estate
- 1st
- Wealth Factor
- Services
Presented by
Oswego Pioneer Plaza | 155 B Ave
Hmm, there seems to have been an error sending your message. Please try again.
Thanks! Your message was sent.







