Your email has been sent.
Lake Merritt Tower 155 Grand Ave 500 - 66,520 SF of 4-Star Office Space Available in Oakland, CA 94612


Highlights
- Easy access to Interstates 580, 880 and 980.
- Two levels of underground parking.
- Modern life safety.
- Major tenants include Crowley Maritime & HealthNet.
- 24-hour security.
All Available Spaces(6)
Display Rental Rate as
- Space
- Size
- Term
- Rental Rate
- Space Use
- Build-Out
- Available
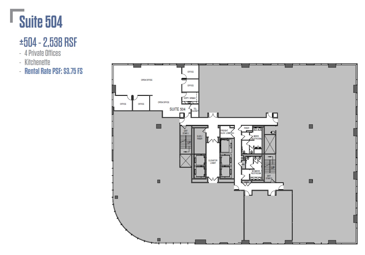
Suite 500A totals ±500 - 7,415 RSF. The suite has a reception area, 2 conference rooms, a break room, and an IDF/Server Room.
- Rate includes utilities, building services and property expenses
- Mostly Open Floor Plan Layout
- Space is in Excellent Condition
- Corner Space
- Natural Light
- Fully Built-Out as Standard Office
- 2 Conference Rooms
- Reception Area
- Secure Storage
- Corner Suite
Suite 600 totals ±22,209 RSF. The suite has a large devisable training room, 33 private offices, 4 meeting rooms, a wellness room, a break room, a large storage area, and a print/copy room.
- Rate includes utilities, building services and property expenses
- Mostly Open Floor Plan Layout
- 5 Conference Rooms
- Print/Copy Room
- Natural Light
- Lake Merritt Views
- Fully Built-Out as Standard Office
- 33 Private Offices
- Space is in Excellent Condition
- Secure Storage
- Full Floor Identity
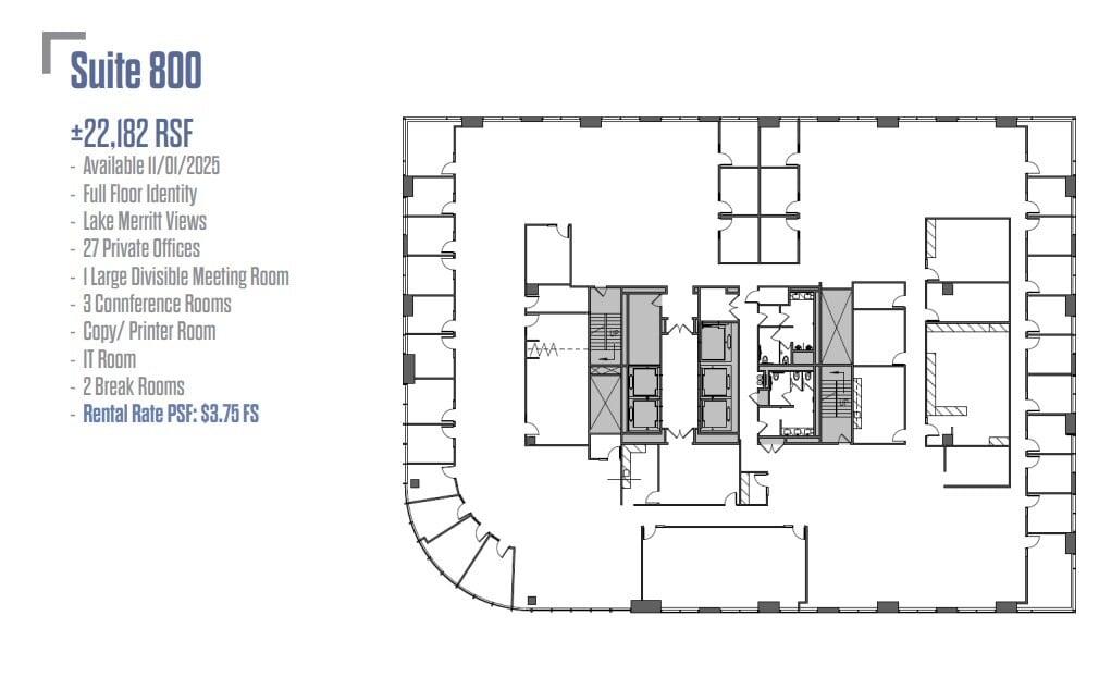
Suite 800 is a full floor opportunity with views of Lake Merritt. The space features 27 private offices, 1 large divisible meeting room, and three standard conference rooms.
- Rate includes utilities, building services and property expenses
- 27 Private Offices
- Print/Copy Room
- Full Floor Identity
- Fully Built-Out as Standard Office
- 4 Conference Rooms
- Lake Merritt Views
- 6 Private offices - Conference room - IT Room - Open Area
- Rate includes utilities, building services and property expenses
- 6 Private Offices
- Mostly Open Floor Plan Layout
- 1 Conference Room
Suite 905 totals ±3,040 RSF. The suite has 5 private offices, 1 conference room, and a breakroom.
- Rate includes utilities, building services and property expenses
- 5 Private Offices
- Space is in Excellent Condition
- Natural Light
- Fully Built-Out as Professional Services Office
- 1 Conference Room
- Can be combined with additional space(s) for up to 8,585 SF of adjacent space
- Can Be Combined for Additional Space
Suite 950 totals ±5,545 RSF and has a double door entry. The suite has a large conference room, a huddle room, a reception area, 7 private offices (including a large executive office), 2 open office areas, 2 work/copier areas, a tech closet and a kitchenette.
- Rate includes utilities, building services and property expenses
- Mostly Open Floor Plan Layout
- 2 Conference Rooms
- Can be combined with additional space(s) for up to 8,585 SF of adjacent space
- Corner Space
- Can Be Combined for Additional Space
- Double Door Entry
- Fully Built-Out as Standard Office
- 7 Private Offices
- Space is in Excellent Condition
- Reception Area
- Natural Light
- Lake Merritt Views
| Space | Size | Term | Rental Rate | Space Use | Build-Out | Available |
| 5th Floor, Ste 500 | 500-7,415 SF | Negotiable | $61.55 CAD/SF/YR $5.13 CAD/SF/MO $456,414 CAD/YR $38,035 CAD/MO | Office | Full Build-Out | 30 Days |
| 6th Floor, Ste 600 | 22,209 SF | Negotiable | $61.55 CAD/SF/YR $5.13 CAD/SF/MO $1,367,026 CAD/YR $113,919 CAD/MO | Office | Full Build-Out | Now |
| 8th Floor, Ste 800 | 22,182 SF | Negotiable | $61.55 CAD/SF/YR $5.13 CAD/SF/MO $1,365,364 CAD/YR $113,780 CAD/MO | Office | Full Build-Out | Now |
| 9th Floor, Ste 902 | 6,129 SF | Negotiable | $61.55 CAD/SF/YR $5.13 CAD/SF/MO $377,257 CAD/YR $31,438 CAD/MO | Office | - | Now |
| 9th Floor, Ste 905 | 3,040 SF | Negotiable | $61.55 CAD/SF/YR $5.13 CAD/SF/MO $187,121 CAD/YR $15,593 CAD/MO | Office | Full Build-Out | Now |
| 9th Floor, Ste 950 | 5,545 SF | Negotiable | $61.55 CAD/SF/YR $5.13 CAD/SF/MO $341,310 CAD/YR $28,443 CAD/MO | Office | Full Build-Out | Now |
5th Floor, Ste 500
| Size |
| 500-7,415 SF |
| Term |
| Negotiable |
| Rental Rate |
| $61.55 CAD/SF/YR $5.13 CAD/SF/MO $456,414 CAD/YR $38,035 CAD/MO |
| Space Use |
| Office |
| Build-Out |
| Full Build-Out |
| Available |
| 30 Days |
6th Floor, Ste 600
| Size |
| 22,209 SF |
| Term |
| Negotiable |
| Rental Rate |
| $61.55 CAD/SF/YR $5.13 CAD/SF/MO $1,367,026 CAD/YR $113,919 CAD/MO |
| Space Use |
| Office |
| Build-Out |
| Full Build-Out |
| Available |
| Now |
8th Floor, Ste 800
| Size |
| 22,182 SF |
| Term |
| Negotiable |
| Rental Rate |
| $61.55 CAD/SF/YR $5.13 CAD/SF/MO $1,365,364 CAD/YR $113,780 CAD/MO |
| Space Use |
| Office |
| Build-Out |
| Full Build-Out |
| Available |
| Now |
9th Floor, Ste 902
| Size |
| 6,129 SF |
| Term |
| Negotiable |
| Rental Rate |
| $61.55 CAD/SF/YR $5.13 CAD/SF/MO $377,257 CAD/YR $31,438 CAD/MO |
| Space Use |
| Office |
| Build-Out |
| - |
| Available |
| Now |
9th Floor, Ste 905
| Size |
| 3,040 SF |
| Term |
| Negotiable |
| Rental Rate |
| $61.55 CAD/SF/YR $5.13 CAD/SF/MO $187,121 CAD/YR $15,593 CAD/MO |
| Space Use |
| Office |
| Build-Out |
| Full Build-Out |
| Available |
| Now |
9th Floor, Ste 950
| Size |
| 5,545 SF |
| Term |
| Negotiable |
| Rental Rate |
| $61.55 CAD/SF/YR $5.13 CAD/SF/MO $341,310 CAD/YR $28,443 CAD/MO |
| Space Use |
| Office |
| Build-Out |
| Full Build-Out |
| Available |
| Now |
5th Floor, Ste 500
| Size | 500-7,415 SF |
| Term | Negotiable |
| Rental Rate | $61.55 CAD/SF/YR |
| Space Use | Office |
| Build-Out | Full Build-Out |
| Available | 30 Days |
Suite 500A totals ±500 - 7,415 RSF. The suite has a reception area, 2 conference rooms, a break room, and an IDF/Server Room.
- Rate includes utilities, building services and property expenses
- Fully Built-Out as Standard Office
- Mostly Open Floor Plan Layout
- 2 Conference Rooms
- Space is in Excellent Condition
- Reception Area
- Corner Space
- Secure Storage
- Natural Light
- Corner Suite
6th Floor, Ste 600
| Size | 22,209 SF |
| Term | Negotiable |
| Rental Rate | $61.55 CAD/SF/YR |
| Space Use | Office |
| Build-Out | Full Build-Out |
| Available | Now |
Suite 600 totals ±22,209 RSF. The suite has a large devisable training room, 33 private offices, 4 meeting rooms, a wellness room, a break room, a large storage area, and a print/copy room.
- Rate includes utilities, building services and property expenses
- Fully Built-Out as Standard Office
- Mostly Open Floor Plan Layout
- 33 Private Offices
- 5 Conference Rooms
- Space is in Excellent Condition
- Print/Copy Room
- Secure Storage
- Natural Light
- Full Floor Identity
- Lake Merritt Views
8th Floor, Ste 800
| Size | 22,182 SF |
| Term | Negotiable |
| Rental Rate | $61.55 CAD/SF/YR |
| Space Use | Office |
| Build-Out | Full Build-Out |
| Available | Now |
Suite 800 is a full floor opportunity with views of Lake Merritt. The space features 27 private offices, 1 large divisible meeting room, and three standard conference rooms.
- Rate includes utilities, building services and property expenses
- Fully Built-Out as Standard Office
- 27 Private Offices
- 4 Conference Rooms
- Print/Copy Room
- Lake Merritt Views
- Full Floor Identity
9th Floor, Ste 902
| Size | 6,129 SF |
| Term | Negotiable |
| Rental Rate | $61.55 CAD/SF/YR |
| Space Use | Office |
| Build-Out | - |
| Available | Now |
- 6 Private offices - Conference room - IT Room - Open Area
- Rate includes utilities, building services and property expenses
- Mostly Open Floor Plan Layout
- 6 Private Offices
- 1 Conference Room
9th Floor, Ste 905
| Size | 3,040 SF |
| Term | Negotiable |
| Rental Rate | $61.55 CAD/SF/YR |
| Space Use | Office |
| Build-Out | Full Build-Out |
| Available | Now |
Suite 905 totals ±3,040 RSF. The suite has 5 private offices, 1 conference room, and a breakroom.
- Rate includes utilities, building services and property expenses
- Fully Built-Out as Professional Services Office
- 5 Private Offices
- 1 Conference Room
- Space is in Excellent Condition
- Can be combined with additional space(s) for up to 8,585 SF of adjacent space
- Natural Light
- Can Be Combined for Additional Space
9th Floor, Ste 950
| Size | 5,545 SF |
| Term | Negotiable |
| Rental Rate | $61.55 CAD/SF/YR |
| Space Use | Office |
| Build-Out | Full Build-Out |
| Available | Now |
Suite 950 totals ±5,545 RSF and has a double door entry. The suite has a large conference room, a huddle room, a reception area, 7 private offices (including a large executive office), 2 open office areas, 2 work/copier areas, a tech closet and a kitchenette.
- Rate includes utilities, building services and property expenses
- Fully Built-Out as Standard Office
- Mostly Open Floor Plan Layout
- 7 Private Offices
- 2 Conference Rooms
- Space is in Excellent Condition
- Can be combined with additional space(s) for up to 8,585 SF of adjacent space
- Reception Area
- Corner Space
- Natural Light
- Can Be Combined for Additional Space
- Lake Merritt Views
- Double Door Entry
Property Overview
Lake Merritt Tower is located along Lake Merritt giving great views of the lake The Oakland/Berkeley Hills and the San Francisco Bay. The property offers easy access to Interstates 580, 880 and 980, rapid access to Interstate 80 and is near a main BART transfer station. There are several AC Transit bus stops in the vicinity of the building, which is just 15 minutes from the Oakland International Airport. There is a car rental service nearby and a Flagship Oakland YMCA is just 3 blocks away. Nearby amenities include a post office, pharmacy, and a variety of restaurants and retail services. Major tenants include, Crowley Maritime & HealthNet. The building features two levels of underground parking, 24-hour security, modern life safety, versatile HVAC and loading docks.
- Courtyard
- Property Manager on Site
- Restaurant
- Security System
- Car Charging Station
Property Facts
Sustainability
Sustainability
LEED Certification Developed by the U.S. Green Building Council (USGBC), the Leadership in Energy and Environmental Design (LEED) is a green building certification program focused on the design, construction, operation, and maintenance of green buildings, homes, and neighborhoods, which aims to help building owners and operators be environmentally responsible and use resources efficiently. LEED certification is a globally recognized symbol of sustainability achievement and leadership. To achieve LEED certification, a project earns points by adhering to prerequisites and credits that address carbon, energy, water, waste, transportation, materials, health and indoor environmental quality. Projects go through a verification and review process and are awarded points that correspond to a level of LEED certification: Platinum (80+ points) Gold (60-79 points) Silver (50-59 points) Certified (40-49 points)
Presented by
Lake Merritt Tower | 155 Grand Ave
Hmm, there seems to have been an error sending your message. Please try again.
Thanks! Your message was sent.












