Log In/Sign Up
Your email has been sent.
Executive Summary
This unique mixed-use property offers a rare investment opportunity in Costa Mesa, CA. Located within the city's Opportunity Zone and the 19 West Urban Plan, the property benefits from significant economic incentives and a dynamic, growing neighborhood.
Situated on industrially zoned land with a Conditional Use Permit (CUP) for medical uses, the property currently operates as a medical clinic with administrative offices and warehouse, showcasing its adaptability for a range of uses.
Situated on industrially zoned land with a Conditional Use Permit (CUP) for medical uses, the property currently operates as a medical clinic with administrative offices and warehouse, showcasing its adaptability for a range of uses.
Property Facts
Sale Type
Investment or Owner User
Property Type
Office
Property Subtype
Medical
Building Size
12,446 SF
Building Class
B
Year Built
1945
Tenancy
Single
Building Height
1 Story
Typical Floor Size
12,446 SF
Building FAR
0.34
Lot Size
0.83 AC
Opportunity Zone
Yes
Zoning
MG - General Industrial
Parking
60 Spaces (4.82 Spaces per 1,000 SF Leased)
Amenities
- Fenced Lot
- Property Manager on Site
Space Availability
- Space
- Size
- Space Use
- Condition
- Available
Owner would prefer sale of property over leasing space.
| Space | Size | Space Use | Condition | Available |
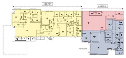
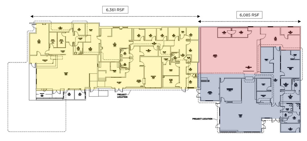
| 1st Floor | 6,361-11,330 SF | Office | Full Build-Out | Now |
1st Floor
| Size |
| 6,361-11,330 SF |
| Space Use |
| Office |
| Condition |
| Full Build-Out |
| Available |
| Now |
1 of 1
Videos
Matterport 3D Exterior
Matterport 3D Tour
Photos
Street View
Street
Map
1st Floor
| Size | 6,361-11,330 SF |
| Space Use | Office |
| Condition | Full Build-Out |
| Available | Now |
Owner would prefer sale of property over leasing space.
1 1
Walk Score®
Very Walkable (86)
Property Taxes
| Parcel Number | 425-351-05 | Improvements Assessment | $2,012,304 CAD |
| Land Assessment | $2,875,383 CAD | Total Assessment | $4,887,687 CAD |
Property Taxes
Parcel Number
425-351-05
Land Assessment
$2,875,383 CAD
Improvements Assessment
$2,012,304 CAD
Total Assessment
$4,887,687 CAD
1 of 4
Videos
Matterport 3D Exterior
Matterport 3D Tour
Photos
Street View
Street
Map
1 of 1
Presented by
1550 Superior Ave
Already a member? Log In
Hmm, there seems to have been an error sending your message. Please try again.
Thanks! Your message was sent.





