Log In/Sign Up
Your email has been sent.
Highlights
- 15’8” clear height with five 12’ x 12’ grade-level doors.
- Convenient access to I-75 and I-96 for regional connectivity.
- Situated on a 2.91-acre site with ample parking.
Features
Clear Height
15’8”
Drive In Bays
5
Standard Parking Spaces
96
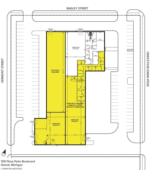
All Available Space(1)
Display Rental Rate as
- Space
- Size
- Term
- Rental Rate
- Space Use
- Build-Out
- Available
- Listed lease rate plus proportional share of utilities
- Space is in Excellent Condition
- Includes 3,808 SF of dedicated office space
| Space | Size | Term | Rental Rate | Space Use | Build-Out | Available |
| 1st Floor | 6,000-28,274 SF | Negotiable | $9.58 CAD/SF/YR $0.80 CAD/SF/MO $270,851 CAD/YR $22,571 CAD/MO | Industrial | Full Build-Out | Now |
1st Floor
| Size |
| 6,000-28,274 SF |
| Term |
| Negotiable |
| Rental Rate |
| $9.58 CAD/SF/YR $0.80 CAD/SF/MO $270,851 CAD/YR $22,571 CAD/MO |
| Space Use |
| Industrial |
| Build-Out |
| Full Build-Out |
| Available |
| Now |
1 of 2
Videos
Matterport 3D Exterior
Matterport 3D Tour
Photos
Street View
Street
Map
1st Floor
| Size | 6,000-28,274 SF |
| Term | Negotiable |
| Rental Rate | $9.58 CAD/SF/YR |
| Space Use | Industrial |
| Build-Out | Full Build-Out |
| Available | Now |
- Listed lease rate plus proportional share of utilities
- Includes 3,808 SF of dedicated office space
- Space is in Excellent Condition
Property Overview
The property is an industrial facility located at 1551 Rosa Parks Boulevard in Detroit, Michigan. It includes warehouse and office space, multiple grade-level doors, and on-site parking. The site is positioned near major highways, including I-75 and I-96, providing access to Detroit’s central business district and surrounding areas.
Warehouse Facility Facts
Building Size
37,186 SF
Lot Size
2.90 AC
Year Built
1988
Construction
Steel
Zoning
I - Industrial
Select Tenants
- Floor
- Tenant Name
- Industry
- 1st
- Compas Technology Solutions
- Information
- 1st
- Paxahau
- Arts, Entertainment, and Recreation
- 1st
- Teen Street Skills
- Educational Services
1 1
Moderately walkable
60/100
Exceptionally drivable
100/100
Some public transit
40/100
Moderately bikeable
60/100
1 of 4
Videos
Matterport 3D Exterior
Matterport 3D Tour
Photos
Street View
Street
Map
1 of 1
Presented by
1551 Rosa Parks Blvd
Already a member? Log In
Hmm, there seems to have been an error sending your message. Please try again.
Thanks! Your message was sent.






