Log In/Sign Up
Your email has been sent.
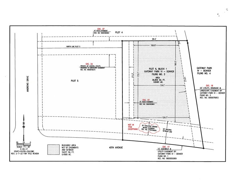
Executive Summary
Priced to be extremely competitive in the market place. Currently zoned Gateway Airport Park Zone District - intended to provide a wide variety of compatible uses. A mix of residential, business, hotel and high technology based industry is permitted. In-fill play adjacent to established KFC. Seller has designed and paid for proposed architectural plans that are included in the sales price. Surrounded by existing dense retail, industrial, commercial, hospitality, and residential i.e. (multi-tenant and single family homes) properties.
10 minutes to Denver International Airport. Explosive growth in the Gateway trade area driven by 24/7 traffic.
Contact broker for more information and for a copy of the existing plans.
10 minutes to Denver International Airport. Explosive growth in the Gateway trade area driven by 24/7 traffic.
Contact broker for more information and for a copy of the existing plans.
Property Facts
| Price | $1,196,213 CAD | Property Type | Land |
| Sale Type | Investment | Property Subtype | Commercial |
| No. Lots | 1 | Total Lot Size | 0.84 AC |
| Zoning | GTWY | ||
| Price | $1,196,213 CAD |
| Sale Type | Investment |
| No. Lots | 1 |
| Property Type | Land |
| Property Subtype | Commercial |
| Total Lot Size | 0.84 AC |
| Zoning | GTWY |
1 Lot Available
Lot
| Price | $1,196,213 CAD | Lot Size | 0.84 AC |
| Price Per AC | $1,424,062.50 CAD |
| Price | $1,196,213 CAD |
| Price Per AC | $1,424,062.50 CAD |
| Lot Size | 0.84 AC |
Irregular rectangular sized parcel available for residential or commercial development. Purchase includes preliminary plans for the construction of Gateway Flats - a 32 unit, 4 floor proposed residential project.
1 1
Fairly walkable
40/100
Exceptionally drivable
100/100
Some public transit
50/100
Moderately bikeable
60/100
Property Taxes
| Parcel Number | 0203-03-006 | Improvements Assessment | $207,725 CAD |
| Land Assessment | $207,725 CAD | Total Assessment | $207,725 CAD |
Property Taxes
Parcel Number
0203-03-006
Land Assessment
$207,725 CAD
Improvements Assessment
$207,725 CAD
Total Assessment
$207,725 CAD
1 of 4
Videos
Matterport 3D Exterior
Matterport 3D Tour
Photos
Street View
Street
Map
1 of 1
Presented by
15535 E 40th Ave
Already a member? Log In
Hmm, there seems to have been an error sending your message. Please try again.
Thanks! Your message was sent.



