Your email has been sent.
Highlights
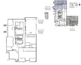
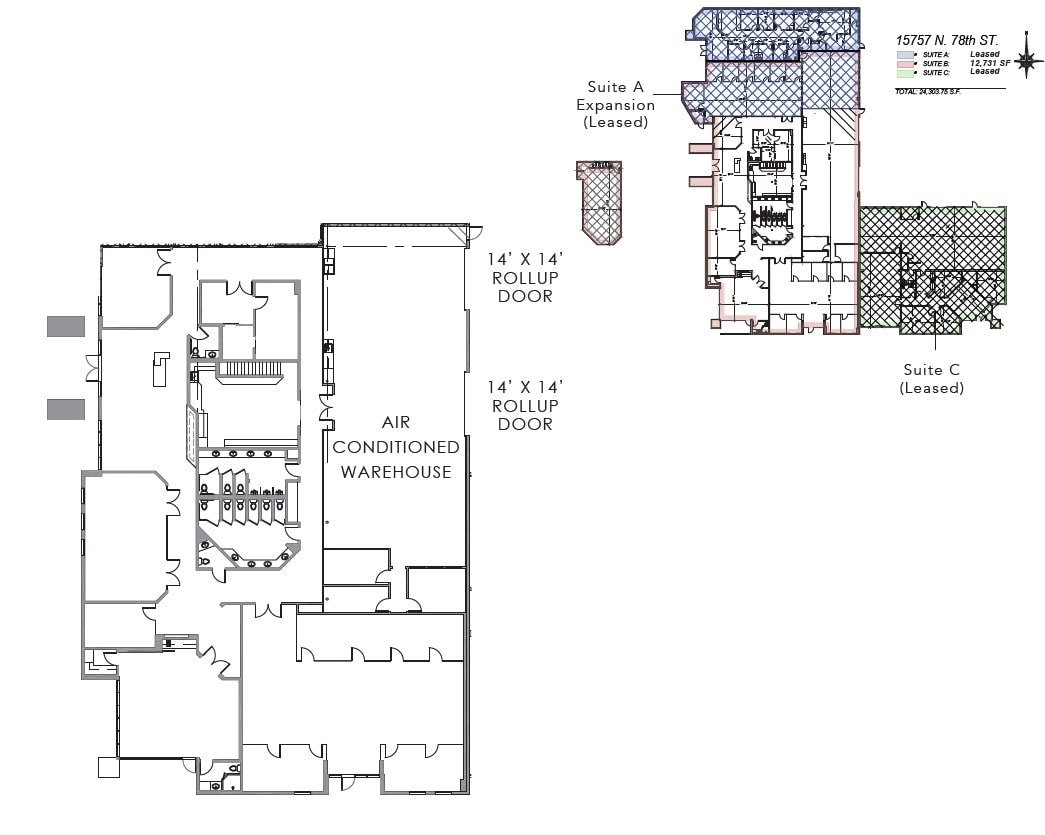
- Two 14’ x 14’ roll-up doors with truckwell and grade-level loading
- Located in Scottsdale’s Greenway-Hayden Loop corridor
- Zoned I-1 with ±3/1,000 SF parking ratio
- High-end interior finishes throughout
- Easy access to Loop 101 and major arterial roads
Features
All Available Spaces(2)
Display Rental Rate as
- Space
- Size
- Term
- Rental Rate
- Space Use
- Build-Out
- Available
Located in the heart of Scottsdale’s dynamic Greenway-Hayden Loop corridor, 15757 N 78th Street offers a rare opportunity to lease premium flex-industrial space in one of the region’s most sought-after business districts. Suite B, the last remaining availability in this fully air-conditioned building, features 12,731 square feet of high-end interior finishes, ideal for tenants seeking a polished and functional environment. The property is equipped with two 14’ x 14’ roll-up doors and both grade-level and truckwell loading, ensuring efficient logistics and operational flexibility.
- Lease rate does not include utilities, property expenses or building services
- Central Air Conditioning
- 2 Drive Ins
Coming available October 2026, Suite C offers 6,051 SF with grade level loading, 100% A/C, high-end interior finishes, and more. Located in the heart of Scottsdale’s dynamic Greenway-Hayden Loop corridor, 15757 N 78th Street offers a rare opportunity to lease premium flex-industrial space in one of the region’s most sought-after business districts. Suite B, the last remaining availability in this fully air-conditioned building, features 12,731 square feet of high-end interior finishes, ideal for tenants seeking a polished and functional environment. The property is equipped with two 14’ x 14’ roll-up doors and both grade-level and truckwell loading, ensuring efficient logistics and operational flexibility.
- Lease rate does not include utilities, property expenses or building services
- Central Air Conditioning
- 2 Drive Ins
- Private Restrooms
| Space | Size | Term | Rental Rate | Space Use | Build-Out | Available |
| 1st Floor - B | 12,734 SF | Negotiable | $30.65 CAD/SF/YR $2.55 CAD/SF/MO $390,305 CAD/YR $32,525 CAD/MO | Flex | Partial Build-Out | Now |
| 1st Floor - C | 6,051 SF | Negotiable | $30.65 CAD/SF/YR $2.55 CAD/SF/MO $185,467 CAD/YR $15,456 CAD/MO | Flex | Spec Suite | 2026-10-01 |
1st Floor - B
| Size |
| 12,734 SF |
| Term |
| Negotiable |
| Rental Rate |
| $30.65 CAD/SF/YR $2.55 CAD/SF/MO $390,305 CAD/YR $32,525 CAD/MO |
| Space Use |
| Flex |
| Build-Out |
| Partial Build-Out |
| Available |
| Now |
1st Floor - C
| Size |
| 6,051 SF |
| Term |
| Negotiable |
| Rental Rate |
| $30.65 CAD/SF/YR $2.55 CAD/SF/MO $185,467 CAD/YR $15,456 CAD/MO |
| Space Use |
| Flex |
| Build-Out |
| Spec Suite |
| Available |
| 2026-10-01 |
1st Floor - B
| Size | 12,734 SF |
| Term | Negotiable |
| Rental Rate | $30.65 CAD/SF/YR |
| Space Use | Flex |
| Build-Out | Partial Build-Out |
| Available | Now |
Located in the heart of Scottsdale’s dynamic Greenway-Hayden Loop corridor, 15757 N 78th Street offers a rare opportunity to lease premium flex-industrial space in one of the region’s most sought-after business districts. Suite B, the last remaining availability in this fully air-conditioned building, features 12,731 square feet of high-end interior finishes, ideal for tenants seeking a polished and functional environment. The property is equipped with two 14’ x 14’ roll-up doors and both grade-level and truckwell loading, ensuring efficient logistics and operational flexibility.
- Lease rate does not include utilities, property expenses or building services
- 2 Drive Ins
- Central Air Conditioning
1st Floor - C
| Size | 6,051 SF |
| Term | Negotiable |
| Rental Rate | $30.65 CAD/SF/YR |
| Space Use | Flex |
| Build-Out | Spec Suite |
| Available | 2026-10-01 |
Coming available October 2026, Suite C offers 6,051 SF with grade level loading, 100% A/C, high-end interior finishes, and more. Located in the heart of Scottsdale’s dynamic Greenway-Hayden Loop corridor, 15757 N 78th Street offers a rare opportunity to lease premium flex-industrial space in one of the region’s most sought-after business districts. Suite B, the last remaining availability in this fully air-conditioned building, features 12,731 square feet of high-end interior finishes, ideal for tenants seeking a polished and functional environment. The property is equipped with two 14’ x 14’ roll-up doors and both grade-level and truckwell loading, ensuring efficient logistics and operational flexibility.
- Lease rate does not include utilities, property expenses or building services
- 2 Drive Ins
- Central Air Conditioning
- Private Restrooms
Property Overview
Strategically positioned within Scottsdale’s prestigious Greenway-Hayden Loop corridor, 15757 N 78th Street is a high-quality flex-industrial asset offering exceptional infrastructure and location advantages. Built in 2001 and spanning a 1.74-acre parcel, the property features a modern architectural profile with high-end interior finishes and full air conditioning throughout. Designed for operational efficiency, the building includes both grade-level and truckwell loading capabilities, supported by two oversized 14’ x 14’ roll-up doors. Zoned I-1 for light industrial use, the site accommodates a wide range of business types, from logistics and light manufacturing to showroom and creative workspace. Its ±3/1,000 SF parking ratio ensures ample on-site parking, while the surrounding area offers a dynamic mix of commercial, retail, and residential developments. With immediate access to Loop 101 and major arterials such as Frank Lloyd Wright Boulevard and Hayden Road, the property benefits from excellent connectivity to the broader Phoenix metro area. The building’s location within a thriving business district, coupled with its premium construction and flexible layout, makes it a compelling option for companies seeking a well-located, professionally managed industrial facility in Scottsdale.
Property Facts
Select Tenants
- Floor
- Tenant Name
- Industry
- 1st
- Arizona Balance & Hearing Associates
- Retailer
- 1st
- Scottsdale Plastic Surgeons
- Health Care and Social Assistance
- 1st
- Virginia Department Of Social
- Health Care and Social Assistance
- 1st
- Worldwide Capital Group
- Finance and Insurance
Presented by
15757 N 78th St
Hmm, there seems to have been an error sending your message. Please try again.
Thanks! Your message was sent.







