Your email has been sent.
US 19 Frontage Parcels for Ground Lease PASCO 15807 US Highway 19 0.75 - 1.92 Acres of Commercial Land for Lease in Hudson, FL 34667



Highlights
- 4.1 Acres C2 Vacant Commercial - leasing outparcels
- Car Wash Site
- Coffee Drive Thru
- Over 600 feet of frontage along US HWY 19
LOT Available
Display Rental Rate as
| Rental Rate |
|
Lot Size | 0.75 - 1.92 AC |
| Lease Term | Negotiable |
| Rental Rate | |
| Lease Term | Negotiable |
| Lot Size | 0.75 - 1.92 AC |
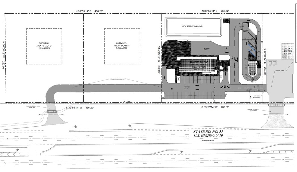
Up to 4 parcels available - .74 to 4.15 acres ±4.15 Acres | Multi-Pad Ground Lease Opportunity This offering presents a ±4.15-acre commercial site along U.S. Highway 19 in Hudson, Florida, one of Pasco County’s most active retail corridors, carrying approximately 39,500 vehicles per day across six lanes. The site is positioned for multiple ground-lease opportunities serving growing car wash operators, fast-food chains, coffee drive-thrus, and small high-velocity retail concepts. The property provides approximately 600+ feet of direct US-19 frontage, is zoned C-2, and benefits from existing access points, established easements, and planned cross-access connectivity with the adjacent Circle K. This combination supports strong daily traffic capture, efficient circulation, and repeat-visit retail performance. The current site plan reflects a conceptual layout and is intended as a planning framework only. All pad sizes, building placement, circulation, stacking, and access can be modified to meet a lessee’s specific prototype and operational requirements. Landlord Delivery: rough graded to final elevation, will construct the driveways and entrances, including any required deceleration lanes, stub potable water lines and gravity sanitary sewer lines adequate in size and stub a storm water pipe of adequate size to retention pond. Two outparcels on the west side of the site are each approximately 1.25 acres and are well suited for fast-food, QSR, coffee drive-thru, and other small-format retail users requiring strong visibility, efficient stacking, and high throughput. These pads offer flexibility for single- or dual-lane drive-thru configurations and support modern prototypes without excess land or wasted circulation. The remaining eastern portion of the site is conceptually dedicated to an express car wash use. The illustrative plan shows a car wash drive-through building positioned to maximize stacking and forward-only vehicle flow, paired with a 3,734-square-foot open-air carport structure for vacuum and vehicle cleaning stations. Dedicated vacuum stalls, striped on-site parking for staff and short-duration use, and a rear retention area are shown to preserve usable pad area while maintaining operational efficiency. This configuration is illustrative only and can be adjusted to accommodate a specific operator’s wash format, throughput targets, and site standards. The site is strategically located between County Line Road (approximately five miles north) and State Road 52 (approximately 4.5 miles south), within the most active redevelopment stretch of the US-19 corridor. National retailers continue to expand in the surrounding area as local demographics strengthen. Median household income in Hudson has increased year over year, residential values continue to rise, and Pasco County’s focus on corridor redevelopment supports long-term retail demand. Ground-lease opportunities of this scale, frontage, and flexibility are increasingly limited along U.S. Highway 19. This site offers long-term control without land acquisition, strong traffic exposure, proven retail adjacency, and a layout that can be tailored to the needs of high-performing drive-thru and service-oriented brands.
Property Overview
U.S. Highway 19 | Hudson, Florida ±4.15 Acres | Multi-Pad Ground Lease Opportunity This offering presents a ±4.15-acre commercial site along U.S. Highway 19 in Hudson, Florida, one of Pasco County’s most active retail corridors, carrying approximately 39,500 vehicles per day across six lanes. The site is positioned for multiple ground-lease opportunities serving growing car wash operators, fast-food chains, coffee drive-thrus, and small high-velocity retail concepts. The property provides approximately 639 feet of direct US-19 frontage, is zoned C-2, and benefits from existing access points, established easements, and planned cross-access connectivity with the adjacent Circle K. This combination supports strong daily traffic capture, efficient circulation, and repeat-visit retail performance. The current site plan reflects a conceptual layout and is intended as a planning framework only. All pad sizes, building placement, circulation, stacking, and access can be modified to meet a lessee’s specific prototype and operational requirements. Two outparcels on the west side of the concept site plan are each approximately 1.25 acres and are well suited for fast-food, QSR, coffee drive-thru, and other small-format retail users requiring strong visibility, efficient stacking, and high throughput. These pads offer flexibility for single- or dual-lane drive-thru configurations and support modern prototypes without excess land or wasted circulation. The remaining eastern portion of the site is conceptually dedicated to an express car wash use. The illustrative plan shows a car wash drive-through building positioned to maximize stacking and forward-only vehicle flow, paired with a 3,734-square-foot open-air carport structure for vacuum and vehicle cleaning stations. Dedicated vacuum stalls, striped on-site parking for staff and short-duration use, and a rear retention area are shown to preserve usable pad area while maintaining operational efficiency. This configuration is illustrative only and can be adjusted to accommodate a specific operator’s wash format, throughput targets, and site standards. The site is strategically located between County Line Road (approximately five miles north) and State Road 52 (approximately 4.5 miles south), within the most active redevelopment stretch of the US-19 corridor. National retailers continue to expand in the surrounding area as local demographics strengthen. Median household income in Hudson has increased year over year, residential values continue to rise, and Pasco County’s focus on corridor redevelopment supports long-term retail demand. Ground-lease opportunities of this scale, frontage, and flexibility are increasingly limited along U.S. Highway 19. This site offers long-term control without land acquisition, strong traffic exposure, proven retail adjacency, and a layout that can be tailored to the needs of high-performing drive-thru and service-oriented brands.
Property Facts
Presented by
US 19 Frontage Parcels for Ground Lease PASCO | 15807 US Highway 19
Hmm, there seems to have been an error sending your message. Please try again.
Thanks! Your message was sent.
