Your email has been sent.
Oak Commerce Plaza 15859 Ridgeland Ave 4,000 SF of Office Space Available in Oak Forest, IL 60452



Highlights
- Highly visible location offers excellent accessibility and a professional setting
- Office furniture and shelving use negotiable.
- Use-ideal for organizations seeking defined private areas for multiple departments or operations.
- Ample parking surrounds the building, providing convenience for both staff and visitors.
All Available Space(1)
Display Rental Rate as
- Space
- Size
- Term
- Rental Rate
- Space Use
- Build-Out
- Available
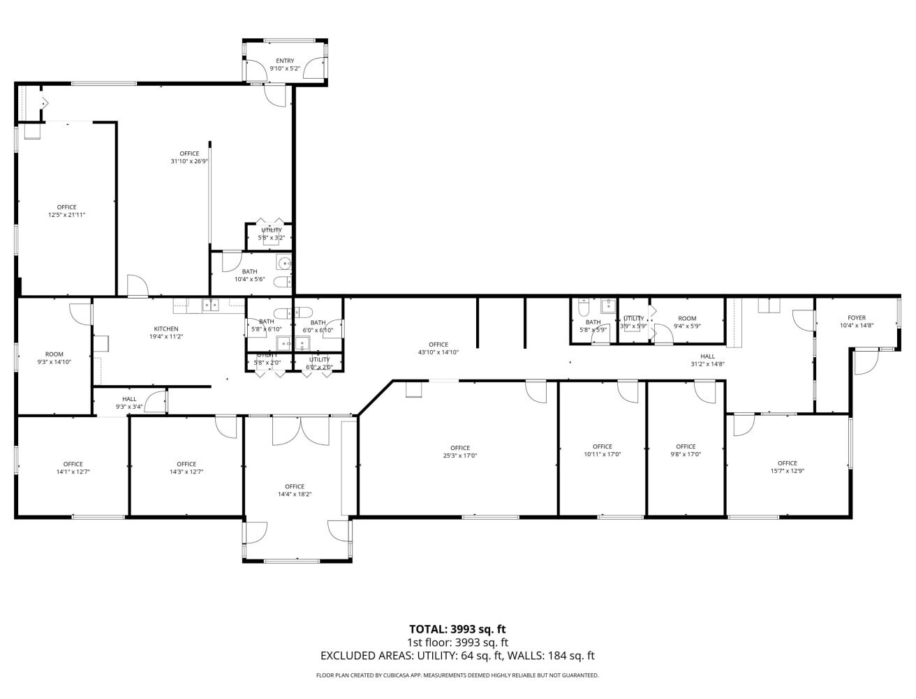
Premier office condo available at the signalized corner of 159th Street and Ridgeland Avenue, directly across from the Oak Forest National Golf Course and walking path. This highly visible location offers excellent accessibility and a professional setting. The building consists of four combined but separate office units with four 1/2 baths, allowing for flexible, divisional use-ideal for organizations seeking defined private areas for multiple departments or operations. The space is nicely appointed, with a balanced layout that features open work areas alongside large private offices. Large kitchen lunch room with built-in cabinets and storage. Lots of windows for natural lighting. Office furniture and shelving use negotiable. Ample parking surrounds the building, providing convenience for both staff and visitors. Suitable for a wide range of uses, including general office, medical, professional services, therapy, or a regional/national headquarters. Immediate occupancy available.
- Lease rate does not include certain property expenses
- Mostly Open Floor Plan Layout
- Central Air and Heating
- Partially Built-Out as Standard Office
- Fits 10 - 32 People
| Space | Size | Term | Rental Rate | Space Use | Build-Out | Available |
| 1st Floor | 4,000 SF | Negotiable | $27.41 CAD/SF/YR $2.28 CAD/SF/MO $109,643 CAD/YR $9,137 CAD/MO | Office | Partial Build-Out | Now |
1st Floor
| Size |
| 4,000 SF |
| Term |
| Negotiable |
| Rental Rate |
| $27.41 CAD/SF/YR $2.28 CAD/SF/MO $109,643 CAD/YR $9,137 CAD/MO |
| Space Use |
| Office |
| Build-Out |
| Partial Build-Out |
| Available |
| Now |
1st Floor
| Size | 4,000 SF |
| Term | Negotiable |
| Rental Rate | $27.41 CAD/SF/YR |
| Space Use | Office |
| Build-Out | Partial Build-Out |
| Available | Now |
Premier office condo available at the signalized corner of 159th Street and Ridgeland Avenue, directly across from the Oak Forest National Golf Course and walking path. This highly visible location offers excellent accessibility and a professional setting. The building consists of four combined but separate office units with four 1/2 baths, allowing for flexible, divisional use-ideal for organizations seeking defined private areas for multiple departments or operations. The space is nicely appointed, with a balanced layout that features open work areas alongside large private offices. Large kitchen lunch room with built-in cabinets and storage. Lots of windows for natural lighting. Office furniture and shelving use negotiable. Ample parking surrounds the building, providing convenience for both staff and visitors. Suitable for a wide range of uses, including general office, medical, professional services, therapy, or a regional/national headquarters. Immediate occupancy available.
- Lease rate does not include certain property expenses
- Partially Built-Out as Standard Office
- Mostly Open Floor Plan Layout
- Fits 10 - 32 People
- Central Air and Heating
Property Overview
Premier office condo available at the signalized corner of 159th Street and Ridgeland Avenue, directly across from the Oak Forest National Golf Course and walking path. This highly visible location offers excellent accessibility and a professional setting. The building consists of four combined but separate office units with four 1/2 baths, allowing for flexible, divisional use-ideal for organizations seeking defined private areas for multiple departments or operations. The space is nicely appointed, with a balanced layout that features open work areas alongside large private offices. Large kitchen lunch room with built-in cabinets and storage. Lots of windows for natural lighting. Office furniture and shelving are negotiable. Ample parking surrounds the building, providing convenience for both staff and visitors. Suitable for a wide range of uses, including general office, medical, professional services, therapy, or a regional/national headquarters. Immediate occupancy available.
Property Facts
Select Tenants
- Floor
- Tenant Name
- Industry
- 1st
- Finance Depot
- Professional, Scientific, and Technical Services
- 1st
- Future Finance
- Finance and Insurance
- 1st
- Jordan Insurance Services & Associates
- Finance and Insurance
Presented by
Oak Commerce Plaza | 15859 Ridgeland Ave
Hmm, there seems to have been an error sending your message. Please try again.
Thanks! Your message was sent.


