Your email has been sent.
1590 Anderson - 2,100 SF-Best Professional Space in Fort Lee 2,100 SF Office/Medical Condo Unit Offered at $653,420 CAD in Fort Lee, NJ 07024



INVESTMENT HIGHLIGHTS
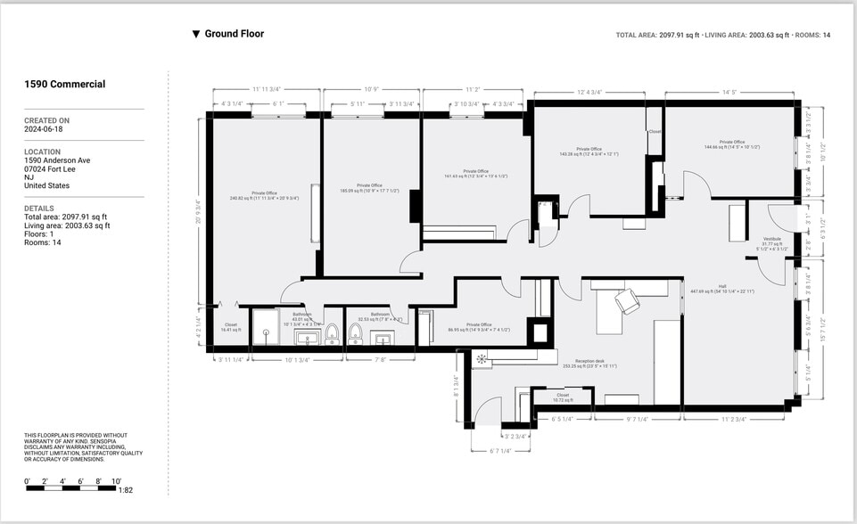
- 2,100 SF Medical / Office Suite
- Renovated in 2024
- Delivered Vacant upon Sale
- 200+ Unit Residential Building Above
- HOA Includes Taxes, Insurance, CAM Charges, Cable, etc.
- 4 Parking Spaces Deeded | 10 Common Parking Spaces
EXECUTIVE SUMMARY
Introducing a prime owner-user or investment opportunity in Fort Lee, NJ! This well-maintained property boasts a 2,100 SF building, recently renovated in 2024, and currently enjoys a 100% occupancy rate. With this ground floor unit, this property offers an ideal setup for Office/Medical space owner-users and investors seeking a lucrative opportunity in the Northern NJ area. Renovated in 2020 and zoned R-2, it presents a strong and stable investment potential. Don't miss out on this turnkey property with great potential for future growth and attractive returns.
PROPERTY FACTS Under Contract
| Total Building Size | 264,363 SF | Typical Floor Size | 12,237 SF |
| Property Type | Multifamily (Condo) | Year Built | 1972 |
| Property Subtype | Apartment | Lot Size | 1.81 AC |
| Building Class | C | Parking Ratio | 1.23/1,000 SF |
| Floors | 22 | ||
| Zoning | R2 - 2,100 SF Ground floor commercial space is zoned for office and medical use. | ||
| Total Building Size | 264,363 SF |
| Property Type | Multifamily (Condo) |
| Property Subtype | Apartment |
| Building Class | C |
| Floors | 22 |
| Typical Floor Size | 12,237 SF |
| Year Built | 1972 |
| Lot Size | 1.81 AC |
| Parking Ratio | 1.23/1,000 SF |
| Zoning | R2 - 2,100 SF Ground floor commercial space is zoned for office and medical use. |
AMENITIES
UNIT AMENITIES
- Air Conditioning
- Balcony
- Dishwasher
- Heating
- Kitchen
- Refrigerator
- Oven
- Freezer
SITE AMENITIES
- 24 Hour Access
- Fitness Center
- Laundry Facilities
- Pool
- Doorman
- Sundeck
1 UNIT AVAILABLE
Unit 101
| Unit Size | 2,100 SF | Sale Status | Under Contract |
| Price | $653,420 CAD | Cap Rate | 11.52% |
| Price Per SF | $311.15 CAD | NOI | $75,289.75 CAD |
| Condo Use | Office/Medical | No. Parking Spaces | 10 |
| Sale Type | Investment or Owner User |
| Unit Size | 2,100 SF |
| Price | $653,420 CAD |
| Price Per SF | $311.15 CAD |
| Condo Use | Office/Medical |
| Sale Type | Investment or Owner User |
| Sale Status | Under Contract |
| Cap Rate | 11.52% |
| NOI | $75,289.75 CAD |
| No. Parking Spaces | 10 |
DESCRIPTION
First floor of The Hampshire House office or medical suite available for immediate occupancy. Bring doctors, lawyers, surveyors, engineers, med spa, plastic surgeon, medical professionals, and all professional service industries.
SALE NOTES
Positioned in the heart of Fort Lee, NJ, this turnkey medical office suite offers a rare opportunity for owner-users or investors seeking a stable, income-generating asset in Northern New Jersey. Located on the ground floor of a 200+ unit residential building, the 2,100 SF suite has been fully renovated in 2024 and is delivered vacant, allowing immediate occupancy or leasing flexibility. The property benefits from a strong HOA structure that includes taxes, insurance, CAM charges, and cable, streamlining operational costs for owners.
Presented by
1590 Anderson - 2,100 SF-Best Professional Space in Fort Lee
Hmm, there seems to have been an error sending your message. Please try again.
Thanks! Your message was sent.

