Log In/Sign Up
Your email has been sent.
Entitled Central Coast Hotel Dev Site 1598 El Camino Real 91 Room Hotel Grover Beach, CA 93433 For Sale 7% Cap Rate



Investment Highlights
- Elite Coastal Location: Situated less than 2 miles from downtown Pismo Beach, the Pismo Pier, Oceano Dunes, and beach access.
- Dual-Hotel Strategy: Entitled for two separate hotels totaling up to 186 units for maximized operational synergy and multi-segment market capture.
- Aggressive Development Incentives: Significant financial support via negotiated key money, deferred DIFs, and TOT reimbursements.
- Fully Entitled & Shovel-Ready: A rare ±7.29-acre site with active entitlements, environmental permits, and a Vesting Tentative Tract Map.
- High-Barrier Market: Capitalizes on the permanent scarcity of lodging supply and the notoriously difficult, multi-year approval process.
- Built-in Liquidity: Includes seven single-family residential lots that can be developed, converted or sold separately to generate early ROI.
Executive Summary
THE OFFERING
Darshan Patel is pleased to exclusively present the rare opportunity to acquire a prime ±7.29-acre mixed-use hospitality development site in the highly coveted and supply-constrained Central Coast of California. Situated in Grover Beach at the heart of the Central Coast, this fully entitled, shovel-ready project is primed to capitalize on the consistent demand of the San Luis Obispo regional and coastal market. Its proximity to Pismo Beach and Arroyo Grande ensures high visibility in one of California’s most sought after hospitality and residential sectors. The offering includes all active entitlements for the two hotels and SFRs, permits, and construction-ready drawings, providing an investor with an immediate path to ground-breaking in a high barrier-to-entry market and significant savings on the typical multi-year coastal planning timeline.
Asking: Market Value - Unpriced. Seller is seeking market-based offers and is prepared to review proposals that reflect current underwriting and development environments.
Broker Co-Op Available: Yes
PROJECT HIGHLIGHTS
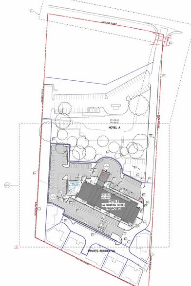
Shovel-Ready Coastal Development: The project is fully entitled for a high-density mix including two individual hotels totaling up to 186 units and seven single-family residential lots.
Immediate Scale (Phase 1): Phase 1 construction documents for a 93-unit La Quinta Inn & Suites by Wyndham and sitewide improvements are currently in the final stages of building permit review.
Secondary Flag Potential: Hotel A is entitled for 91 to 93 units, offering the flexibility to brand with a premier global flag such as Hilton, Marriott, IHG, or Hyatt.
Aggressive Incentives: The project benefits from significant development incentives negotiated with the City of Grover Beach, "key money" contributions by Wyndham, deferred Development Impact Fees (DIFs), and Transient Occupancy Tax (TOT) reimbursements.
Premier Visibility & Access: Situated directly along the major US Highway 101 corridor, the site features rare approvals for two 50-foot pylon signs, ensuring permanent and maximum brand exposure to millions of annual coastal travelers further enhancing market share and capture.
Please inquire for additional project files and available due diligence package.
LOCATION OVERVIEW
The subject property is strategically located less than 2 miles from the world-renowned Pismo State Beach and Pismo Pier. The Central Coast market is characterized by extremely high barriers to entry and a limited supply of new lodging inventory.
Tourism Synergy: Adjacent to popular dining and brewery destinations, and just 15 minutes from the rapidly expanding San Luis Obispo County Airport, which is nearing 1,000,000 annual passengers.
Strong Fundamentals: Local STR (Smith Travel Research) data indicates a resilient hospitality market with consistent year-round occupancy from leisure, group, and business travel.
STRATEGIC FLEXIBILITY
This project offers multiple exit and liquidity strategies. An investor may choose to build and operate the entire portfolio for maximum synergy, or sell the seven residential lots during construction to generate immediate liquidity and enhance the overall return on investment. With hard construction bids in hand and several lenders already indicating interest via conventional, SBA, and USDA funding routes, this represents a rare, de-risked entry into a premier California submarket.
Investment Highlights
Phase 1 Immediacy: Construction drawings for the 93-unit La Quinta Inn & Suites are in their third round of city review, allowing for a condensed timeline to groundbreaking.
Brand Versatility: Hotel A remains open for branding with top-tier flags like Hilton, Marriott, IHG, or Hyatt.
Unrivaled Visibility: Unique approvals are in place for two 50-foot highway-oriented pylon signs along the US Highway 101 corridor.
Demonstrated Capital Interest: The project’s economics and location have secured willingness to lend from several regional and national lenders, offering a clear path to both construction and permanent financing.
Darshan Patel is acting as principal and broker for this offering and eventual transaction.
Darshan Patel is pleased to exclusively present the rare opportunity to acquire a prime ±7.29-acre mixed-use hospitality development site in the highly coveted and supply-constrained Central Coast of California. Situated in Grover Beach at the heart of the Central Coast, this fully entitled, shovel-ready project is primed to capitalize on the consistent demand of the San Luis Obispo regional and coastal market. Its proximity to Pismo Beach and Arroyo Grande ensures high visibility in one of California’s most sought after hospitality and residential sectors. The offering includes all active entitlements for the two hotels and SFRs, permits, and construction-ready drawings, providing an investor with an immediate path to ground-breaking in a high barrier-to-entry market and significant savings on the typical multi-year coastal planning timeline.
Asking: Market Value - Unpriced. Seller is seeking market-based offers and is prepared to review proposals that reflect current underwriting and development environments.
Broker Co-Op Available: Yes
PROJECT HIGHLIGHTS
Shovel-Ready Coastal Development: The project is fully entitled for a high-density mix including two individual hotels totaling up to 186 units and seven single-family residential lots.
Immediate Scale (Phase 1): Phase 1 construction documents for a 93-unit La Quinta Inn & Suites by Wyndham and sitewide improvements are currently in the final stages of building permit review.
Secondary Flag Potential: Hotel A is entitled for 91 to 93 units, offering the flexibility to brand with a premier global flag such as Hilton, Marriott, IHG, or Hyatt.
Aggressive Incentives: The project benefits from significant development incentives negotiated with the City of Grover Beach, "key money" contributions by Wyndham, deferred Development Impact Fees (DIFs), and Transient Occupancy Tax (TOT) reimbursements.
Premier Visibility & Access: Situated directly along the major US Highway 101 corridor, the site features rare approvals for two 50-foot pylon signs, ensuring permanent and maximum brand exposure to millions of annual coastal travelers further enhancing market share and capture.
Please inquire for additional project files and available due diligence package.
LOCATION OVERVIEW
The subject property is strategically located less than 2 miles from the world-renowned Pismo State Beach and Pismo Pier. The Central Coast market is characterized by extremely high barriers to entry and a limited supply of new lodging inventory.
Tourism Synergy: Adjacent to popular dining and brewery destinations, and just 15 minutes from the rapidly expanding San Luis Obispo County Airport, which is nearing 1,000,000 annual passengers.
Strong Fundamentals: Local STR (Smith Travel Research) data indicates a resilient hospitality market with consistent year-round occupancy from leisure, group, and business travel.
STRATEGIC FLEXIBILITY
This project offers multiple exit and liquidity strategies. An investor may choose to build and operate the entire portfolio for maximum synergy, or sell the seven residential lots during construction to generate immediate liquidity and enhance the overall return on investment. With hard construction bids in hand and several lenders already indicating interest via conventional, SBA, and USDA funding routes, this represents a rare, de-risked entry into a premier California submarket.
Investment Highlights
Phase 1 Immediacy: Construction drawings for the 93-unit La Quinta Inn & Suites are in their third round of city review, allowing for a condensed timeline to groundbreaking.
Brand Versatility: Hotel A remains open for branding with top-tier flags like Hilton, Marriott, IHG, or Hyatt.
Unrivaled Visibility: Unique approvals are in place for two 50-foot highway-oriented pylon signs along the US Highway 101 corridor.
Demonstrated Capital Interest: The project’s economics and location have secured willingness to lend from several regional and national lenders, offering a clear path to both construction and permanent financing.
Darshan Patel is acting as principal and broker for this offering and eventual transaction.
Data Room Click Here to Access
- Offering Memorandum
Property Facts
| Sale Type | Investment | Construction Status | Final Planning |
| Cap Rate | 7% | Building Size | 52,500 SF |
| Property Type | Hospitality | No. Rooms | 91 |
| Property Subtype | Hotel | No. Stories | 4 |
| Building Class | B | Year Built | 2028 |
| Lot Size | 7.29 AC | Corridor | Interior |
| Zoning | RC & OS - Approved Planned Development Overlay, Vesting Tentative Tract Map, and entitlements allow for the planned hospitality and residential development. | ||
| Sale Type | Investment |
| Cap Rate | 7% |
| Property Type | Hospitality |
| Property Subtype | Hotel |
| Building Class | B |
| Lot Size | 7.29 AC |
| Construction Status | Final Planning |
| Building Size | 52,500 SF |
| No. Rooms | 91 |
| No. Stories | 4 |
| Year Built | 2028 |
| Corridor | Interior |
| Zoning | RC & OS - Approved Planned Development Overlay, Vesting Tentative Tract Map, and entitlements allow for the planned hospitality and residential development. |
Amenities
- Business Center
- Controlled Access
- Fitness Center
- Pool
- Spa
- Wheelchair Accessible
- On-Site Bar
- Meeting Event Space
- Public Access Wifi
- Smoke-Free
- Fiber Optic Internet
- Smoke Detector
Room Mix Information
| Description | No. Rooms | Daily Rate | SF |
|---|---|---|---|
| Suite | 28 | $351.26 CAD | - |
| Guest Room | 63 | $282.39 CAD | - |
1 1
Fairly walkable
40/100
Exceptionally drivable
100/100
Limited public transit
20/100
Fairly bikeable
40/100
Property Taxes
| Parcel Numbers | Improvements Assessment | $275,593 CAD | |
| Land Assessment | $1,259,862 CAD | Total Assessment | $1,535,455 CAD |
Property Taxes
Parcel Numbers
Land Assessment
$1,259,862 CAD
Improvements Assessment
$275,593 CAD
Total Assessment
$1,535,455 CAD
1 of 11
Videos
Matterport 3D Exterior
Matterport 3D Tour
Photos
Street View
Street
Map
1 of 1
Presented by
Darshan Patel
Entitled Central Coast Hotel Dev Site | 1598 El Camino Real
Already a member? Log In
Hmm, there seems to have been an error sending your message. Please try again.
Thanks! Your message was sent.
