Your email has been sent.
Walnut Hill Business Park II 1600 Corporate Ct 7,243 - 19,229 SF of Flex Space Available in Irving, TX 75038



Highlights
- 24/7 Access
- Options for flex or office space
- Convenient Door-side parking
- Private Restrooms
Features
All Available Spaces(2)
Display Rental Rate as
- Space
- Size
- Term
- Rental Rate
- Space Use
- Build-Out
- Available
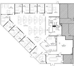
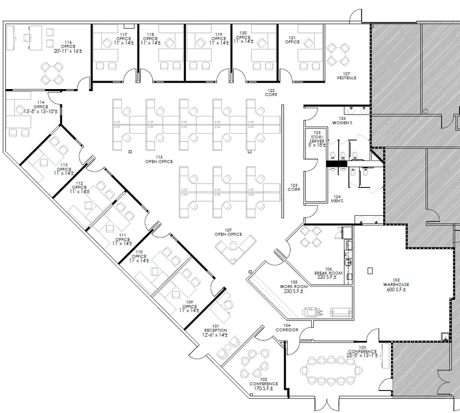
Suite 100 offers a highly efficient, end-cap layout designed for users who value functionality and natural light. The space features a high ratio of private offices along the glass line, complemented by open interior workspace ideal for workstations or collaboration areas. New interior finishes provide a clean, professional image, with a sizable conference room and a large storage area. This suite is an easy option for professional service firms, back-office operations, or teams that need move-in ready space without renovation downtime.
- Lease rate does not include utilities, property expenses or building services
- Secure Storage
- Conference Rooms
- Convenient Door-side Parking
- Central Air and Heating
- After Hours HVAC Available
- 24/7 Access
- Monument Signage
Position your business in one of DFW’s most desirable corporate hubs. 1600 Corporate Court offers flexible, climate-controlled space ideal for office, production, or light lab environments—all with the convenience of a grade-level loading door for efficient operations. This suite is 100% air-conditioned, making it well-suited for companies that require comfort, clean workspace, or temperature-sensitive processes. Located in Las Colinas, tenants benefit from excellent highway access, a deep labor pool, nearby corporate amenities, and proximity to DFW Airport.
- Lease rate does not include utilities, property expenses or building services
- Private Restrooms
- After Hours HVAC Available
- 24/7 Access
- Monument Signage
- Central Air and Heating
- Secure Storage
- Conference Rooms
- Convenient Door-side Parking
- 1 Grade Level Door
| Space | Size | Term | Rental Rate | Space Use | Build-Out | Available |
| 1st Floor - 100 | 7,243 SF | Negotiable | $23.25 CAD/SF/YR $1.94 CAD/SF/MO $168,424 CAD/YR $14,035 CAD/MO | Flex | - | Now |
| 1st Floor - 150 | 11,986 SF | Negotiable | $16.41 CAD/SF/YR $1.37 CAD/SF/MO $196,739 CAD/YR $16,395 CAD/MO | Flex | - | Now |
1st Floor - 100
| Size |
| 7,243 SF |
| Term |
| Negotiable |
| Rental Rate |
| $23.25 CAD/SF/YR $1.94 CAD/SF/MO $168,424 CAD/YR $14,035 CAD/MO |
| Space Use |
| Flex |
| Build-Out |
| - |
| Available |
| Now |
1st Floor - 150
| Size |
| 11,986 SF |
| Term |
| Negotiable |
| Rental Rate |
| $16.41 CAD/SF/YR $1.37 CAD/SF/MO $196,739 CAD/YR $16,395 CAD/MO |
| Space Use |
| Flex |
| Build-Out |
| - |
| Available |
| Now |
1st Floor - 100
| Size | 7,243 SF |
| Term | Negotiable |
| Rental Rate | $23.25 CAD/SF/YR |
| Space Use | Flex |
| Build-Out | - |
| Available | Now |
Suite 100 offers a highly efficient, end-cap layout designed for users who value functionality and natural light. The space features a high ratio of private offices along the glass line, complemented by open interior workspace ideal for workstations or collaboration areas. New interior finishes provide a clean, professional image, with a sizable conference room and a large storage area. This suite is an easy option for professional service firms, back-office operations, or teams that need move-in ready space without renovation downtime.
- Lease rate does not include utilities, property expenses or building services
- Central Air and Heating
- Secure Storage
- After Hours HVAC Available
- Conference Rooms
- 24/7 Access
- Convenient Door-side Parking
- Monument Signage
1st Floor - 150
| Size | 11,986 SF |
| Term | Negotiable |
| Rental Rate | $16.41 CAD/SF/YR |
| Space Use | Flex |
| Build-Out | - |
| Available | Now |
Position your business in one of DFW’s most desirable corporate hubs. 1600 Corporate Court offers flexible, climate-controlled space ideal for office, production, or light lab environments—all with the convenience of a grade-level loading door for efficient operations. This suite is 100% air-conditioned, making it well-suited for companies that require comfort, clean workspace, or temperature-sensitive processes. Located in Las Colinas, tenants benefit from excellent highway access, a deep labor pool, nearby corporate amenities, and proximity to DFW Airport.
- Lease rate does not include utilities, property expenses or building services
- Central Air and Heating
- Private Restrooms
- Secure Storage
- After Hours HVAC Available
- Conference Rooms
- 24/7 Access
- Convenient Door-side Parking
- Monument Signage
- 1 Grade Level Door
Property Overview
Excellent price point for office/manufacturing/medical space. Position your business in one of DFW’s most desirable corporate hubs with easy access to freeways and only minutes to DFW airport and DART Station. Floor to ceiling windows all around and convenient door-side parking. Tenant can imprint their style by choosing finishes and configuration. In the heart of Las Colinas! Immediately adjacent to intersection of 114 and President George Bush Tollway-Hwy. 161. This property is in a densely populated and affluent area. Zoning allows for a wide array of uses ranging from healthcare, education, and support services.
Property Facts
Select Tenants
- Floor
- Tenant Name
- Industry
- 1st
- Curion
- Professional, Scientific, and Technical Services
Presented by
Walnut Hill Business Park II | 1600 Corporate Ct
Hmm, there seems to have been an error sending your message. Please try again.
Thanks! Your message was sent.







