Your email has been sent.
HIGHLIGHTS
- Incredible visability on heavily trafficked Dempster Street next to Portillos and across from Lutheran general Hospital!
- Medical/ Office Space, Fully built out medical space
ALL AVAILABLE SPACES(5)
Display Rental Rate as
- SPACE
- SIZE
- TERM
- RENTAL RATE
- SPACE USE
- CONDITION
- AVAILABLE
Office/medical space available for lease
- Lease rate does not include utilities, property expenses or building services
- Fits 2 - 7 People
- Space is in Excellent Condition
- Central Air Conditioning
- Fully Built-Out as Standard Medical Space
- 3 Private Offices
- Reception Area
955 SF for lease.
- Lease rate does not include utilities, property expenses or building services
- Can be combined with additional space(s) for up to 1,361 SF of adjacent space
- Fully Built-Out as Standard Medical Space
Suite 106 available for lease.
- Lease rate does not include utilities, property expenses or building services
- Office intensive layout
- Reception Area
- Partially Built-Out as Standard Medical Space
- Can be combined with additional space(s) for up to 1,361 SF of adjacent space
Office/medical space available for lease
- Lease rate does not include utilities, property expenses or building services
- Fits 3 - 8 People
- Fully Built-Out as Standard Office
- Can be combined with additional space(s) for up to 1,322 SF of adjacent space
Built out office space available for lease
- Lease rate does not include utilities, property expenses or building services
- Fits 1 - 3 People
- Space is in Excellent Condition
- Reception Area
- Private Restrooms
- Fully Built-Out as Standard Office
- 3 Private Offices
- Can be combined with additional space(s) for up to 1,322 SF of adjacent space
- Central Air Conditioning
| Space | Size | Term | Rental Rate | Space Use | Condition | Available |
| 1st Floor, Ste 103 | 792 SF | Negotiable | Upon Request Upon Request Upon Request Upon Request | Office/Medical | Full Build-Out | Now |
| 1st Floor, Ste 105 | 737 SF | Negotiable | Upon Request Upon Request Upon Request Upon Request | Medical | Full Build-Out | Now |
| 1st Floor, Ste 106 | 624 SF | Negotiable | Upon Request Upon Request Upon Request Upon Request | Medical | Partial Build-Out | Now |
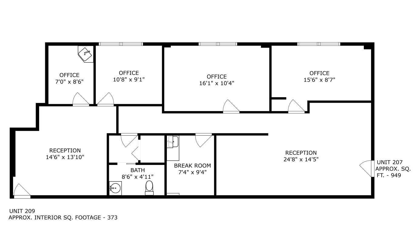
| 2nd Floor, Ste 207 | 949 SF | Negotiable | Upon Request Upon Request Upon Request Upon Request | Office/Medical | Full Build-Out | Now |
| 2nd Floor, Ste 209 | 373 SF | Negotiable | Upon Request Upon Request Upon Request Upon Request | Office/Medical | Full Build-Out | Now |
1st Floor, Ste 103
| Size |
| 792 SF |
| Term |
| Negotiable |
| Rental Rate |
| Upon Request Upon Request Upon Request Upon Request |
| Space Use |
| Office/Medical |
| Condition |
| Full Build-Out |
| Available |
| Now |
1st Floor, Ste 105
| Size |
| 737 SF |
| Term |
| Negotiable |
| Rental Rate |
| Upon Request Upon Request Upon Request Upon Request |
| Space Use |
| Medical |
| Condition |
| Full Build-Out |
| Available |
| Now |
1st Floor, Ste 106
| Size |
| 624 SF |
| Term |
| Negotiable |
| Rental Rate |
| Upon Request Upon Request Upon Request Upon Request |
| Space Use |
| Medical |
| Condition |
| Partial Build-Out |
| Available |
| Now |
2nd Floor, Ste 207
| Size |
| 949 SF |
| Term |
| Negotiable |
| Rental Rate |
| Upon Request Upon Request Upon Request Upon Request |
| Space Use |
| Office/Medical |
| Condition |
| Full Build-Out |
| Available |
| Now |
2nd Floor, Ste 209
| Size |
| 373 SF |
| Term |
| Negotiable |
| Rental Rate |
| Upon Request Upon Request Upon Request Upon Request |
| Space Use |
| Office/Medical |
| Condition |
| Full Build-Out |
| Available |
| Now |
1st Floor, Ste 103
| Size | 792 SF |
| Term | Negotiable |
| Rental Rate | Upon Request |
| Space Use | Office/Medical |
| Condition | Full Build-Out |
| Available | Now |
Office/medical space available for lease
- Lease rate does not include utilities, property expenses or building services
- Fully Built-Out as Standard Medical Space
- Fits 2 - 7 People
- 3 Private Offices
- Space is in Excellent Condition
- Reception Area
- Central Air Conditioning
1st Floor, Ste 105
| Size | 737 SF |
| Term | Negotiable |
| Rental Rate | Upon Request |
| Space Use | Medical |
| Condition | Full Build-Out |
| Available | Now |
955 SF for lease.
- Lease rate does not include utilities, property expenses or building services
- Fully Built-Out as Standard Medical Space
- Can be combined with additional space(s) for up to 1,361 SF of adjacent space
1st Floor, Ste 106
| Size | 624 SF |
| Term | Negotiable |
| Rental Rate | Upon Request |
| Space Use | Medical |
| Condition | Partial Build-Out |
| Available | Now |
Suite 106 available for lease.
- Lease rate does not include utilities, property expenses or building services
- Partially Built-Out as Standard Medical Space
- Office intensive layout
- Can be combined with additional space(s) for up to 1,361 SF of adjacent space
- Reception Area
2nd Floor, Ste 207
| Size | 949 SF |
| Term | Negotiable |
| Rental Rate | Upon Request |
| Space Use | Office/Medical |
| Condition | Full Build-Out |
| Available | Now |
Office/medical space available for lease
- Lease rate does not include utilities, property expenses or building services
- Fully Built-Out as Standard Office
- Fits 3 - 8 People
- Can be combined with additional space(s) for up to 1,322 SF of adjacent space
2nd Floor, Ste 209
| Size | 373 SF |
| Term | Negotiable |
| Rental Rate | Upon Request |
| Space Use | Office/Medical |
| Condition | Full Build-Out |
| Available | Now |
Built out office space available for lease
- Lease rate does not include utilities, property expenses or building services
- Fully Built-Out as Standard Office
- Fits 1 - 3 People
- 3 Private Offices
- Space is in Excellent Condition
- Can be combined with additional space(s) for up to 1,322 SF of adjacent space
- Reception Area
- Central Air Conditioning
- Private Restrooms
PROPERTY OVERVIEW
•Incredible opportunity to join top professional office Tenants offering a variety of services. Across the street from Advocate Lutheran General Hospital • High visability with signage on heavily trafficked Dempster Street next to Portillos. On Site Management • Immediate Access to I-294 (Tri-State Tollway) at Route 14 (Dempster Street) • Ample Free Parking • High End and Modern Lobby • Served by Pace Bus Route 209 to Des Plaines Metra Station and Harlem CTA Station • HVAC & Janitorial Service Included in Lease • Population of 141,216 in a 3 mile radius • Median Household Income of $73,414 • VPD: over 20,000
- Signage
PROPERTY FACTS
SELECT TENANTS
- FLOOR
- TENANT NAME
- INDUSTRY
- 1st
- Dr. Emelita Wong, DDS
- Health Care and Social Assistance
- 2nd
- Gerald Westphol, D.D.S.
- Health Care and Social Assistance
- 1st
- Gericare
- Health Care and Social Assistance
- 2nd
- Glenora Facial and Body Care
- Services
- 2nd
- John D'anca
- Services
- 2nd
- Margaret Grau, LCSW
- Services
- LL
- Neurology & Neurodiagnostic & Treatment Center
- Health Care and Social Assistance
- LL
- Premier Rehab Svc
- Services
- 1st
- Quest Diagnostics
- Health Care and Social Assistance
- 2nd
- State Farm
- Finance and Insurance
Presented by
1600 Professional Bldg | 1600 W Dempster St
Hmm, there seems to have been an error sending your message. Please try again.
Thanks! Your message was sent.











