Your email has been sent.
2 Adjacent Retail Stores 1601-1607 N La Brea Ave 1,000 - 2,700 SF of Retail Space Available in Los Angeles, CA 90028



Highlights
- 2 Adjacent Retail Units: Take One or Both!
- Between Sunset Blvd and Hollywood Blvd on Busy La Brea Ave
- Prime Hollywood Signalized Corner Location
- Shared Parking, Excellent Signage, High Population Density
Space Availability (2)
Display Rental Rate as
- Space
- Size
- Term
- Rental Rate
- Rent Type
| Space | Size | Term | Rental Rate | Rent Type | ||
| 1st Floor, Ste 1601 | 1,000 SF | 3-10 Years | $58.06 CAD/SF/YR $4.84 CAD/SF/MO $58,061 CAD/YR $4,838 CAD/MO | Triple Net (NNN) | ||
| 1st Floor, Ste 1601½ | 1,700 SF | 3-5 Years | $58.06 CAD/SF/YR $4.84 CAD/SF/MO $98,703 CAD/YR $8,225 CAD/MO | Triple Net (NNN) |
1st Floor, Ste 1601
Prime retail exposure and visibility. Retail center with heavy traffic corner location. 31,410 VPD traffic count (2025). Ideally situated between Hollywood Blvd & Sunset Blvd. ±1,000 SF unit has a restroom. Shared on-site parking. Corner signage opportunity (La Brea Blvd and Hawthorn Avenue). 54,445 population within one mile. Can combine adjacent ±1,700 SF unit for a total of ±2,700 SF.
- Lease rate does not include utilities, property expenses or building services
- Highly Desirable End Cap Space
- Can be combined with additional space(s) for up to 2,700 SF of adjacent space
- Private Restrooms
1st Floor, Ste 1601½
Prime retail exposure and visibility. Retail center with heavy traffic corner location. 31,410 VPD traffic count (2025). Ideally situated between Hollywood Blvd & Sunset Blvd. Includes 2 offices, a walk-in freezer, restroom and a free bonus mezzanine area. Shared on-site parking. Corner signage opportunity (La Brea Blvd and Hawthorn Avenue). 54,445 population within one mile. Can combine adjacent ±1,000 SF unit for a total of ±2,700 SF.
- Lease rate does not include utilities, property expenses or building services
- Highly Desirable End Cap Space
- Can be combined with additional space(s) for up to 2,700 SF of adjacent space
- Private Restrooms
Rent Types
The rent amount and type that the tenant (lessee) will be responsible to pay to the landlord (lessor) throughout the lease term is negotiated prior to both parties signing a lease agreement. The rent type will vary depending upon the services provided. For example, triple net rents are typically lower than full service rents due to additional expenses the tenant is required to pay in addition to the base rent. Contact the listing broker for a full understanding of any associated costs or additional expenses for each rent type.
1. Full Service: A rental rate that includes normal building standard services as provided by the landlord within a base year rental.
2. Double Net (NN): Tenant pays for only two of the building expenses; the landlord and tenant determine the specific expenses prior to signing the lease agreement.
3. Triple Net (NNN): A lease in which the tenant is responsible for all expenses associated with their proportional share of occupancy of the building.
4. Modified Gross: Modified Gross is a general type of lease rate where typically the tenant will be responsible for their proportional share of one or more of the expenses. The landlord will pay the remaining expenses. See the below list of common Modified Gross rental rate structures: 4. Plus All Utilities: A type of Modified Gross Lease where the tenant is responsible for their proportional share of utilities in addition to the rent. 4. Plus Cleaning: A type of Modified Gross Lease where the tenant is responsible for their proportional share of cleaning in addition to the rent. 4. Plus Electric: A type of Modified Gross Lease where the tenant is responsible for their proportional share of the electrical cost in addition to the rent. 4. Plus Electric & Cleaning: A type of Modified Gross Lease where the tenant is responsible for their proportional share of the electrical and cleaning cost in addition to the rent. 4. Plus Utilities and Char: A type of Modified Gross Lease where the tenant is responsible for their proportional share of the utilities and cleaning cost in addition to the rent. 4. Industrial Gross: A type of Modified Gross lease where the tenant pays one or more of the expenses in addition to the rent. The landlord and tenant determine these prior to signing the lease agreement.
5. Tenant Electric: The landlord pays for all services and the tenant is responsible for their usage of lights and electrical outlets in the space they occupy.
6. Negotiable or Upon Request: Used when the leasing contact does not provide the rent or service type.
7. TBD: To be determined; used for buildings for which no rent or service type is known, commonly utilized when the buildings are not yet built.
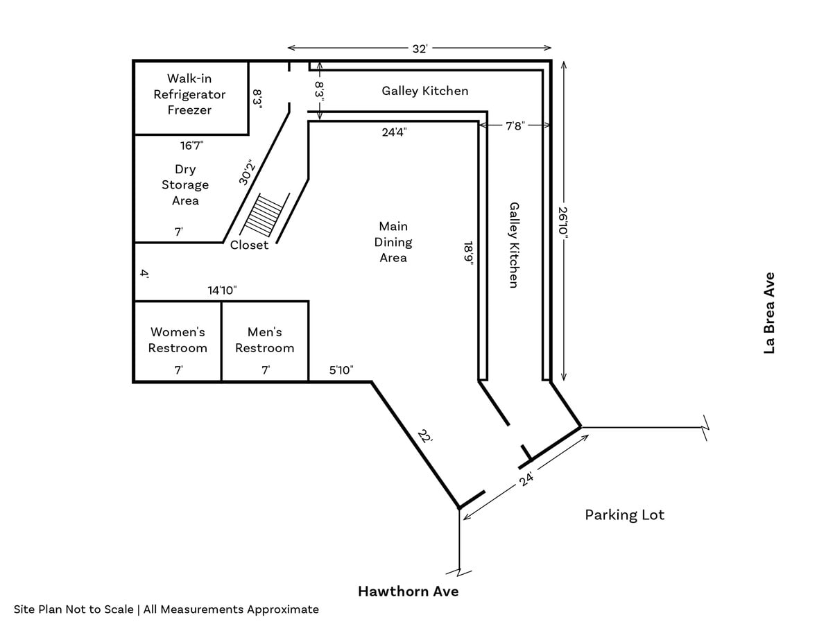
Site Plan
Property Facts
| Total Space Available | 2,700 SF | Total Land Area | 0.27 AC |
| Property Type | Retail | Year Built | 1986 |
| Gross Leasable Area | 7,163 SF | Parking Ratio | 2.23/1,000 SF |
| Total Space Available | 2,700 SF |
| Property Type | Retail |
| Gross Leasable Area | 7,163 SF |
| Total Land Area | 0.27 AC |
| Year Built | 1986 |
| Parking Ratio | 2.23/1,000 SF |
About the Property
2 adjacent retail units: Take one or both! ±1,000 SF unit and ±1,700 SF unit; ±2,700 SF combined. ±1,700 SF unit includes 2 offices, a walk-in freezer, restroom and a free bonus mezzanine area. ±1,000 SF unit has a restroom. Prime retail exposure and visibility. Retail center with heavy traffic corner location. 31,410 VPD traffic count (2025). Ideally situated between Hollywood Blvd & Sunset Blvd. Shared on-site parking. Corner signage opportunity (La Brea Blvd and Hawthorn Avenue). 54,445 population within one mile.
Nearby Major Retailers
Presented by
2 Adjacent Retail Stores | 1601-1607 N La Brea Ave
Hmm, there seems to have been an error sending your message. Please try again.
Thanks! Your message was sent.






