Log In/Sign Up
Your email has been sent.
161 Hob Moor Rd 12,668 SF Sports & Entertainment Building Offered at $2,328,746 CAD in Birmingham B10 9BS



Investment Highlights
- Bowling Green
- Former caretaker's flat
- Substantial function room
Executive Summary
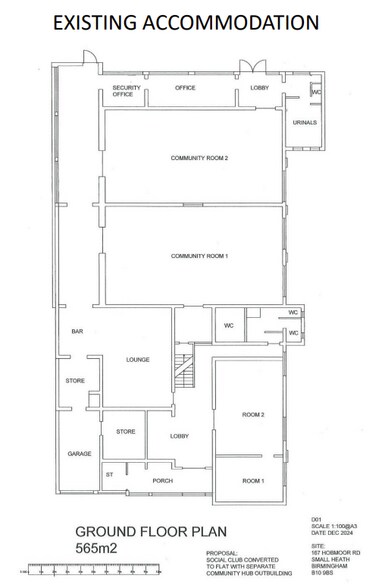
The subject premises comprises a substantial, detached, 3 storey structure, until recently, utilised on the basis of a working men’s club. The property is available for sale on a freehold basis, with the asking price at £1,250,000.
Property Facts
| Price | $2,328,746 CAD | Building Class | C |
| Price Per SF | $183.83 CAD | Lot Size | 0.55 AC |
| Sale Type | Investment or Owner User | Building Size | 12,668 SF |
| Tenure | Freehold | No. Stories | 3 |
| Property Type | Sports & Entertainment | Year Built | 1900 |
| Price | $2,328,746 CAD |
| Price Per SF | $183.83 CAD |
| Sale Type | Investment or Owner User |
| Tenure | Freehold |
| Property Type | Sports & Entertainment |
| Building Class | C |
| Lot Size | 0.55 AC |
| Building Size | 12,668 SF |
| No. Stories | 3 |
| Year Built | 1900 |
Amenities
- Lounge
- Smoke Detector
1 1
1 of 6
Videos
Matterport 3D Exterior
Matterport 3D Tour
Photos
Street View
Street
Map
1 of 1
Presented by
161 Hob Moor Rd
Already a member? Log In
Hmm, there seems to have been an error sending your message. Please try again.
Thanks! Your message was sent.
