Your email has been sent.
Tri-City Medical Arts Building 161 Thunder Dr 643 - 6,433 SF of Office/Medical Space Available in Vista, CA 92083



Highlights
- Prominent building signage opportunities enhance visibility within the North County San Diego healthcare market.
- Easy access to major transportation routes, serving Vista, Oceanside, and the broader North County area.
All Available Spaces(5)
Display Rental Rate as
- Space
- Size
- Term
- Rental Rate
- Space Use
- Build-Out
- Available
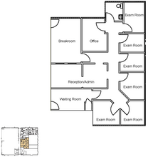
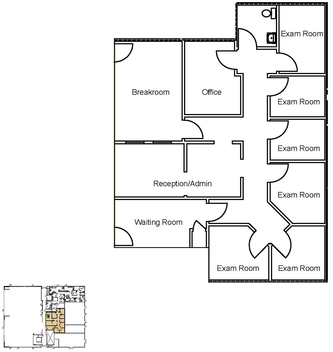
Suite 103 (Contiguous with Suite 106 - 4,214 SF) • Space Available: 1,531 SF • Lease Rate: Call for details • Lease Type: Call for details • Suite Description: 6 Exam Rooms. Private Office. Restroom. Breakroom. Waiting Room and Reception/Admin. Floor Plan: https://medwestrealty.com/wp-content/uploads/2023/09/103.png
- Fully Built-Out as Standard Medical Space
- Space is in Excellent Condition
- 1 Private Office
- Can be combined with additional space(s) for up to 4,214 SF of adjacent space
Suite 104 • Space Available: 643 SF • Lease Rate: Call for details • Lease Type: Call for details • Suite Description: Waiting Room. In-Suite Restroom and 2 Exam Rooms. Floor Plan: https://medwestrealty.com/wp-content/uploads/2023/09/Suite-104.png
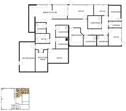
Suite 106 (Contiguous with Suite 108 - 11,730 RSF) • Space Available: 2,683 SF • Lease Rate: Call for details • Lease Type: Call for details • Suite Description: Waiting Room. Reception/Admin. 6 Exam Rooms. 2 Doctor’s Offices. 2 In-Suite Restrooms. Breakroom and 2 Storage Rooms. Floor Plan: https://medwestrealty.com/wp-content/uploads/2023/09/Suite-106.jpg Virtual Tour: https://my.matterport.com/show/?m=xeKmdTV3zDA
- Partially Built-Out as Standard Medical Space
- Can be combined with additional space(s) for up to 4,214 SF of adjacent space
- Private Restrooms
- Office intensive layout
- Reception Area
- High Visibility
Suite 203 • Space Available: 812 SF • Lease Rate: Call for details • Lease Type: Call for details • Suite Description: Open Build-out. Floor Plan: https://medwestrealty.com/wp-content/uploads/2023/09/Suite-203.jpg
- Fully Built-Out as Standard Medical Space
- Space is in Excellent Condition
- Open Floor Plan Layout
Suite 209 • Space Available: 764 SF • Lease Rate: Call for details • Lease Type: Call for details • Suite Description: Waiting Room. Reception/Admin. 3 Exam Rooms. In-Suite Restroom, and Nurses’ Station. Floor Plan: https://medwestrealty.com/wp-content/uploads/2023/09/Suite-209-scaled.png Virtual Tour: https://my.matterport.com/show/?m=Q7fn5GBYHsB
- Fully Built-Out as Standard Medical Space
- Space is in Excellent Condition
- Office intensive layout
| Space | Size | Term | Rental Rate | Space Use | Build-Out | Available |
| 1st Floor, Ste 103 | 1,531 SF | Negotiable | Upon Request Upon Request Upon Request Upon Request | Office/Medical | Full Build-Out | Now |
| 1st Floor, Ste 104 | 643 SF | Negotiable | Upon Request Upon Request Upon Request Upon Request | Office/Medical | - | Now |
| 1st Floor, Ste 106 | 2,683 SF | Negotiable | Upon Request Upon Request Upon Request Upon Request | Office/Medical | Partial Build-Out | Now |
| 2nd Floor, Ste 203 | 812 SF | Negotiable | Upon Request Upon Request Upon Request Upon Request | Office/Medical | Full Build-Out | Now |
| 2nd Floor, Ste 209 | 764 SF | Negotiable | Upon Request Upon Request Upon Request Upon Request | Office/Medical | Full Build-Out | Now |
1st Floor, Ste 103
| Size |
| 1,531 SF |
| Term |
| Negotiable |
| Rental Rate |
| Upon Request Upon Request Upon Request Upon Request |
| Space Use |
| Office/Medical |
| Build-Out |
| Full Build-Out |
| Available |
| Now |
1st Floor, Ste 104
| Size |
| 643 SF |
| Term |
| Negotiable |
| Rental Rate |
| Upon Request Upon Request Upon Request Upon Request |
| Space Use |
| Office/Medical |
| Build-Out |
| - |
| Available |
| Now |
1st Floor, Ste 106
| Size |
| 2,683 SF |
| Term |
| Negotiable |
| Rental Rate |
| Upon Request Upon Request Upon Request Upon Request |
| Space Use |
| Office/Medical |
| Build-Out |
| Partial Build-Out |
| Available |
| Now |
2nd Floor, Ste 203
| Size |
| 812 SF |
| Term |
| Negotiable |
| Rental Rate |
| Upon Request Upon Request Upon Request Upon Request |
| Space Use |
| Office/Medical |
| Build-Out |
| Full Build-Out |
| Available |
| Now |
2nd Floor, Ste 209
| Size |
| 764 SF |
| Term |
| Negotiable |
| Rental Rate |
| Upon Request Upon Request Upon Request Upon Request |
| Space Use |
| Office/Medical |
| Build-Out |
| Full Build-Out |
| Available |
| Now |
1st Floor, Ste 103
| Size | 1,531 SF |
| Term | Negotiable |
| Rental Rate | Upon Request |
| Space Use | Office/Medical |
| Build-Out | Full Build-Out |
| Available | Now |
Suite 103 (Contiguous with Suite 106 - 4,214 SF) • Space Available: 1,531 SF • Lease Rate: Call for details • Lease Type: Call for details • Suite Description: 6 Exam Rooms. Private Office. Restroom. Breakroom. Waiting Room and Reception/Admin. Floor Plan: https://medwestrealty.com/wp-content/uploads/2023/09/103.png
- Fully Built-Out as Standard Medical Space
- 1 Private Office
- Space is in Excellent Condition
- Can be combined with additional space(s) for up to 4,214 SF of adjacent space
1st Floor, Ste 104
| Size | 643 SF |
| Term | Negotiable |
| Rental Rate | Upon Request |
| Space Use | Office/Medical |
| Build-Out | - |
| Available | Now |
Suite 104 • Space Available: 643 SF • Lease Rate: Call for details • Lease Type: Call for details • Suite Description: Waiting Room. In-Suite Restroom and 2 Exam Rooms. Floor Plan: https://medwestrealty.com/wp-content/uploads/2023/09/Suite-104.png
1st Floor, Ste 106
| Size | 2,683 SF |
| Term | Negotiable |
| Rental Rate | Upon Request |
| Space Use | Office/Medical |
| Build-Out | Partial Build-Out |
| Available | Now |
Suite 106 (Contiguous with Suite 108 - 11,730 RSF) • Space Available: 2,683 SF • Lease Rate: Call for details • Lease Type: Call for details • Suite Description: Waiting Room. Reception/Admin. 6 Exam Rooms. 2 Doctor’s Offices. 2 In-Suite Restrooms. Breakroom and 2 Storage Rooms. Floor Plan: https://medwestrealty.com/wp-content/uploads/2023/09/Suite-106.jpg Virtual Tour: https://my.matterport.com/show/?m=xeKmdTV3zDA
- Partially Built-Out as Standard Medical Space
- Office intensive layout
- Can be combined with additional space(s) for up to 4,214 SF of adjacent space
- Reception Area
- Private Restrooms
- High Visibility
2nd Floor, Ste 203
| Size | 812 SF |
| Term | Negotiable |
| Rental Rate | Upon Request |
| Space Use | Office/Medical |
| Build-Out | Full Build-Out |
| Available | Now |
Suite 203 • Space Available: 812 SF • Lease Rate: Call for details • Lease Type: Call for details • Suite Description: Open Build-out. Floor Plan: https://medwestrealty.com/wp-content/uploads/2023/09/Suite-203.jpg
- Fully Built-Out as Standard Medical Space
- Open Floor Plan Layout
- Space is in Excellent Condition
2nd Floor, Ste 209
| Size | 764 SF |
| Term | Negotiable |
| Rental Rate | Upon Request |
| Space Use | Office/Medical |
| Build-Out | Full Build-Out |
| Available | Now |
Suite 209 • Space Available: 764 SF • Lease Rate: Call for details • Lease Type: Call for details • Suite Description: Waiting Room. Reception/Admin. 3 Exam Rooms. In-Suite Restroom, and Nurses’ Station. Floor Plan: https://medwestrealty.com/wp-content/uploads/2023/09/Suite-209-scaled.png Virtual Tour: https://my.matterport.com/show/?m=Q7fn5GBYHsB
- Fully Built-Out as Standard Medical Space
- Office intensive layout
- Space is in Excellent Condition
Property Overview
Tri-City Medical Arts Building 161 Thunder Drive, Vista, CA 92083 The Tri City Medical Arts building is located at 161 Thunder Drive in Vista, CA . This medical office building offers over 30,000 SF of prime medical office space across the street from the renowned Tri-City Medical Center. The building features multiple medical office suites ranging from 800 SF – 8,600 SF with abundant window lines, multiple entrance options, and large open floorplans, providing an ideal environment for medical practices, Vista and Oceanside, part of the vibrant North County San Diego region, are known for their growing populations of young families and retirees, creating a strong demand for quality healthcare services. The North County San Diego region continues to see significant growth in the medical sector, making this location highly desirable for healthcare providers. With its strategic location, modern amenities, and proximity to a major medical center, 161 Thunder Drive is well-positioned to meet the needs of a growing and diverse population. ------------------------ Property Features: PRIME LOCATION • Building is located across the street from Tri-City Medical Center, which is situated in the heart of Vista, California VISIBILITY • Building top signage to help amplify your brand in the North County San Diego community AMPLE PARKING • Ample retail-like parking with a drive-up and walk-in opportunity for patients and staff ------------------------ 5 Suites Available: ------------------------ Suite 103 (Contiguous with Suite 106 - 4,214 SF) • Space Available: 1,531 SF • Lease Rate: Call for details • Lease Type: Call for details • Suite Description: 6 Exam Rooms. Private Office. Restroom. Breakroom. Waiting Room and Reception/Admin. Floor Plan: https://medwestrealty.com/wp-content/uploads/2023/09/MW_161-Thunder-Dr-Suite-103-v2.png ------------------------ Suite 104 • Space Available: 643 SF • Lease Rate: Call for details • Lease Type: Call for details • Suite Description: Waiting Room. In-Suite Restroom and 2 Exam Rooms. Floor Plan: https://medwestrealty.com/wp-content/uploads/2023/09/Suite-104.png ------------------------ Suite 106 (Contiguous with Suite 103 - 4,214 SF) • Space Available: 2,683 SF • Lease Rate: Call for details • Lease Type: Call for details • Suite Description: Waiting Room. Reception/Admin. 6 Exam Rooms. 2 Doctor’s Offices. 2 In-Suite Restrooms. Breakroom and 2 Storage Rooms. Floor Plan: https://medwestrealty.com/wp-content/uploads/2023/09/MW_161-Thunder-Dr_Suite-106_v2.png Virtual Tour: https://my.matterport.com/show/?m=xeKmdTV3zDA ------------------------ Suite 203 • Space Available: 812 SF • Lease Rate: Call for details • Lease Type: Call for details • Suite Description: Open Build-out. Floor Plan: https://medwestrealty.com/wp-content/uploads/2023/09/MW_161-Thunder-Dr_Suite-203-v2.png ------------------------ Suite 209 • Space Available: 764 SF • Lease Rate: Call for details • Lease Type: Call for details • Suite Description: Waiting Room. Reception/Admin. 3 Exam Rooms. In-Suite Restroom, and Nurses’ Station. Floor Plan: https://medwestrealty.com/wp-content/uploads/2023/09/Suite-209-scaled.png Virtual Tour: https://my.matterport.com/show/?m=Q7fn5GBYHsB ------------------------ MORE DETAILS: https://medicalofficeproperty.com/property/161-thunder-drive-vista-ca/ DOWNLOAD BROCHURE: https://medwestrealty.com/wp-content/uploads/2023/09/MW_ShareMD161-Thunder-Dr-LB17_WL.pdf
- Signage
Property Facts
Presented by
Tri-City Medical Arts Building | 161 Thunder Dr
Hmm, there seems to have been an error sending your message. Please try again.
Thanks! Your message was sent.










