Log In/Sign Up
Your email has been sent.
16227 D Street - 42 lots - Shovel Ready 9.12 Acres of Residential Land Offered at $2,188,544 CAD in Madera, CA 93638



Investment Highlights
- Shovel Ready
- Improvement Plans will be complete and the Final Map will be ready to record
- Tentative Map Approved
Executive Summary
Prime Residential Development Opportunity - Approved 42-Lot Subdivision.
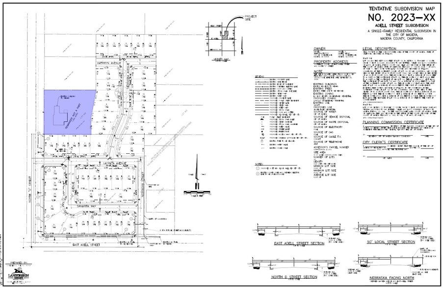
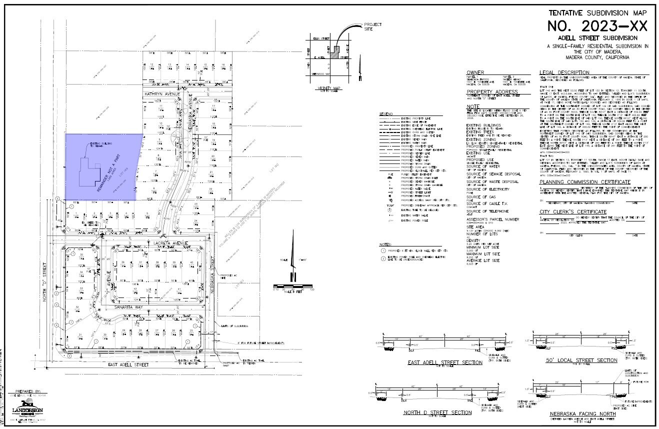
An exceptional opportunity to acquire approximately 8 acres of fully annexed land with an Approved Tentative Subdivision Map for 42 single-family residential lots (50' x 100'). Annexation has been completed and officially recorded, the subdivision improvement plans are in their second submittal and are anticipated to be approved, with the final map ready for recording in the coming months. This project encompasses two APNs being sold together, totaling 9.12 acres. APN# 038-090-010 comprises 5 acres of vacant land and is offered in conjunction with the adjacent northern property, APN# 038-090-009 (4.12 acres).
Please note, the red house on APN# 038-090-009, located at 16255 North D Street, is not included in the sale. The seller will retain the home along with approximately 1 acre of land, leaving roughly 8 acres of land available for subdivision into 42 lots, perfect for new single-family residential construction.
Take advantage of this remarkable investment opportunity in a desirable location, ideal for creating a vibrant residential community. For more information please contact us today.
An exceptional opportunity to acquire approximately 8 acres of fully annexed land with an Approved Tentative Subdivision Map for 42 single-family residential lots (50' x 100'). Annexation has been completed and officially recorded, the subdivision improvement plans are in their second submittal and are anticipated to be approved, with the final map ready for recording in the coming months. This project encompasses two APNs being sold together, totaling 9.12 acres. APN# 038-090-010 comprises 5 acres of vacant land and is offered in conjunction with the adjacent northern property, APN# 038-090-009 (4.12 acres).
Please note, the red house on APN# 038-090-009, located at 16255 North D Street, is not included in the sale. The seller will retain the home along with approximately 1 acre of land, leaving roughly 8 acres of land available for subdivision into 42 lots, perfect for new single-family residential construction.
Take advantage of this remarkable investment opportunity in a desirable location, ideal for creating a vibrant residential community. For more information please contact us today.
Property Facts
| Price | $2,188,544 CAD | Property Subtype | Residential |
| Sale Type | Investment or Owner User | Proposed Use | Single Family Development |
| Sale Condition | 1031 Exchange | Total Lot Size | 9.12 AC |
| No. Lots | 1 | Cross Streets | Adell |
| Property Type | Land | ||
| Zoning | R - Residential | ||
| Price | $2,188,544 CAD |
| Sale Type | Investment or Owner User |
| Sale Condition | 1031 Exchange |
| No. Lots | 1 |
| Property Type | Land |
| Property Subtype | Residential |
| Proposed Use | Single Family Development |
| Total Lot Size | 9.12 AC |
| Cross Streets | Adell |
| Zoning | R - Residential |
1 Lot Available
Lot
| Price | $2,188,544 CAD | Lot Size | 9.12 AC |
| Price Per AC | $239,971.94 CAD |
| Price | $2,188,544 CAD |
| Price Per AC | $239,971.94 CAD |
| Lot Size | 9.12 AC |
Irregular lot comprised of two parcels on a hard corder. Vacant undeveloped land to be subdivided into 42 residential single family home lots of 50'x100'.
1 1
Fairly walkable
40/100
Exceptionally drivable
90/100
Limited public transit
30/100
Somewhat bikeable
30/100
Property Taxes
| Parcel Numbers | Improvements Assessment | $416,596 CAD | |
| Land Assessment | $609,656 CAD | Total Assessment | $1,026,252 CAD |
Property Taxes
Parcel Numbers
Land Assessment
$609,656 CAD
Improvements Assessment
$416,596 CAD
Total Assessment
$1,026,252 CAD
1 of 5
Videos
Matterport 3D Exterior
Matterport 3D Tour
Photos
Street View
Street
Map
1 of 1
Presented by
Andrew Leonardo Properties
16227 D Street - 42 lots - Shovel Ready
Already a member? Log In
Hmm, there seems to have been an error sending your message. Please try again.
Thanks! Your message was sent.
