Log In/Sign Up
Your email has been sent.
1625-1635 Rollins Rd
Burlingame, CA 94010
Industrial Property for Lease
·
56,899 SF


Sublease Highlights
- Miles To Airport: less than 4 miles to SFO
- Truck: Apron: 40 ft
- Year Renovated: 1997
- Sprinklers
- Truck: Court: 140 ft
Features
Clear Height
21’
Levelers
25
Standard Parking Spaces
422
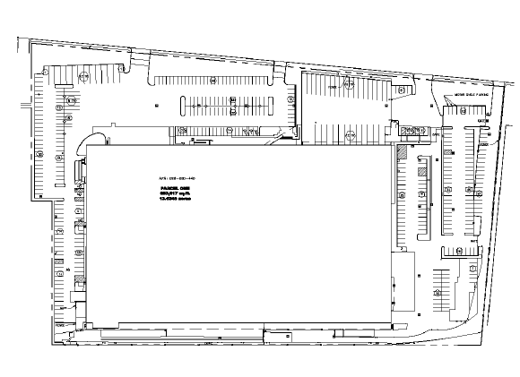
Property Overview
1625-1635 Rollins Road is a ±255,185 square foot single-story industrial warehouse building. The property features 21' ceiling clear height, dock-high loading and 120’ truck courts. The site totals ±13.63 acres and is located within a mile of San Francisco International Airport and the Millbrae BART/Caltrain Station.
Warehouse Facility Facts
Building Size
255,185 SF
Lot Size
13.63 AC
Year Built/Renovated
1950/1997
Construction
Masonry
Water
City Water
Sewer
City Sewer
Gas
Natural
Power Supply
Amps: 4,000 Phase: 3
Zoning
I-I - Innovation Industrial, permitted uses include(not limited to): warehousing and logistics, light industrial,research and development
1 of 4
Videos
Matterport 3D Exterior
Matterport 3D Tour
Photos
Street View
Street
Map
