Your email has been sent.
Park Highlights
- New construction with upscale finishes in place & efficient floor plan available
- Perfectly placed on Prosper Trail
- Single & Double Suite opportunities available
- Nearby the master planned community of Star Trail
- Close proximity to the Dallas North Tollway, US Hwy 380, & Frisco’s “North Platinum Corridor”
- Abundant Parking & Building Signage Available
Park Facts
All Available Spaces(5)
Display Rental Rate as
- Space
- Size
- Term
- Rental Rate
- Space Use
- Build-Out
- Available
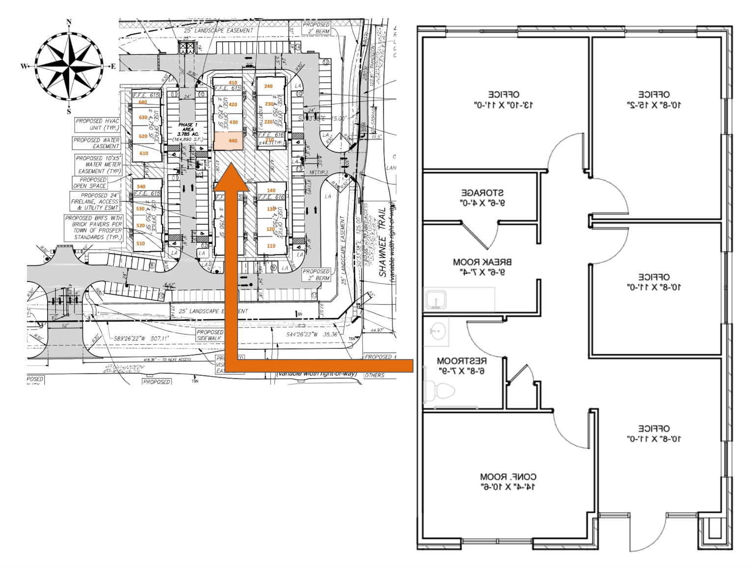
Located in Prosper, The Offices at Prosper Trail will consist of 14 professional office buildings upon completion. It is located near the northwest intersection of Prosper Trail and Shawnee Trail and minutes from the Dallas North Tollway and US Hwy 380. This double suite provides six offices (with the option to make the second entrance an additional office or open area), two conference rooms, two restrooms, two storage closets, and an open kitchen. Tenant controlled HVAC to meet the needs of the business. Building signage available. Call today for a tour!
- Lease rate does not include utilities, property expenses or building services
- Fits 6 - 19 People
- 2 Conference Rooms
- Reception Area
- Private Restrooms
- Recessed Lighting
- Hardwood Floors
- Wheelchair Accessible
- Double office opportunity
- Fully Built-Out as Standard Office
- 6 Private Offices
- Space is in Excellent Condition
- Central Air and Heating
- High Ceilings
- After Hours HVAC Available
- Smoke Detector
- $8,200 - $8,400 + Elec. for Lease
- Tenant controlled HVAC
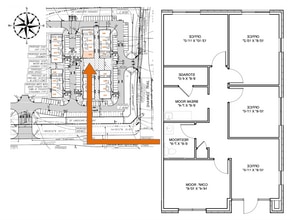
Located in Prosper, The Offices at Prosper Trail consists of 14 professional office buildings. It is located near the northwest intersection of Prosper Trail and Shawnee Trail and minutes from the Dallas North Tollway and US Hwy 380. This single corner suite provides three offices, one conference room, a restroom, a storage closet, and a kitchen. Tenant controlled HVAC to meet the needs of the business. Building signage available. Call today for a tour!
- Lease rate does not include utilities, property expenses or building services
- Fits 3 - 10 People
- 1 Conference Room
- Plug & Play
- Reception Area
- Natural Light
- Hardwood Floors
- Fully Built-Out as Standard Office
- 3 Private Offices
- Finished Ceilings: 10’
- Central Air and Heating
- Corner Space
- After Hours HVAC Available
| Space | Size | Term | Rental Rate | Space Use | Build-Out | Available |
| 1st Floor, Ste 1320 | 2,374 SF | 3-10 Years | $44.08 CAD/SF/YR $3.67 CAD/SF/MO $104,646 CAD/YR $8,720 CAD/MO | Office/Medical | Full Build-Out | Now |
| 1st Floor, Ste 1340 | 1,187 SF | 3-10 Years | $44.08 CAD/SF/YR $3.67 CAD/SF/MO $52,323 CAD/YR $4,360 CAD/MO | Office | Full Build-Out | Now |
1630 W Prosper Trl - 1st Floor - Ste 1320
1630 W Prosper Trl - 1st Floor - Ste 1340
- Space
- Size
- Term
- Rental Rate
- Space Use
- Build-Out
- Available
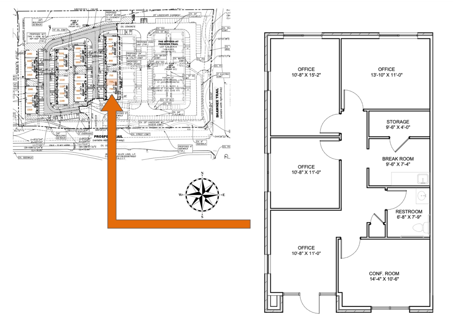
Located in Prosper, The Offices at Prosper Trail consists of 14 professional office buildings. It is located near the northwest intersection of Prosper Trail and Shawnee Trail and minutes from the Dallas North Tollway and US Hwy 380. This is the perfect sublease opportunity with the ability to expand the lease term. This single corner suite provides three offices, one conference room, a restroom, a storage closet, and a kitchen. Tenant controlled HVAC to meet the needs of the business. Building signage available. Call today for a tour!
- Lease rate does not include utilities, property expenses or building services
- 3 Private Offices
- Space is in Excellent Condition
- Reception Area
- Fully Carpeted
- Recessed Lighting
- After Hours HVAC Available
- Smoke Detector
- $3,465.00 + Electric for Sublease
- Fits 3 - 10 People
- 1 Conference Room
- Central Air and Heating
- Private Restrooms
- High Ceilings
- Natural Light
- Hardwood Floors
- Wheelchair Accessible
| Space | Size | Term | Rental Rate | Space Use | Build-Out | Available |
| 1st Floor, Ste 440 | 1,187 SF | Negotiable | $35.13 CAD/SF/YR $2.93 CAD/SF/MO $41,695 CAD/YR $3,475 CAD/MO | Office | Full Build-Out | Now |
1630 W Prosper Trl - 1st Floor - Ste 440
- Space
- Size
- Term
- Rental Rate
- Space Use
- Build-Out
- Available
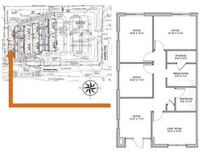
Located in Prosper, The Offices at Prosper Trail will consist of 14 professional office buildings upon completion. It is located near the northwest intersection of Prosper Trail and Shawnee Trail and minutes from the Dallas North Tollway and US Hwy 380. This single suite provides three offices, one conference room, a restroom, a storage closet, and a kitchen. Tenant controlled HVAC to meet the needs of the business. Building signage available. Call today for a tour!
- Lease rate does not include utilities, property expenses or building services
- Fits 3 - 10 People
- 1 Conference Room
- Reception Area
- Private Restrooms
- High Ceilings
- After Hours HVAC Available
- Smoke Detector
- $3,900 - $4,200 + E for Lease
- Fully Built-Out as Standard Office
- 3 Private Offices
- Space is in Excellent Condition
- Central Air and Heating
- Fully Carpeted
- Recessed Lighting
- Hardwood Floors
- Wheelchair Accessible
- Tenant controlled HVAC
| Space | Size | Term | Rental Rate | Space Use | Build-Out | Available |
| 1st Floor, Ste 520 | 1,187 SF | 3-10 Years | $41.33 CAD/SF/YR $3.44 CAD/SF/MO $49,053 CAD/YR $4,088 CAD/MO | Office/Medical | Full Build-Out | Now |
1630 W Prosper Trl - 1st Floor - Ste 520
- Space
- Size
- Term
- Rental Rate
- Space Use
- Build-Out
- Available
- Lease rate does not include utilities, property expenses or building services
- Fits 3 - 10 People
- 1 Conference Room
- Central Air and Heating
- Private Restrooms
- Recessed Lighting
- Hardwood Floors
- Wheelchair Accessible
- $3,800 - $4,000 + Electric for Lease
- Fully Built-Out as Standard Office
- 3 Private Offices
- Space is in Excellent Condition
- Reception Area
- High Ceilings
- After Hours HVAC Available
- Smoke Detector
- Single suite available
- Tenant controlled HVAC
| Space | Size | Term | Rental Rate | Space Use | Build-Out | Available |
| 1st Floor, Ste 720 | 1,187 SF | 3-10 Years | $39.95 CAD/SF/YR $3.33 CAD/SF/MO $47,418 CAD/YR $3,951 CAD/MO | Office | Full Build-Out | Now |
1630 W Prosper Trl - 1st Floor - Ste 720
1630 W Prosper Trl - 1st Floor - Ste 1320
| Size | 2,374 SF |
| Term | 3-10 Years |
| Rental Rate | $44.08 CAD/SF/YR |
| Space Use | Office/Medical |
| Build-Out | Full Build-Out |
| Available | Now |
Located in Prosper, The Offices at Prosper Trail will consist of 14 professional office buildings upon completion. It is located near the northwest intersection of Prosper Trail and Shawnee Trail and minutes from the Dallas North Tollway and US Hwy 380. This double suite provides six offices (with the option to make the second entrance an additional office or open area), two conference rooms, two restrooms, two storage closets, and an open kitchen. Tenant controlled HVAC to meet the needs of the business. Building signage available. Call today for a tour!
- Lease rate does not include utilities, property expenses or building services
- Fully Built-Out as Standard Office
- Fits 6 - 19 People
- 6 Private Offices
- 2 Conference Rooms
- Space is in Excellent Condition
- Reception Area
- Central Air and Heating
- Private Restrooms
- High Ceilings
- Recessed Lighting
- After Hours HVAC Available
- Hardwood Floors
- Smoke Detector
- Wheelchair Accessible
- $8,200 - $8,400 + Elec. for Lease
- Double office opportunity
- Tenant controlled HVAC
1630 W Prosper Trl - 1st Floor - Ste 1340
| Size | 1,187 SF |
| Term | 3-10 Years |
| Rental Rate | $44.08 CAD/SF/YR |
| Space Use | Office |
| Build-Out | Full Build-Out |
| Available | Now |
Located in Prosper, The Offices at Prosper Trail consists of 14 professional office buildings. It is located near the northwest intersection of Prosper Trail and Shawnee Trail and minutes from the Dallas North Tollway and US Hwy 380. This single corner suite provides three offices, one conference room, a restroom, a storage closet, and a kitchen. Tenant controlled HVAC to meet the needs of the business. Building signage available. Call today for a tour!
- Lease rate does not include utilities, property expenses or building services
- Fully Built-Out as Standard Office
- Fits 3 - 10 People
- 3 Private Offices
- 1 Conference Room
- Finished Ceilings: 10’
- Plug & Play
- Central Air and Heating
- Reception Area
- Corner Space
- Natural Light
- After Hours HVAC Available
- Hardwood Floors
1630 W Prosper Trl - 1st Floor - Ste 440
| Size | 1,187 SF |
| Term | Negotiable |
| Rental Rate | $35.13 CAD/SF/YR |
| Space Use | Office |
| Build-Out | Full Build-Out |
| Available | Now |
Located in Prosper, The Offices at Prosper Trail consists of 14 professional office buildings. It is located near the northwest intersection of Prosper Trail and Shawnee Trail and minutes from the Dallas North Tollway and US Hwy 380. This is the perfect sublease opportunity with the ability to expand the lease term. This single corner suite provides three offices, one conference room, a restroom, a storage closet, and a kitchen. Tenant controlled HVAC to meet the needs of the business. Building signage available. Call today for a tour!
- Lease rate does not include utilities, property expenses or building services
- Fits 3 - 10 People
- 3 Private Offices
- 1 Conference Room
- Space is in Excellent Condition
- Central Air and Heating
- Reception Area
- Private Restrooms
- Fully Carpeted
- High Ceilings
- Recessed Lighting
- Natural Light
- After Hours HVAC Available
- Hardwood Floors
- Smoke Detector
- Wheelchair Accessible
- $3,465.00 + Electric for Sublease
1630 W Prosper Trl - 1st Floor - Ste 520
| Size | 1,187 SF |
| Term | 3-10 Years |
| Rental Rate | $41.33 CAD/SF/YR |
| Space Use | Office/Medical |
| Build-Out | Full Build-Out |
| Available | Now |
Located in Prosper, The Offices at Prosper Trail will consist of 14 professional office buildings upon completion. It is located near the northwest intersection of Prosper Trail and Shawnee Trail and minutes from the Dallas North Tollway and US Hwy 380. This single suite provides three offices, one conference room, a restroom, a storage closet, and a kitchen. Tenant controlled HVAC to meet the needs of the business. Building signage available. Call today for a tour!
- Lease rate does not include utilities, property expenses or building services
- Fully Built-Out as Standard Office
- Fits 3 - 10 People
- 3 Private Offices
- 1 Conference Room
- Space is in Excellent Condition
- Reception Area
- Central Air and Heating
- Private Restrooms
- Fully Carpeted
- High Ceilings
- Recessed Lighting
- After Hours HVAC Available
- Hardwood Floors
- Smoke Detector
- Wheelchair Accessible
- $3,900 - $4,200 + E for Lease
- Tenant controlled HVAC
1630 W Prosper Trl - 1st Floor - Ste 720
| Size | 1,187 SF |
| Term | 3-10 Years |
| Rental Rate | $39.95 CAD/SF/YR |
| Space Use | Office |
| Build-Out | Full Build-Out |
| Available | Now |
- Lease rate does not include utilities, property expenses or building services
- Fully Built-Out as Standard Office
- Fits 3 - 10 People
- 3 Private Offices
- 1 Conference Room
- Space is in Excellent Condition
- Central Air and Heating
- Reception Area
- Private Restrooms
- High Ceilings
- Recessed Lighting
- After Hours HVAC Available
- Hardwood Floors
- Smoke Detector
- Wheelchair Accessible
- Single suite available
- $3,800 - $4,000 + Electric for Lease
- Tenant controlled HVAC
Park Overview
The Offices at Prosper Trail is an upscale, professional office environment composed of 14 buildings. The Offices at Prosper Trail is perfectly placed on Prosper Trail on the northeast intersection of Prosper Trail and Shawnee Trail. It is just west of the Dallas North Tollway. This location is ideal for any Professional / Medical Office with its close proximity to the Dallas North Tollway and US Hwy 380 to service the Prosper, Celina, McKinney, and Frisco markets. This office offers a prime location near multiple retail / restaurant amenities and event venues which include The Gates of Prosper and the headquarters of the PGA. Building Signage available. Contact us today for a tour!
- 24 Hour Access
- Controlled Access
- Corner Lot
- Signage
- Tenant Controlled HVAC
- Air Conditioning
Presented by
The Offices at Prosper Trail | Prosper, TX 75078
Hmm, there seems to have been an error sending your message. Please try again.
Thanks! Your message was sent.
















