Log In/Sign Up
Your email has been sent.
16321 Slater Rd - 2.5 Acre Ag-2 Zoned - with Dual Residences! 3,284 SF Specialty Building Offered at $1,227,158 CAD in North Fort Myers, FL 33917



Investment Highlights
- Egress from both Slater Rd. and Shelby Lane
- Great for Small business/living onsite
- Fully fenced with gated access
Executive Summary
2.5-Acre AG-2 Zoned Property with Dual Residences – Ideal for Church, Retreat, or Live/Work Use
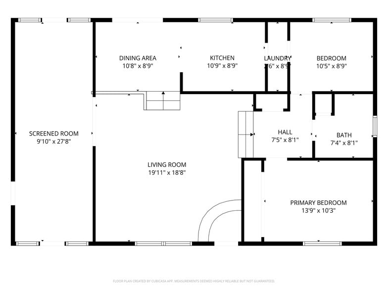
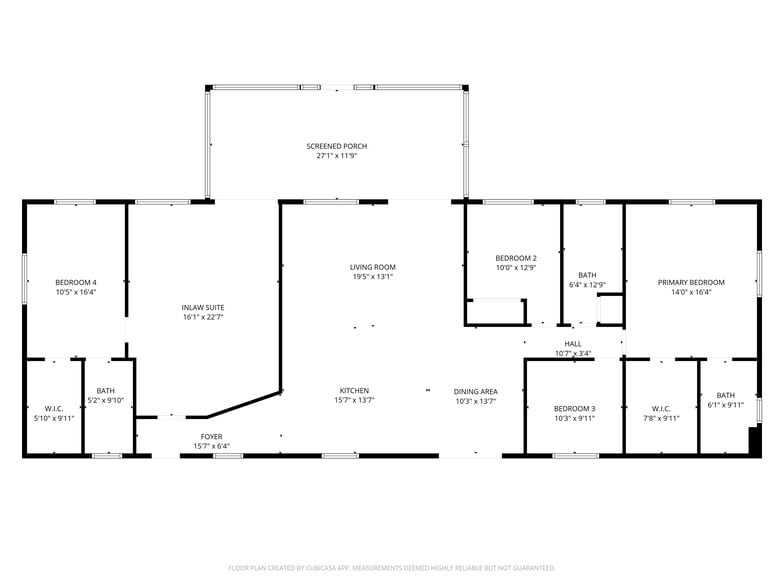
Two separate residential structures, main house has pool and separate apartment
AG-2 zoning
Suitable for:
Small business operations
Religious facility
Retreat center
Group housing / recovery use
2 miles from I75 exit 143
Two separate residential structures, main house has pool and separate apartment
AG-2 zoning
Suitable for:
Small business operations
Religious facility
Retreat center
Group housing / recovery use
2 miles from I75 exit 143
Property Facts
1 1
Somewhat walkable
30/100
Exceptionally drivable
100/100
Limited public transit
20/100
Fairly bikeable
50/100
Property Taxes
| Parcel Number | 30-43-25-00-00001.0310 | Improvements Assessment | $669,179 CAD |
| Land Assessment | $161,407 CAD | Total Assessment | $830,586 CAD |
Property Taxes
Parcel Number
30-43-25-00-00001.0310
Land Assessment
$161,407 CAD
Improvements Assessment
$669,179 CAD
Total Assessment
$830,586 CAD
1 of 6
Videos
Matterport 3D Exterior
Matterport 3D Tour
Photos
Street View
Street
Map
1 of 1
Presented by
16321 Slater Rd - 2.5 Acre Ag-2 Zoned - with Dual Residences!
Already a member? Log In
Hmm, there seems to have been an error sending your message. Please try again.
Thanks! Your message was sent.
