Your email has been sent.
Park Highlights
- Recently Redeveloped Technology Park
- Remodeled Building Interiors and Ready for Tenant Finishes to Suit
Park Facts
| Total Space Available | 93,155 SF | Park Type | Office Park |
| Max. Contiguous | 8,647 SF | Cross Streets | Maple Rd. and Stephenson Hwy. |
| Total Space Available | 93,155 SF |
| Max. Contiguous | 8,647 SF |
| Park Type | Office Park |
| Cross Streets | Maple Rd. and Stephenson Hwy. |
All Available Spaces(9)
Display Rental Rate as
- Space
- Size
- Term
- Rental Rate
- Space Use
- Build-Out
- Available
• Recently Redeveloped Technology Park • Remodeled Building Interiors and Ready for Tenant Finishes To Suit • Easy Access to I-75 and Ample Parking Within the Complex • Newly Renovated Lobby and Landscaping • Suite Options Available at 1650 Research Drive, 1775 Research Drive, 1960 Research Drive and 1965 Research Drive
- Lease rate does not include utilities, property expenses or building services
- Ample parking
- Space is in Excellent Condition
| Space | Size | Term | Rental Rate | Space Use | Build-Out | Available |
| 1st Floor | 30,763 SF | 2-10 Years | $16.46 CAD/SF/YR $1.37 CAD/SF/MO $506,394 CAD/YR $42,199 CAD/MO | Flex | Partial Build-Out | Now |
1775 Research Dr - 1st Floor
- Space
- Size
- Term
- Rental Rate
- Space Use
- Build-Out
- Available
• Recently Redeveloped Technology Park • Remodeled Building Interiors and Ready for Tenant Finishes To Suit • Easy Access to I-75 and Ample Parking Within the Complex • Newly Renovated Lobby and Landscaping • Suite Options Available at 1650 Research Drive, 1775 Research Drive, 1960 Research Drive and 1965 Research Drive
- Lease rate does not include utilities, property expenses or building services
- Mostly Open Floor Plan Layout
- Finished Ceilings: 8’ - 12’
- Ample parking
- Partially Built-Out as Standard Office
- Fits 32 - 100 People
- Space is in Excellent Condition
| Space | Size | Term | Rental Rate | Space Use | Build-Out | Available |
| 1st Floor | 12,454 SF | 2-10 Years | $16.46 CAD/SF/YR $1.37 CAD/SF/MO $205,007 CAD/YR $17,084 CAD/MO | Office | Partial Build-Out | Now |
1965 Research Dr - 1st Floor
- Space
- Size
- Term
- Rental Rate
- Space Use
- Build-Out
- Available
• Recently Redeveloped Technology Park • Remodeled Building Interiors and Ready for Tenant Finishes To Suit • Easy Access to I-75 and Ample Parking Within the Complex • Newly Renovated Lobby and Landscaping • Suite Options Available at 1650 Research Drive, 1775 Research Drive, 1960 Research Drive and 1965 Research Drive
- Listed lease rate plus proportional share of electrical cost
- Mostly Open Floor Plan Layout
- Finished Ceilings: 8’ - 12’
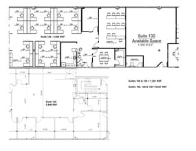
- Can be combined with additional space(s) for up to 8,647 SF of adjacent space
- Partially Built-Out as Standard Office
- Fits 9 - 28 People
- Space is in Excellent Condition
- Ample Parking
Recently Redeveloped Technology Park Remodeled Building Interiors and Ready for Tenant Finishes To Suit Easy Access to I-75 and Ample Parking Within the Complex Newly Renovated Lobby and Landscaping Suite Options Available at 1650 Research Drive, 1775 Research Drive, 1960 Research Drive and 1965 Research Drive Great I-75 Visibility and Signage Opportunity
- Listed lease rate plus proportional share of electrical cost
- Mostly Open Floor Plan Layout
- Finished Ceilings: 8’ - 12’
- Can be combined with additional space(s) for up to 8,647 SF of adjacent space
- Partially Built-Out as Standard Office
- Fits 10 - 31 People
- Space is in Excellent Condition
- Ample parking
• Recently Redeveloped Technology Park • Remodeled Building Interiors and Ready for Tenant Finishes To Suit • Easy Access to I-75 and Ample Parking Within the Complex • Newly Renovated Lobby and Landscaping • Suite Options Available at 1650 Research Drive, 1775 Research Drive, 1960 Research Drive and 1965 Research Drive
- Listed lease rate plus proportional share of electrical cost
- Mostly Open Floor Plan Layout
- Finished Ceilings: 8’ - 12’
- Can be combined with additional space(s) for up to 8,647 SF of adjacent space
- Partially Built-Out as Standard Office
- Fits 4 - 11 People
- Space is in Excellent Condition
- Ample Parking
• Recently Redeveloped Technology Park • Remodeled Building Interiors and Ready for Tenant Finishes To Suit • Easy Access to I-75 and Ample Parking Within the Complex • Newly Renovated Lobby and Landscaping • Suite Options Available at 1650 Research Drive, 1775 Research Drive, 1960 Research Drive and 1965 Research Drive
- Listed lease rate plus proportional share of electrical cost
- Mostly Open Floor Plan Layout
- Finished Ceilings: 8’ - 12’
- Partially Built-Out as Standard Office
- Fits 26 - 83 People
- Ample parking
• Recently Redeveloped Technology Park • Remodeled Building Interiors and Ready for Tenant Finishes To Suit • Easy Access to I-75 and Ample Parking Within the Complex • Newly Renovated Lobby and Landscaping • Suite Options Available at 1650 Research Drive, 1775 Research Drive, 1960 Research Drive and 1965 Research Drive
- Listed lease rate plus proportional share of electrical cost
- Mostly Open Floor Plan Layout
- Finished Ceilings: 8’ - 12’
- Partially Built-Out as Standard Office
- Fits 32 - 101 People
- Ample parking
• Recently Redeveloped Technology Park • Remodeled Building Interiors and Ready for Tenant Finishes To Suit • Easy Access to I-75 and Ample Parking Within the Complex • Newly Renovated Lobby and Landscaping • Suite Options Available at 1650 Research Drive, 1775 Research Drive, 1960 Research Drive and 1965 Research Drive
- Listed lease rate plus proportional share of electrical cost
- Mostly Open Floor Plan Layout
- Finished Ceilings: 8’ - 12’
- Ample parking
- Partially Built-Out as Standard Office
- Fits 9 - 27 People
- Space is in Excellent Condition
| Space | Size | Term | Rental Rate | Space Use | Build-Out | Available |
| 1st Floor, Ste 100 | 3,446 SF | 2-10 Years | $24.11 CAD/SF/YR $2.01 CAD/SF/MO $83,070 CAD/YR $6,923 CAD/MO | Office | Partial Build-Out | Now |
| 1st Floor, Ste 120 | 3,845 SF | 2-10 Years | $24.11 CAD/SF/YR $2.01 CAD/SF/MO $92,689 CAD/YR $7,724 CAD/MO | Office | Partial Build-Out | Now |
| 1st Floor, Ste 130 | 1,356 SF | 2-10 Years | $24.11 CAD/SF/YR $2.01 CAD/SF/MO $32,688 CAD/YR $2,724 CAD/MO | Office | Partial Build-Out | Now |
| 1st Floor, Ste 165 | 10,320 SF | 2-10 Years | $24.11 CAD/SF/YR $2.01 CAD/SF/MO $248,777 CAD/YR $20,731 CAD/MO | Office | Partial Build-Out | Now |
| 2nd Floor | 12,577 SF | 2-10 Years | $24.11 CAD/SF/YR $2.01 CAD/SF/MO $303,184 CAD/YR $25,265 CAD/MO | Office | Partial Build-Out | Now |
| 3rd Floor, Ste 350 | 3,334 SF | 2-10 Years | $24.11 CAD/SF/YR $2.01 CAD/SF/MO $80,370 CAD/YR $6,698 CAD/MO | Office | Partial Build-Out | Now |
1650 Research Dr - 1st Floor - Ste 100
1650 Research Dr - 1st Floor - Ste 120
1650 Research Dr - 1st Floor - Ste 130
1650 Research Dr - 1st Floor - Ste 165
1650 Research Dr - 2nd Floor
1650 Research Dr - 3rd Floor - Ste 350
- Space
- Size
- Term
- Rental Rate
- Space Use
- Build-Out
- Available
• Recently Redeveloped Technology Park • Remodeled Building Interiors and Ready for Tenant Finishes To Suit • Easy Access to I-75 and Ample Parking Within the Complex • Newly Renovated Lobby and Landscaping • Suite Options Available at 1650 Research Drive, 1775 Research Drive, 1960 Research Drive and 1965 Research Drive
- Lease rate does not include utilities, property expenses or building services
- Ample Parking
| Space | Size | Term | Rental Rate | Space Use | Build-Out | Available |
| 1st Floor - 100 | 15,060 SF | 2-10 Years | $16.46 CAD/SF/YR $1.37 CAD/SF/MO $247,905 CAD/YR $20,659 CAD/MO | Flex | Partial Build-Out | Now |
1875 Research Dr - 1st Floor - 100
1775 Research Dr - 1st Floor
| Size | 30,763 SF |
| Term | 2-10 Years |
| Rental Rate | $16.46 CAD/SF/YR |
| Space Use | Flex |
| Build-Out | Partial Build-Out |
| Available | Now |
• Recently Redeveloped Technology Park • Remodeled Building Interiors and Ready for Tenant Finishes To Suit • Easy Access to I-75 and Ample Parking Within the Complex • Newly Renovated Lobby and Landscaping • Suite Options Available at 1650 Research Drive, 1775 Research Drive, 1960 Research Drive and 1965 Research Drive
- Lease rate does not include utilities, property expenses or building services
- Space is in Excellent Condition
- Ample parking
1965 Research Dr - 1st Floor
| Size | 12,454 SF |
| Term | 2-10 Years |
| Rental Rate | $16.46 CAD/SF/YR |
| Space Use | Office |
| Build-Out | Partial Build-Out |
| Available | Now |
• Recently Redeveloped Technology Park • Remodeled Building Interiors and Ready for Tenant Finishes To Suit • Easy Access to I-75 and Ample Parking Within the Complex • Newly Renovated Lobby and Landscaping • Suite Options Available at 1650 Research Drive, 1775 Research Drive, 1960 Research Drive and 1965 Research Drive
- Lease rate does not include utilities, property expenses or building services
- Partially Built-Out as Standard Office
- Mostly Open Floor Plan Layout
- Fits 32 - 100 People
- Finished Ceilings: 8’ - 12’
- Space is in Excellent Condition
- Ample parking
1650 Research Dr - 1st Floor - Ste 100
| Size | 3,446 SF |
| Term | 2-10 Years |
| Rental Rate | $24.11 CAD/SF/YR |
| Space Use | Office |
| Build-Out | Partial Build-Out |
| Available | Now |
• Recently Redeveloped Technology Park • Remodeled Building Interiors and Ready for Tenant Finishes To Suit • Easy Access to I-75 and Ample Parking Within the Complex • Newly Renovated Lobby and Landscaping • Suite Options Available at 1650 Research Drive, 1775 Research Drive, 1960 Research Drive and 1965 Research Drive
- Listed lease rate plus proportional share of electrical cost
- Partially Built-Out as Standard Office
- Mostly Open Floor Plan Layout
- Fits 9 - 28 People
- Finished Ceilings: 8’ - 12’
- Space is in Excellent Condition
- Can be combined with additional space(s) for up to 8,647 SF of adjacent space
- Ample Parking
1650 Research Dr - 1st Floor - Ste 120
| Size | 3,845 SF |
| Term | 2-10 Years |
| Rental Rate | $24.11 CAD/SF/YR |
| Space Use | Office |
| Build-Out | Partial Build-Out |
| Available | Now |
Recently Redeveloped Technology Park Remodeled Building Interiors and Ready for Tenant Finishes To Suit Easy Access to I-75 and Ample Parking Within the Complex Newly Renovated Lobby and Landscaping Suite Options Available at 1650 Research Drive, 1775 Research Drive, 1960 Research Drive and 1965 Research Drive Great I-75 Visibility and Signage Opportunity
- Listed lease rate plus proportional share of electrical cost
- Partially Built-Out as Standard Office
- Mostly Open Floor Plan Layout
- Fits 10 - 31 People
- Finished Ceilings: 8’ - 12’
- Space is in Excellent Condition
- Can be combined with additional space(s) for up to 8,647 SF of adjacent space
- Ample parking
1650 Research Dr - 1st Floor - Ste 130
| Size | 1,356 SF |
| Term | 2-10 Years |
| Rental Rate | $24.11 CAD/SF/YR |
| Space Use | Office |
| Build-Out | Partial Build-Out |
| Available | Now |
• Recently Redeveloped Technology Park • Remodeled Building Interiors and Ready for Tenant Finishes To Suit • Easy Access to I-75 and Ample Parking Within the Complex • Newly Renovated Lobby and Landscaping • Suite Options Available at 1650 Research Drive, 1775 Research Drive, 1960 Research Drive and 1965 Research Drive
- Listed lease rate plus proportional share of electrical cost
- Partially Built-Out as Standard Office
- Mostly Open Floor Plan Layout
- Fits 4 - 11 People
- Finished Ceilings: 8’ - 12’
- Space is in Excellent Condition
- Can be combined with additional space(s) for up to 8,647 SF of adjacent space
- Ample Parking
1650 Research Dr - 1st Floor - Ste 165
| Size | 10,320 SF |
| Term | 2-10 Years |
| Rental Rate | $24.11 CAD/SF/YR |
| Space Use | Office |
| Build-Out | Partial Build-Out |
| Available | Now |
• Recently Redeveloped Technology Park • Remodeled Building Interiors and Ready for Tenant Finishes To Suit • Easy Access to I-75 and Ample Parking Within the Complex • Newly Renovated Lobby and Landscaping • Suite Options Available at 1650 Research Drive, 1775 Research Drive, 1960 Research Drive and 1965 Research Drive
- Listed lease rate plus proportional share of electrical cost
- Partially Built-Out as Standard Office
- Mostly Open Floor Plan Layout
- Fits 26 - 83 People
- Finished Ceilings: 8’ - 12’
- Ample parking
1650 Research Dr - 2nd Floor
| Size | 12,577 SF |
| Term | 2-10 Years |
| Rental Rate | $24.11 CAD/SF/YR |
| Space Use | Office |
| Build-Out | Partial Build-Out |
| Available | Now |
• Recently Redeveloped Technology Park • Remodeled Building Interiors and Ready for Tenant Finishes To Suit • Easy Access to I-75 and Ample Parking Within the Complex • Newly Renovated Lobby and Landscaping • Suite Options Available at 1650 Research Drive, 1775 Research Drive, 1960 Research Drive and 1965 Research Drive
- Listed lease rate plus proportional share of electrical cost
- Partially Built-Out as Standard Office
- Mostly Open Floor Plan Layout
- Fits 32 - 101 People
- Finished Ceilings: 8’ - 12’
- Ample parking
1650 Research Dr - 3rd Floor - Ste 350
| Size | 3,334 SF |
| Term | 2-10 Years |
| Rental Rate | $24.11 CAD/SF/YR |
| Space Use | Office |
| Build-Out | Partial Build-Out |
| Available | Now |
• Recently Redeveloped Technology Park • Remodeled Building Interiors and Ready for Tenant Finishes To Suit • Easy Access to I-75 and Ample Parking Within the Complex • Newly Renovated Lobby and Landscaping • Suite Options Available at 1650 Research Drive, 1775 Research Drive, 1960 Research Drive and 1965 Research Drive
- Listed lease rate plus proportional share of electrical cost
- Partially Built-Out as Standard Office
- Mostly Open Floor Plan Layout
- Fits 9 - 27 People
- Finished Ceilings: 8’ - 12’
- Space is in Excellent Condition
- Ample parking
1875 Research Dr - 1st Floor - 100
| Size | 15,060 SF |
| Term | 2-10 Years |
| Rental Rate | $16.46 CAD/SF/YR |
| Space Use | Flex |
| Build-Out | Partial Build-Out |
| Available | Now |
• Recently Redeveloped Technology Park • Remodeled Building Interiors and Ready for Tenant Finishes To Suit • Easy Access to I-75 and Ample Parking Within the Complex • Newly Renovated Lobby and Landscaping • Suite Options Available at 1650 Research Drive, 1775 Research Drive, 1960 Research Drive and 1965 Research Drive
- Lease rate does not include utilities, property expenses or building services
- Ample Parking
Park Overview
• Recently Redeveloped Technology Park • Remodeled Building Interiors and Ready for Tenant Finishes to Suit • Easy Access to I-75 and Ample Parking Within the Complex • Newly Renovated Lobby and Landscaping • Suite Options Available at 1650 Research Drive, 1775 Research Drive, 1875 Research Drive, 1960 Research Drive and 1965 Research Drive • Great I-75 Visibility and Signage Opportunity
Presented by
Maple Research Office Park | Troy, MI 48083
Hmm, there seems to have been an error sending your message. Please try again.
Thanks! Your message was sent.



















