Your email has been sent.
Interstate Plaza 16600 Sprague Rd 307 - 31,750 SF of Office Space Available in Middleburg Heights, OH 44130



Highlights
- Five (5) story office complex.
- Two elevators.
- High Speed Internet.
- Free surface parking plus paid underground assigned parking.
- On-site restaurant (breakfast & lunch) with seating.
All Available Spaces(21)
Display Rental Rate as
- Space
- Size
- Term
- Rental Rate
- Space Use
- Build-Out
- Available
- Listed rate may not include certain utilities, building services and property expenses
- Office intensive layout
- Fully Built-Out as Standard Office
- Excellent Access to I-71 and Ohio Turnpike.
- Listed rate may not include certain utilities, building services and property expenses
- Open Floor Plan Layout
- Fully Built-Out as Standard Office
- Excellent Access to I-71 and Ohio Turnpike.
- Listed rate may not include certain utilities, building services and property expenses
- Mostly Open Floor Plan Layout
- Fully Built-Out as Standard Office
- Excellent Access to I-71 and Ohio Turnpike.
- Listed rate may not include certain utilities, building services and property expenses
- Mostly Open Floor Plan Layout
- Fully Built-Out as Standard Office
- Excellent Access to I-71 and Ohio Turnpike.
- Listed rate may not include certain utilities, building services and property expenses
- Mostly Open Floor Plan Layout
- Fully Built-Out as Standard Office
- Excellent Access to I-71 and Ohio Turnpike.
- Listed rate may not include certain utilities, building services and property expenses
- Office intensive layout
- Excellent Access to I-71 and Ohio Turnpike.
- Fully Built-Out as Standard Office
- Can be combined with additional space(s) for up to 877 SF of adjacent space
- Listed rate may not include certain utilities, building services and property expenses
- Office intensive layout
- Excellent Access to I-71 and Ohio Turnpike.
- Fully Built-Out as Standard Office
- Can be combined with additional space(s) for up to 1,811 SF of adjacent space
- Listed rate may not include certain utilities, building services and property expenses
- Office intensive layout
- Excellent Access to I-71 and Ohio Turnpike.
- Fully Built-Out as Standard Office
- Can be combined with additional space(s) for up to 877 SF of adjacent space
- Listed rate may not include certain utilities, building services and property expenses
- Mostly Open Floor Plan Layout
- Excellent Access to I-71 and Ohio Turnpike.
- Fully Built-Out as Standard Office
- Can be combined with additional space(s) for up to 1,811 SF of adjacent space
- Listed rate may not include certain utilities, building services and property expenses
- Office intensive layout
- Excellent Access to I-71 and Ohio Turnpike.
- Fully Built-Out as Standard Office
- Can be combined with additional space(s) for up to 830 SF of adjacent space
- Listed rate may not include certain utilities, building services and property expenses
- Office intensive layout
- Excellent Access to I-71 and Ohio Turnpike.
- Fully Built-Out as Standard Office
- Can be combined with additional space(s) for up to 830 SF of adjacent space
- Listed rate may not include certain utilities, building services and property expenses
- Mostly Open Floor Plan Layout
- Fully Built-Out as Standard Office
- Listed rate may not include certain utilities, building services and property expenses
- Mostly Open Floor Plan Layout
- Excellent Access to I-71 and Ohio Turnpike.
- Fully Built-Out as Standard Office
- Can be combined with additional space(s) for up to 5,525 SF of adjacent space
- Listed rate may not include certain utilities, building services and property expenses
- Mostly Open Floor Plan Layout
- Excellent Access to I-71 and Ohio Turnpike.
- Fully Built-Out as Standard Office
- Can be combined with additional space(s) for up to 5,525 SF of adjacent space
- Listed rate may not include certain utilities, building services and property expenses
- Mostly Open Floor Plan Layout
- Fully Built-Out as Standard Office
- Listed rate may not include certain utilities, building services and property expenses
- Mostly Open Floor Plan Layout
- Fully Built-Out as Standard Office
- Excellent Access to I-71 and Ohio Turnpike.
- Listed rate may not include certain utilities, building services and property expenses
- Mostly Open Floor Plan Layout
- Excellent Access to I-71 and Ohio Turnpike.
- Fully Built-Out as Standard Office
- Can be combined with additional space(s) for up to 5,525 SF of adjacent space
- Listed rate may not include certain utilities, building services and property expenses
- Mostly Open Floor Plan Layout
- Excellent Access to I-71 and Ohio Turnpike.
- Fully Built-Out as Standard Office
- Can be combined with additional space(s) for up to 7,167 SF of adjacent space
- Listed rate may not include certain utilities, building services and property expenses
- Office intensive layout
- Excellent Access to I-71 and Ohio Turnpike.
- Fully Built-Out as Standard Office
- Can be combined with additional space(s) for up to 7,167 SF of adjacent space
- Listed rate may not include certain utilities, building services and property expenses
- Office intensive layout
- Fully Built-Out as Standard Office
- Excellent Access to I-71 and Ohio Turnpike.
- Listed rate may not include certain utilities, building services and property expenses
- Mostly Open Floor Plan Layout
- Excellent Access to I-71 and Ohio Turnpike.
- Fully Built-Out as Standard Office
- Can be combined with additional space(s) for up to 7,167 SF of adjacent space
| Space | Size | Term | Rental Rate | Space Use | Build-Out | Available |
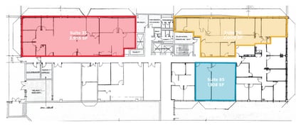
| Ground, Ste 35 | 2,955 SF | 3-5 Years | $21.87 CAD/SF/YR $1.82 CAD/SF/MO $64,622 CAD/YR $5,385 CAD/MO | Office | Full Build-Out | Now |
| Ground, Ste 85 | 1,108 SF | 3-5 Years | $21.87 CAD/SF/YR $1.82 CAD/SF/MO $24,231 CAD/YR $2,019 CAD/MO | Office | Full Build-Out | Now |
| Ground, Ste 90 | 2,000 SF | 3-10 Years | $21.87 CAD/SF/YR $1.82 CAD/SF/MO $43,738 CAD/YR $3,645 CAD/MO | Office | Full Build-Out | Now |
| 1st Floor, Ste 120 | 3,917 SF | 3-10 Years | $21.87 CAD/SF/YR $1.82 CAD/SF/MO $85,660 CAD/YR $7,138 CAD/MO | Office | Full Build-Out | Now |
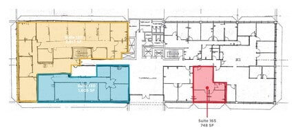
| 1st Floor, Ste 165 | 748 SF | 1-5 Years | $21.87 CAD/SF/YR $1.82 CAD/SF/MO $16,358 CAD/YR $1,363 CAD/MO | Office | Full Build-Out | Now |
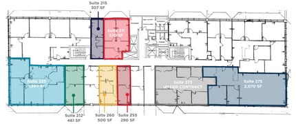
| 2nd Floor, Ste 211 | 570 SF | 1-10 Years | $21.87 CAD/SF/YR $1.82 CAD/SF/MO $12,465 CAD/YR $1,039 CAD/MO | Office | Full Build-Out | Now |
| 2nd Floor, Ste 212 | 461 SF | 1-10 Years | $21.87 CAD/SF/YR $1.82 CAD/SF/MO $10,082 CAD/YR $840.13 CAD/MO | Office | Full Build-Out | Now |
| 2nd Floor, Ste 215 | 307 SF | 1-10 Years | $21.87 CAD/SF/YR $1.82 CAD/SF/MO $6,714 CAD/YR $559.48 CAD/MO | Office | Full Build-Out | Now |
| 2nd Floor, Ste 225 | 1,350 SF | 1-5 Years | $21.87 CAD/SF/YR $1.82 CAD/SF/MO $29,523 CAD/YR $2,460 CAD/MO | Office | Full Build-Out | Now |
| 2nd Floor, Ste 255 | 330 SF | 1-3 Years | $21.87 CAD/SF/YR $1.82 CAD/SF/MO $7,217 CAD/YR $601.39 CAD/MO | Office | Full Build-Out | Now |
| 2nd Floor, Ste 260 | 500 SF | 1-3 Years | $21.87 CAD/SF/YR $1.82 CAD/SF/MO $10,934 CAD/YR $911.20 CAD/MO | Office | Full Build-Out | Now |
| 2nd Floor, Ste 275 | 2,070 SF | 1-10 Years | $21.87 CAD/SF/YR $1.82 CAD/SF/MO $45,268 CAD/YR $3,772 CAD/MO | Office | Full Build-Out | Now |
| 3rd Floor, Ste 345 + 390 | 701-4,599 SF | 1-5 Years | $21.87 CAD/SF/YR $1.82 CAD/SF/MO $100,575 CAD/YR $8,381 CAD/MO | Office | Full Build-Out | 30 Days |
| 3rd Floor, Ste 360 | 431 SF | 1-5 Years | $21.87 CAD/SF/YR $1.82 CAD/SF/MO $9,425 CAD/YR $785.45 CAD/MO | Office | Full Build-Out | Now |
| 3rd Floor, Ste 365 | 1,550 SF | 1-5 Years | $21.87 CAD/SF/YR $1.82 CAD/SF/MO $33,897 CAD/YR $2,825 CAD/MO | Office | Full Build-Out | Now |
| 3rd Floor, Ste 380 | 836 SF | 1-5 Years | $21.87 CAD/SF/YR $1.82 CAD/SF/MO $18,282 CAD/YR $1,524 CAD/MO | Office | Full Build-Out | Now |
| 3rd Floor, Ste 385 | 495 SF | 1-5 Years | $21.87 CAD/SF/YR $1.82 CAD/SF/MO $10,825 CAD/YR $902.09 CAD/MO | Office | Full Build-Out | Now |
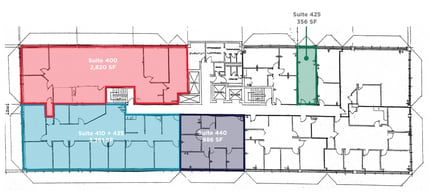
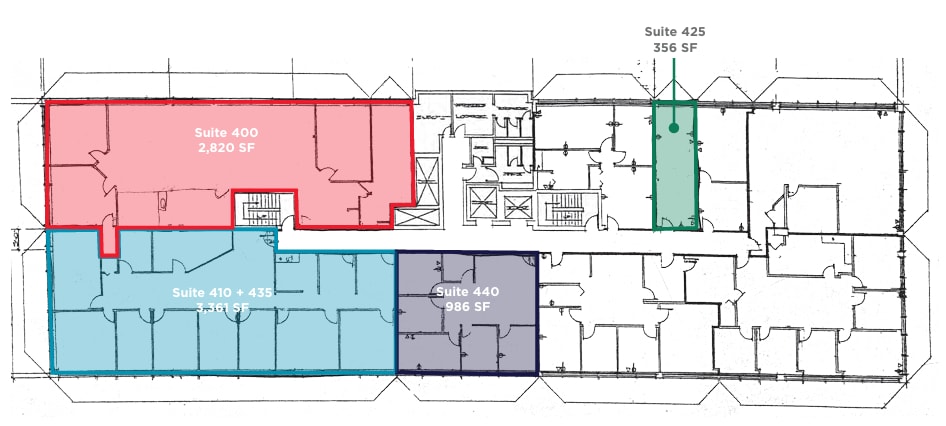
| 4th Floor, Ste 400 | 2,820 SF | 1-10 Years | $21.87 CAD/SF/YR $1.82 CAD/SF/MO $61,670 CAD/YR $5,139 CAD/MO | Office | Full Build-Out | Now |
| 4th Floor, Ste 410 + 435 | 522-3,361 SF | 1-5 Years | $21.87 CAD/SF/YR $1.82 CAD/SF/MO $73,501 CAD/YR $6,125 CAD/MO | Office | Full Build-Out | Now |
| 4th Floor, Ste 425 | 356 SF | 1-3 Years | $21.87 CAD/SF/YR $1.82 CAD/SF/MO $7,785 CAD/YR $648.77 CAD/MO | Office | Full Build-Out | Now |
| 4th Floor, Ste 440 | 986 SF | 1-10 Years | $21.87 CAD/SF/YR $1.82 CAD/SF/MO $21,563 CAD/YR $1,797 CAD/MO | Office | Full Build-Out | Now |
Ground, Ste 35
| Size |
| 2,955 SF |
| Term |
| 3-5 Years |
| Rental Rate |
| $21.87 CAD/SF/YR $1.82 CAD/SF/MO $64,622 CAD/YR $5,385 CAD/MO |
| Space Use |
| Office |
| Build-Out |
| Full Build-Out |
| Available |
| Now |
Ground, Ste 85
| Size |
| 1,108 SF |
| Term |
| 3-5 Years |
| Rental Rate |
| $21.87 CAD/SF/YR $1.82 CAD/SF/MO $24,231 CAD/YR $2,019 CAD/MO |
| Space Use |
| Office |
| Build-Out |
| Full Build-Out |
| Available |
| Now |
Ground, Ste 90
| Size |
| 2,000 SF |
| Term |
| 3-10 Years |
| Rental Rate |
| $21.87 CAD/SF/YR $1.82 CAD/SF/MO $43,738 CAD/YR $3,645 CAD/MO |
| Space Use |
| Office |
| Build-Out |
| Full Build-Out |
| Available |
| Now |
1st Floor, Ste 120
| Size |
| 3,917 SF |
| Term |
| 3-10 Years |
| Rental Rate |
| $21.87 CAD/SF/YR $1.82 CAD/SF/MO $85,660 CAD/YR $7,138 CAD/MO |
| Space Use |
| Office |
| Build-Out |
| Full Build-Out |
| Available |
| Now |
1st Floor, Ste 165
| Size |
| 748 SF |
| Term |
| 1-5 Years |
| Rental Rate |
| $21.87 CAD/SF/YR $1.82 CAD/SF/MO $16,358 CAD/YR $1,363 CAD/MO |
| Space Use |
| Office |
| Build-Out |
| Full Build-Out |
| Available |
| Now |
2nd Floor, Ste 211
| Size |
| 570 SF |
| Term |
| 1-10 Years |
| Rental Rate |
| $21.87 CAD/SF/YR $1.82 CAD/SF/MO $12,465 CAD/YR $1,039 CAD/MO |
| Space Use |
| Office |
| Build-Out |
| Full Build-Out |
| Available |
| Now |
2nd Floor, Ste 212
| Size |
| 461 SF |
| Term |
| 1-10 Years |
| Rental Rate |
| $21.87 CAD/SF/YR $1.82 CAD/SF/MO $10,082 CAD/YR $840.13 CAD/MO |
| Space Use |
| Office |
| Build-Out |
| Full Build-Out |
| Available |
| Now |
2nd Floor, Ste 215
| Size |
| 307 SF |
| Term |
| 1-10 Years |
| Rental Rate |
| $21.87 CAD/SF/YR $1.82 CAD/SF/MO $6,714 CAD/YR $559.48 CAD/MO |
| Space Use |
| Office |
| Build-Out |
| Full Build-Out |
| Available |
| Now |
2nd Floor, Ste 225
| Size |
| 1,350 SF |
| Term |
| 1-5 Years |
| Rental Rate |
| $21.87 CAD/SF/YR $1.82 CAD/SF/MO $29,523 CAD/YR $2,460 CAD/MO |
| Space Use |
| Office |
| Build-Out |
| Full Build-Out |
| Available |
| Now |
2nd Floor, Ste 255
| Size |
| 330 SF |
| Term |
| 1-3 Years |
| Rental Rate |
| $21.87 CAD/SF/YR $1.82 CAD/SF/MO $7,217 CAD/YR $601.39 CAD/MO |
| Space Use |
| Office |
| Build-Out |
| Full Build-Out |
| Available |
| Now |
2nd Floor, Ste 260
| Size |
| 500 SF |
| Term |
| 1-3 Years |
| Rental Rate |
| $21.87 CAD/SF/YR $1.82 CAD/SF/MO $10,934 CAD/YR $911.20 CAD/MO |
| Space Use |
| Office |
| Build-Out |
| Full Build-Out |
| Available |
| Now |
2nd Floor, Ste 275
| Size |
| 2,070 SF |
| Term |
| 1-10 Years |
| Rental Rate |
| $21.87 CAD/SF/YR $1.82 CAD/SF/MO $45,268 CAD/YR $3,772 CAD/MO |
| Space Use |
| Office |
| Build-Out |
| Full Build-Out |
| Available |
| Now |
3rd Floor, Ste 345 + 390
| Size |
| 701-4,599 SF |
| Term |
| 1-5 Years |
| Rental Rate |
| $21.87 CAD/SF/YR $1.82 CAD/SF/MO $100,575 CAD/YR $8,381 CAD/MO |
| Space Use |
| Office |
| Build-Out |
| Full Build-Out |
| Available |
| 30 Days |
3rd Floor, Ste 360
| Size |
| 431 SF |
| Term |
| 1-5 Years |
| Rental Rate |
| $21.87 CAD/SF/YR $1.82 CAD/SF/MO $9,425 CAD/YR $785.45 CAD/MO |
| Space Use |
| Office |
| Build-Out |
| Full Build-Out |
| Available |
| Now |
3rd Floor, Ste 365
| Size |
| 1,550 SF |
| Term |
| 1-5 Years |
| Rental Rate |
| $21.87 CAD/SF/YR $1.82 CAD/SF/MO $33,897 CAD/YR $2,825 CAD/MO |
| Space Use |
| Office |
| Build-Out |
| Full Build-Out |
| Available |
| Now |
3rd Floor, Ste 380
| Size |
| 836 SF |
| Term |
| 1-5 Years |
| Rental Rate |
| $21.87 CAD/SF/YR $1.82 CAD/SF/MO $18,282 CAD/YR $1,524 CAD/MO |
| Space Use |
| Office |
| Build-Out |
| Full Build-Out |
| Available |
| Now |
3rd Floor, Ste 385
| Size |
| 495 SF |
| Term |
| 1-5 Years |
| Rental Rate |
| $21.87 CAD/SF/YR $1.82 CAD/SF/MO $10,825 CAD/YR $902.09 CAD/MO |
| Space Use |
| Office |
| Build-Out |
| Full Build-Out |
| Available |
| Now |
4th Floor, Ste 400
| Size |
| 2,820 SF |
| Term |
| 1-10 Years |
| Rental Rate |
| $21.87 CAD/SF/YR $1.82 CAD/SF/MO $61,670 CAD/YR $5,139 CAD/MO |
| Space Use |
| Office |
| Build-Out |
| Full Build-Out |
| Available |
| Now |
4th Floor, Ste 410 + 435
| Size |
| 522-3,361 SF |
| Term |
| 1-5 Years |
| Rental Rate |
| $21.87 CAD/SF/YR $1.82 CAD/SF/MO $73,501 CAD/YR $6,125 CAD/MO |
| Space Use |
| Office |
| Build-Out |
| Full Build-Out |
| Available |
| Now |
4th Floor, Ste 425
| Size |
| 356 SF |
| Term |
| 1-3 Years |
| Rental Rate |
| $21.87 CAD/SF/YR $1.82 CAD/SF/MO $7,785 CAD/YR $648.77 CAD/MO |
| Space Use |
| Office |
| Build-Out |
| Full Build-Out |
| Available |
| Now |
4th Floor, Ste 440
| Size |
| 986 SF |
| Term |
| 1-10 Years |
| Rental Rate |
| $21.87 CAD/SF/YR $1.82 CAD/SF/MO $21,563 CAD/YR $1,797 CAD/MO |
| Space Use |
| Office |
| Build-Out |
| Full Build-Out |
| Available |
| Now |
Ground, Ste 35
| Size | 2,955 SF |
| Term | 3-5 Years |
| Rental Rate | $21.87 CAD/SF/YR |
| Space Use | Office |
| Build-Out | Full Build-Out |
| Available | Now |
- Listed rate may not include certain utilities, building services and property expenses
- Fully Built-Out as Standard Office
- Office intensive layout
- Excellent Access to I-71 and Ohio Turnpike.
Ground, Ste 85
| Size | 1,108 SF |
| Term | 3-5 Years |
| Rental Rate | $21.87 CAD/SF/YR |
| Space Use | Office |
| Build-Out | Full Build-Out |
| Available | Now |
- Listed rate may not include certain utilities, building services and property expenses
- Fully Built-Out as Standard Office
- Open Floor Plan Layout
- Excellent Access to I-71 and Ohio Turnpike.
Ground, Ste 90
| Size | 2,000 SF |
| Term | 3-10 Years |
| Rental Rate | $21.87 CAD/SF/YR |
| Space Use | Office |
| Build-Out | Full Build-Out |
| Available | Now |
- Listed rate may not include certain utilities, building services and property expenses
- Fully Built-Out as Standard Office
- Mostly Open Floor Plan Layout
- Excellent Access to I-71 and Ohio Turnpike.
1st Floor, Ste 120
| Size | 3,917 SF |
| Term | 3-10 Years |
| Rental Rate | $21.87 CAD/SF/YR |
| Space Use | Office |
| Build-Out | Full Build-Out |
| Available | Now |
- Listed rate may not include certain utilities, building services and property expenses
- Fully Built-Out as Standard Office
- Mostly Open Floor Plan Layout
- Excellent Access to I-71 and Ohio Turnpike.
1st Floor, Ste 165
| Size | 748 SF |
| Term | 1-5 Years |
| Rental Rate | $21.87 CAD/SF/YR |
| Space Use | Office |
| Build-Out | Full Build-Out |
| Available | Now |
- Listed rate may not include certain utilities, building services and property expenses
- Fully Built-Out as Standard Office
- Mostly Open Floor Plan Layout
- Excellent Access to I-71 and Ohio Turnpike.
2nd Floor, Ste 211
| Size | 570 SF |
| Term | 1-10 Years |
| Rental Rate | $21.87 CAD/SF/YR |
| Space Use | Office |
| Build-Out | Full Build-Out |
| Available | Now |
- Listed rate may not include certain utilities, building services and property expenses
- Fully Built-Out as Standard Office
- Office intensive layout
- Can be combined with additional space(s) for up to 877 SF of adjacent space
- Excellent Access to I-71 and Ohio Turnpike.
2nd Floor, Ste 212
| Size | 461 SF |
| Term | 1-10 Years |
| Rental Rate | $21.87 CAD/SF/YR |
| Space Use | Office |
| Build-Out | Full Build-Out |
| Available | Now |
- Listed rate may not include certain utilities, building services and property expenses
- Fully Built-Out as Standard Office
- Office intensive layout
- Can be combined with additional space(s) for up to 1,811 SF of adjacent space
- Excellent Access to I-71 and Ohio Turnpike.
2nd Floor, Ste 215
| Size | 307 SF |
| Term | 1-10 Years |
| Rental Rate | $21.87 CAD/SF/YR |
| Space Use | Office |
| Build-Out | Full Build-Out |
| Available | Now |
- Listed rate may not include certain utilities, building services and property expenses
- Fully Built-Out as Standard Office
- Office intensive layout
- Can be combined with additional space(s) for up to 877 SF of adjacent space
- Excellent Access to I-71 and Ohio Turnpike.
2nd Floor, Ste 225
| Size | 1,350 SF |
| Term | 1-5 Years |
| Rental Rate | $21.87 CAD/SF/YR |
| Space Use | Office |
| Build-Out | Full Build-Out |
| Available | Now |
- Listed rate may not include certain utilities, building services and property expenses
- Fully Built-Out as Standard Office
- Mostly Open Floor Plan Layout
- Can be combined with additional space(s) for up to 1,811 SF of adjacent space
- Excellent Access to I-71 and Ohio Turnpike.
2nd Floor, Ste 255
| Size | 330 SF |
| Term | 1-3 Years |
| Rental Rate | $21.87 CAD/SF/YR |
| Space Use | Office |
| Build-Out | Full Build-Out |
| Available | Now |
- Listed rate may not include certain utilities, building services and property expenses
- Fully Built-Out as Standard Office
- Office intensive layout
- Can be combined with additional space(s) for up to 830 SF of adjacent space
- Excellent Access to I-71 and Ohio Turnpike.
2nd Floor, Ste 260
| Size | 500 SF |
| Term | 1-3 Years |
| Rental Rate | $21.87 CAD/SF/YR |
| Space Use | Office |
| Build-Out | Full Build-Out |
| Available | Now |
- Listed rate may not include certain utilities, building services and property expenses
- Fully Built-Out as Standard Office
- Office intensive layout
- Can be combined with additional space(s) for up to 830 SF of adjacent space
- Excellent Access to I-71 and Ohio Turnpike.
2nd Floor, Ste 275
| Size | 2,070 SF |
| Term | 1-10 Years |
| Rental Rate | $21.87 CAD/SF/YR |
| Space Use | Office |
| Build-Out | Full Build-Out |
| Available | Now |
- Listed rate may not include certain utilities, building services and property expenses
- Fully Built-Out as Standard Office
- Mostly Open Floor Plan Layout
3rd Floor, Ste 345 + 390
| Size | 701-4,599 SF |
| Term | 1-5 Years |
| Rental Rate | $21.87 CAD/SF/YR |
| Space Use | Office |
| Build-Out | Full Build-Out |
| Available | 30 Days |
- Listed rate may not include certain utilities, building services and property expenses
- Fully Built-Out as Standard Office
- Mostly Open Floor Plan Layout
- Can be combined with additional space(s) for up to 5,525 SF of adjacent space
- Excellent Access to I-71 and Ohio Turnpike.
3rd Floor, Ste 360
| Size | 431 SF |
| Term | 1-5 Years |
| Rental Rate | $21.87 CAD/SF/YR |
| Space Use | Office |
| Build-Out | Full Build-Out |
| Available | Now |
- Listed rate may not include certain utilities, building services and property expenses
- Fully Built-Out as Standard Office
- Mostly Open Floor Plan Layout
- Can be combined with additional space(s) for up to 5,525 SF of adjacent space
- Excellent Access to I-71 and Ohio Turnpike.
3rd Floor, Ste 365
| Size | 1,550 SF |
| Term | 1-5 Years |
| Rental Rate | $21.87 CAD/SF/YR |
| Space Use | Office |
| Build-Out | Full Build-Out |
| Available | Now |
- Listed rate may not include certain utilities, building services and property expenses
- Fully Built-Out as Standard Office
- Mostly Open Floor Plan Layout
3rd Floor, Ste 380
| Size | 836 SF |
| Term | 1-5 Years |
| Rental Rate | $21.87 CAD/SF/YR |
| Space Use | Office |
| Build-Out | Full Build-Out |
| Available | Now |
- Listed rate may not include certain utilities, building services and property expenses
- Fully Built-Out as Standard Office
- Mostly Open Floor Plan Layout
- Excellent Access to I-71 and Ohio Turnpike.
3rd Floor, Ste 385
| Size | 495 SF |
| Term | 1-5 Years |
| Rental Rate | $21.87 CAD/SF/YR |
| Space Use | Office |
| Build-Out | Full Build-Out |
| Available | Now |
- Listed rate may not include certain utilities, building services and property expenses
- Fully Built-Out as Standard Office
- Mostly Open Floor Plan Layout
- Can be combined with additional space(s) for up to 5,525 SF of adjacent space
- Excellent Access to I-71 and Ohio Turnpike.
4th Floor, Ste 400
| Size | 2,820 SF |
| Term | 1-10 Years |
| Rental Rate | $21.87 CAD/SF/YR |
| Space Use | Office |
| Build-Out | Full Build-Out |
| Available | Now |
- Listed rate may not include certain utilities, building services and property expenses
- Fully Built-Out as Standard Office
- Mostly Open Floor Plan Layout
- Can be combined with additional space(s) for up to 7,167 SF of adjacent space
- Excellent Access to I-71 and Ohio Turnpike.
4th Floor, Ste 410 + 435
| Size | 522-3,361 SF |
| Term | 1-5 Years |
| Rental Rate | $21.87 CAD/SF/YR |
| Space Use | Office |
| Build-Out | Full Build-Out |
| Available | Now |
- Listed rate may not include certain utilities, building services and property expenses
- Fully Built-Out as Standard Office
- Office intensive layout
- Can be combined with additional space(s) for up to 7,167 SF of adjacent space
- Excellent Access to I-71 and Ohio Turnpike.
4th Floor, Ste 425
| Size | 356 SF |
| Term | 1-3 Years |
| Rental Rate | $21.87 CAD/SF/YR |
| Space Use | Office |
| Build-Out | Full Build-Out |
| Available | Now |
- Listed rate may not include certain utilities, building services and property expenses
- Fully Built-Out as Standard Office
- Office intensive layout
- Excellent Access to I-71 and Ohio Turnpike.
4th Floor, Ste 440
| Size | 986 SF |
| Term | 1-10 Years |
| Rental Rate | $21.87 CAD/SF/YR |
| Space Use | Office |
| Build-Out | Full Build-Out |
| Available | Now |
- Listed rate may not include certain utilities, building services and property expenses
- Fully Built-Out as Standard Office
- Mostly Open Floor Plan Layout
- Can be combined with additional space(s) for up to 7,167 SF of adjacent space
- Excellent Access to I-71 and Ohio Turnpike.
Property Overview
Built in 1974 this 60,000 square foot class B office building is well situated at 16600 Sprague Road in Middleburg Heights. Excellent maintained office building available for lease. Located in Middleburg Heights with excellent access to I-71 & the Ohio Turnpike
- Conferencing Facility
- Food Service
- Property Manager on Site
Property Facts
Presented by
Interstate Plaza | 16600 Sprague Rd
Hmm, there seems to have been an error sending your message. Please try again.
Thanks! Your message was sent.










