Log In/Sign Up
Your email has been sent.
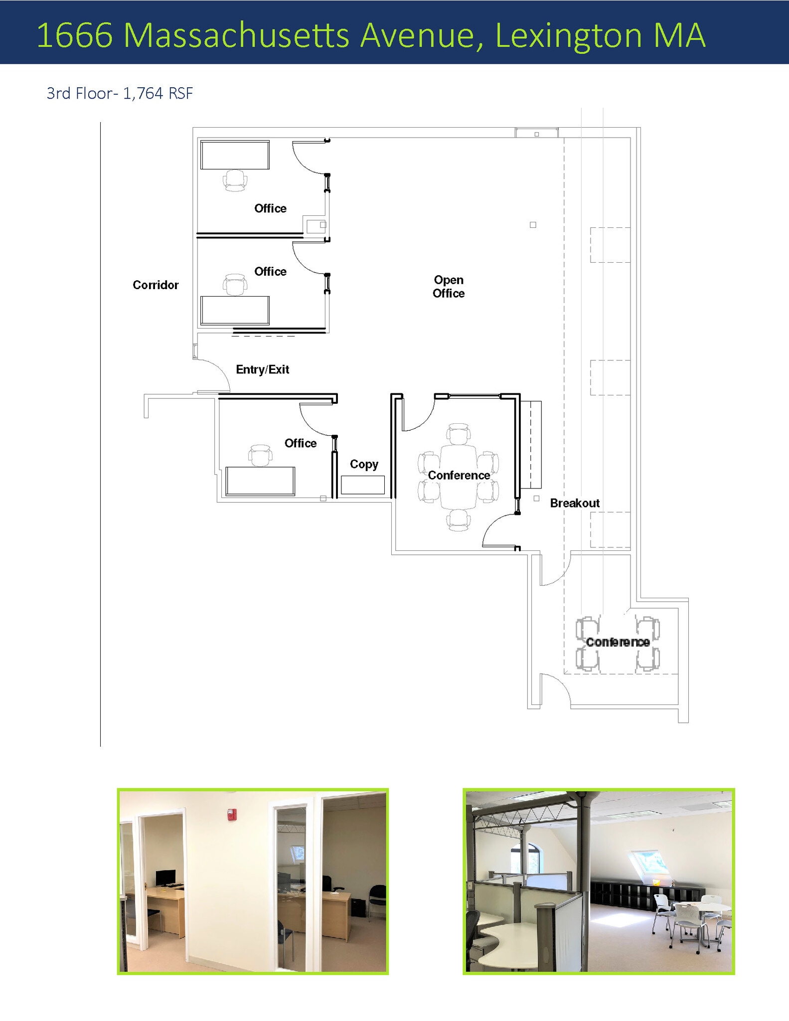
1666 Massachusetts Ave
Lexington, MA 02420
Lexington Square Trust · Office Property For Lease
·
1,764 SF


Highlights
- Public transportation is nearby.
- This area has high daytime traffic.
Property Overview
Professional, 3-story office and retail building located in Lexington Center. Numerous walkable amenities.
- Atrium
- Property Manager on Site
Property Facts
Building Type
Office
Year Built
1983
Building Height
3 Stories
Building Size
38,425 SF
Building Class
B
Typical Floor Size
12,808 SF
Parking
2 Surface Parking Spaces
Covered Parking
1 of 9
Videos
Matterport 3D Exterior
Matterport 3D Tour
Photos
Street View
Street
Map
