Your email has been sent.
Highlights
- 2nd floor office spaces available for rent.
- Corner building
Features
All Available Spaces(7)
Display Rental Rate as
- Space
- Size
- Term
- Rental Rate
- Space Use
- Condition
- Available
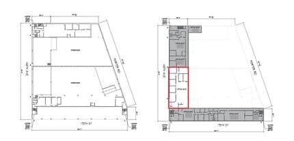
Warehouse Total: 24,381 SF Divisible: 12,997 SF & 11,384 SF Office: 2,897 SF Total: 27,662 SF Directly across from JFK Airport 53’ trailer accessible
- Space is in Excellent Condition
- Can be combined with additional space(s) for up to 27,278 SF of adjacent space
Warehouse Total: 24,381 SF Divisible: 12,997 SF & 11,384 SF Office: 2,897 SF Total: 27,662 SF Directly across from JFK Airport 53’ trailer accessible
- Space is in Excellent Condition
- Can be combined with additional space(s) for up to 27,278 SF of adjacent space
- Fully Built-Out as Standard Office
- Space is in Excellent Condition
- Open Floor Plan Layout
Close to JFK airport
- Rate includes utilities, building services and property expenses
- Mostly Open Floor Plan Layout
- JFK Office Space
- Partially Built-Out as Standard Office
- Natural Light
Numerous operable windows
- Rate includes utilities, building services and property expenses
- Mostly Open Floor Plan Layout
- Plenty Of Parking
- Fully Built-Out as Standard Office
- Natural Light
Numerous operable windows
- Rate includes utilities, building services and property expenses
- Mostly Open Floor Plan Layout
- Plenty Of Parking
- Fully Built-Out as Standard Office
- Natural Light
Warehouse Total: 24,381 SF Divisible: 12,997 SF & 11,384 SF Office: 2,897 SF Total: 27,662 SF Directly across from JFK Airport 53’ trailer accessible
- Fully Built-Out as Standard Office
- Can be combined with additional space(s) for up to 27,278 SF of adjacent space
- Mostly Open Floor Plan Layout
- Central Air Conditioning
| Space | Size | Term | Rental Rate | Space Use | Condition | Available |
| 1st Floor - 167-55 148th | 12,997 SF | Negotiable | Upon Request Upon Request Upon Request Upon Request | Industrial | Full Build-Out | Now |
| 1st Floor - 167-55 148th | 11,384 SF | Negotiable | Upon Request Upon Request Upon Request Upon Request | Industrial | Full Build-Out | Now |
| 2nd Floor | 275 SF | Negotiable | Upon Request Upon Request Upon Request Upon Request | Office | Full Build-Out | Now |
| 2nd Floor, Ste 147-48 175th | 760 SF | 2-10 Years | $38.28 CAD/SF/YR $3.19 CAD/SF/MO $29,091 CAD/YR $2,424 CAD/MO | Office | Partial Build-Out | Now |
| 2nd Floor, Ste 147-48 175th | 1,030 SF | 2-10 Years | $36.91 CAD/SF/YR $3.08 CAD/SF/MO $38,018 CAD/YR $3,168 CAD/MO | Office | Full Build-Out | Now |
| 2nd Floor, Ste 147-48 175th | 1,700 SF | 2-10 Years | Upon Request Upon Request Upon Request Upon Request | Office | Full Build-Out | Now |
| 2nd Floor, Ste 167-55 148th | 2,897 SF | Negotiable | Upon Request Upon Request Upon Request Upon Request | Office | Full Build-Out | Now |
1st Floor - 167-55 148th
| Size |
| 12,997 SF |
| Term |
| Negotiable |
| Rental Rate |
| Upon Request Upon Request Upon Request Upon Request |
| Space Use |
| Industrial |
| Condition |
| Full Build-Out |
| Available |
| Now |
1st Floor - 167-55 148th
| Size |
| 11,384 SF |
| Term |
| Negotiable |
| Rental Rate |
| Upon Request Upon Request Upon Request Upon Request |
| Space Use |
| Industrial |
| Condition |
| Full Build-Out |
| Available |
| Now |
2nd Floor
| Size |
| 275 SF |
| Term |
| Negotiable |
| Rental Rate |
| Upon Request Upon Request Upon Request Upon Request |
| Space Use |
| Office |
| Condition |
| Full Build-Out |
| Available |
| Now |
2nd Floor, Ste 147-48 175th
| Size |
| 760 SF |
| Term |
| 2-10 Years |
| Rental Rate |
| $38.28 CAD/SF/YR $3.19 CAD/SF/MO $29,091 CAD/YR $2,424 CAD/MO |
| Space Use |
| Office |
| Condition |
| Partial Build-Out |
| Available |
| Now |
2nd Floor, Ste 147-48 175th
| Size |
| 1,030 SF |
| Term |
| 2-10 Years |
| Rental Rate |
| $36.91 CAD/SF/YR $3.08 CAD/SF/MO $38,018 CAD/YR $3,168 CAD/MO |
| Space Use |
| Office |
| Condition |
| Full Build-Out |
| Available |
| Now |
2nd Floor, Ste 147-48 175th
| Size |
| 1,700 SF |
| Term |
| 2-10 Years |
| Rental Rate |
| Upon Request Upon Request Upon Request Upon Request |
| Space Use |
| Office |
| Condition |
| Full Build-Out |
| Available |
| Now |
2nd Floor, Ste 167-55 148th
| Size |
| 2,897 SF |
| Term |
| Negotiable |
| Rental Rate |
| Upon Request Upon Request Upon Request Upon Request |
| Space Use |
| Office |
| Condition |
| Full Build-Out |
| Available |
| Now |
1st Floor - 167-55 148th
| Size | 12,997 SF |
| Term | Negotiable |
| Rental Rate | Upon Request |
| Space Use | Industrial |
| Condition | Full Build-Out |
| Available | Now |
Warehouse Total: 24,381 SF Divisible: 12,997 SF & 11,384 SF Office: 2,897 SF Total: 27,662 SF Directly across from JFK Airport 53’ trailer accessible
- Space is in Excellent Condition
- Can be combined with additional space(s) for up to 27,278 SF of adjacent space
1st Floor - 167-55 148th
| Size | 11,384 SF |
| Term | Negotiable |
| Rental Rate | Upon Request |
| Space Use | Industrial |
| Condition | Full Build-Out |
| Available | Now |
Warehouse Total: 24,381 SF Divisible: 12,997 SF & 11,384 SF Office: 2,897 SF Total: 27,662 SF Directly across from JFK Airport 53’ trailer accessible
- Space is in Excellent Condition
- Can be combined with additional space(s) for up to 27,278 SF of adjacent space
2nd Floor
| Size | 275 SF |
| Term | Negotiable |
| Rental Rate | Upon Request |
| Space Use | Office |
| Condition | Full Build-Out |
| Available | Now |
- Fully Built-Out as Standard Office
- Open Floor Plan Layout
- Space is in Excellent Condition
2nd Floor, Ste 147-48 175th
| Size | 760 SF |
| Term | 2-10 Years |
| Rental Rate | $38.28 CAD/SF/YR |
| Space Use | Office |
| Condition | Partial Build-Out |
| Available | Now |
Close to JFK airport
- Rate includes utilities, building services and property expenses
- Partially Built-Out as Standard Office
- Mostly Open Floor Plan Layout
- Natural Light
- JFK Office Space
2nd Floor, Ste 147-48 175th
| Size | 1,030 SF |
| Term | 2-10 Years |
| Rental Rate | $36.91 CAD/SF/YR |
| Space Use | Office |
| Condition | Full Build-Out |
| Available | Now |
Numerous operable windows
- Rate includes utilities, building services and property expenses
- Fully Built-Out as Standard Office
- Mostly Open Floor Plan Layout
- Natural Light
- Plenty Of Parking
2nd Floor, Ste 147-48 175th
| Size | 1,700 SF |
| Term | 2-10 Years |
| Rental Rate | Upon Request |
| Space Use | Office |
| Condition | Full Build-Out |
| Available | Now |
Numerous operable windows
- Rate includes utilities, building services and property expenses
- Fully Built-Out as Standard Office
- Mostly Open Floor Plan Layout
- Natural Light
- Plenty Of Parking
2nd Floor, Ste 167-55 148th
| Size | 2,897 SF |
| Term | Negotiable |
| Rental Rate | Upon Request |
| Space Use | Office |
| Condition | Full Build-Out |
| Available | Now |
Warehouse Total: 24,381 SF Divisible: 12,997 SF & 11,384 SF Office: 2,897 SF Total: 27,662 SF Directly across from JFK Airport 53’ trailer accessible
- Fully Built-Out as Standard Office
- Mostly Open Floor Plan Layout
- Can be combined with additional space(s) for up to 27,278 SF of adjacent space
- Central Air Conditioning
Property Overview
JFK Office Space
Warehouse Facility Facts
Select Tenants
- Floor
- Tenant Name
- Industry
- 1st
- Air India
- Retailer
- 1st
- Happy International Corp
- Transportation and Warehousing
Presented by
147-48 175th St | 167-55 148th Ave
Hmm, there seems to have been an error sending your message. Please try again.
Thanks! Your message was sent.







