Log In/Sign Up
Your email has been sent.
1674 Irving St NW 6 Unit Apartment Building $2,367,390 CAD ($394,565 CAD/Unit) 4.74% Cap Rate Washington, DC 20010



Executive Summary
Secure a high-demand, fully occupied six-unit multi-family building in one of Washington, DC’s most desirable and resilient rental neighborhoods. Fully licensed and professionally operated, the owner has all required rental licenses and a Certificate of Occupancy for a six-unit building. With many years of consistent cash flow, this is a rare opportunity to acquire a proven, turnkey asset with long-term upside.
Offered at a 4.74% cap rate with professional management in place, or an estimated 5.45% cap rate for a self-managed owner. This is an ideal opportunity for buyers seeking stable income today with long-term appreciation potential in a high-demand location. The building is turnkey and well maintained, making it a strong fit for investors looking for a reliable, low-friction acquisition.
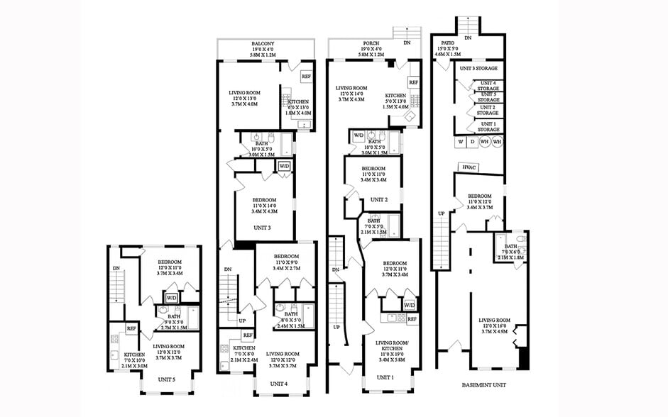
Each one-bedroom unit is thoughtfully updated, and many feature gleaming wood floors, renovated kitchens and baths, soaring ceilings, and abundant natural light. Front-facing units offer charming bay windows, while rear units include private decks, adding lifestyle appeal that supports long-term occupancy and rental performance.
Additional value comes from a one-car detached garage and a fully fenced backyard, features that enhance marketability and provide future upside. With close proximity to Metro access, popular shops, top-rated restaurants, and the scenic trails of Rock Creek Park, the location continues to attract quality tenants year after year.
A rare historic asset, this building reflects the legacy of Harry Wardman and Albert H. Beers, a pedigree that enhances both the property’s long-term value and enduring market appeal. Wardman helped shape early-20th-century Washington by transforming open land into some of the city’s most desirable residential neighborhoods, while Beers, Wardman’s chief architect, produced prolific designs that defined the classic DC rowhouse and apartment-house look. Together, they didn’t just create housing, they set a lasting standard for beauty, livability, and neighborhood character, making a surviving building from their partnership a unique opportunity to own a piece of Washington’s most iconic era of growth.
Private showings by appointment only, no open houses. Full financials, licenses, and additional details available upon request.
Offered at a 4.74% cap rate with professional management in place, or an estimated 5.45% cap rate for a self-managed owner. This is an ideal opportunity for buyers seeking stable income today with long-term appreciation potential in a high-demand location. The building is turnkey and well maintained, making it a strong fit for investors looking for a reliable, low-friction acquisition.
Each one-bedroom unit is thoughtfully updated, and many feature gleaming wood floors, renovated kitchens and baths, soaring ceilings, and abundant natural light. Front-facing units offer charming bay windows, while rear units include private decks, adding lifestyle appeal that supports long-term occupancy and rental performance.
Additional value comes from a one-car detached garage and a fully fenced backyard, features that enhance marketability and provide future upside. With close proximity to Metro access, popular shops, top-rated restaurants, and the scenic trails of Rock Creek Park, the location continues to attract quality tenants year after year.
A rare historic asset, this building reflects the legacy of Harry Wardman and Albert H. Beers, a pedigree that enhances both the property’s long-term value and enduring market appeal. Wardman helped shape early-20th-century Washington by transforming open land into some of the city’s most desirable residential neighborhoods, while Beers, Wardman’s chief architect, produced prolific designs that defined the classic DC rowhouse and apartment-house look. Together, they didn’t just create housing, they set a lasting standard for beauty, livability, and neighborhood character, making a surviving building from their partnership a unique opportunity to own a piece of Washington’s most iconic era of growth.
Private showings by appointment only, no open houses. Full financials, licenses, and additional details available upon request.
Property Facts
| Price | $2,367,390 CAD | Apartment Style | Low-Rise |
| Price Per Unit | $394,565 CAD | Building Class | C |
| Sale Type | Investment | Lot Size | 0.07 AC |
| Cap Rate | 4.74% | Building Size | 4,356 SF |
| No. Units | 6 | No. Stories | 4 |
| Property Type | Multifamily | Year Built | 1905 |
| Property Subtype | Apartment | Parking Ratio | 0.23/1,000 SF |
| Zoning | RF-1 | ||
| Price | $2,367,390 CAD |
| Price Per Unit | $394,565 CAD |
| Sale Type | Investment |
| Cap Rate | 4.74% |
| No. Units | 6 |
| Property Type | Multifamily |
| Property Subtype | Apartment |
| Apartment Style | Low-Rise |
| Building Class | C |
| Lot Size | 0.07 AC |
| Building Size | 4,356 SF |
| No. Stories | 4 |
| Year Built | 1905 |
| Parking Ratio | 0.23/1,000 SF |
| Zoning | RF-1 |
Amenities
- Smoke Detector
Unit Amenities
- Balcony
- Dishwasher
- Disposal
- Microwave
- Washer/Dryer
- Heating
- Bay Window
- Tile Floors
- Kitchen
- Granite Countertops
- Hardwood Floors
- High Speed Internet Access
- Refrigerator
- Oven
- Stainless Steel Appliances
- Range
- Tub/Shower
- Views
- Deck
- Handrails
- Lawn
- Patio
- Window Coverings
- Large Bedrooms
- Quartz Countertops
Site Amenities
- Fenced Lot
- Gas Range
- Vintage Building
Unit Mix Information
| Description | No. Units | Avg. Rent/Mo | SF |
|---|---|---|---|
| 1+1 | 6 | - | 750 |
1 1
Exceptionally walkable
100/100
Somewhat drivable
30/100
Strong public transit
80/100
Very bikeable
80/100
Property Taxes
| Parcel Number | 2591-0194 | Improvements Assessment | $1,765,196 CAD |
| Land Assessment | $253,133 CAD | Total Assessment | $2,018,329 CAD |
Property Taxes
Parcel Number
2591-0194
Land Assessment
$253,133 CAD
Improvements Assessment
$1,765,196 CAD
Total Assessment
$2,018,329 CAD
1 of 12
Videos
Matterport 3D Exterior
Matterport 3D Tour
Photos
Street View
Street
Map
1 of 1
Presented by
1674 Irving St NW
Already a member? Log In
Hmm, there seems to have been an error sending your message. Please try again.
Thanks! Your message was sent.
