Your email has been sent.
168 E Highland Ave 3,016 - 44,912 SF of Space Available in Elgin, IL 60120



All Available Spaces(4)
Display Rental Rate as
- Space
- Size
- Term
- Rental Rate
- Space Use
- Build-Out
- Available
11,493 square foot creative/industrial space available for lease. Call for more info: 630-362-7549 or email at Lmarrone@praecorp564.com
- Lease rate does not include utilities, property expenses or building services
- Mostly Open Floor Plan Layout
- Partially Built-Out as Standard Office
- Fits 29 - 92 People
3,500 up to 11,723 square foot office space and flex/creative space available for lease. We also have event space available with two apartments that are currently used for the event space for overnight guest stays! Call for more info: 630-362-7549 or email at Lmarrone@praecorp564.com
- Lease rate does not include utilities, property expenses or building services
- Mostly Open Floor Plan Layout
- Space is in Excellent Condition
- Fully Built-Out as Standard Retail Space
- Fits 9 - 94 People
We have a fully turn key yoga studio which can also be used for fitness, chiropractic, other wellness related uses available. Call for more info: 630-362-7549 or email at Lmarrone@praecorp564.com
- Fully Built-Out as Standard Retail Space
- Central Air and Heating
- High Ceilings
- Basement
- Hardwood Floors
- Space is in Excellent Condition
- Partitioned Offices
- Plug & Play
- Common Parts WC Facilities
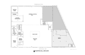
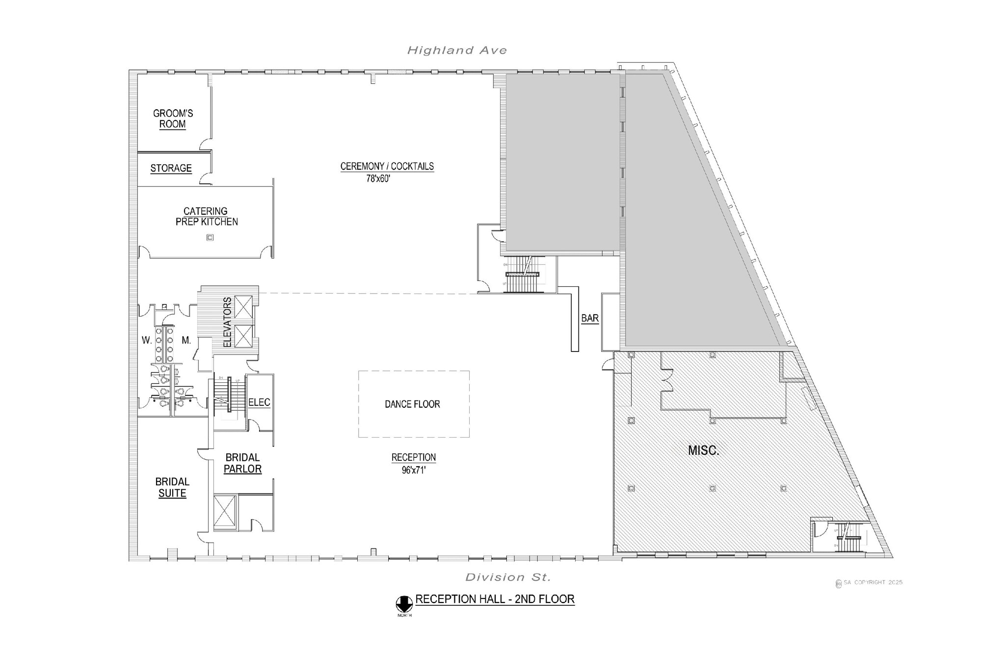
Full second floor available for lease. Currently built out as a wedding venue complete with ceremony area, dining/dance area, bar, bridal suite, grooms room, catering prep kitchen (no hood) and storage. For more info call or email 630-362-7549 Lmarrone@praecorp564.com
- Central Air Conditioning
- Drop Ceilings
- Private Restrooms
- Plug & Play
| Space | Size | Term | Rental Rate | Space Use | Build-Out | Available |
| Lower Level | 11,493 SF | Negotiable | Upon Request Upon Request Upon Request Upon Request | Office | Partial Build-Out | Now |
| 1st Floor | 3,500-11,723 SF | Negotiable | Upon Request Upon Request Upon Request Upon Request | Office/Retail | Full Build-Out | Now |
| 1st Floor, Ste 102 | 3,016 SF | Negotiable | Upon Request Upon Request Upon Request Upon Request | Retail | Full Build-Out | Now |
| 2nd Floor | 18,680 SF | Negotiable | Upon Request Upon Request Upon Request Upon Request | Flex | Full Build-Out | Now |
Lower Level
| Size |
| 11,493 SF |
| Term |
| Negotiable |
| Rental Rate |
| Upon Request Upon Request Upon Request Upon Request |
| Space Use |
| Office |
| Build-Out |
| Partial Build-Out |
| Available |
| Now |
1st Floor
| Size |
| 3,500-11,723 SF |
| Term |
| Negotiable |
| Rental Rate |
| Upon Request Upon Request Upon Request Upon Request |
| Space Use |
| Office/Retail |
| Build-Out |
| Full Build-Out |
| Available |
| Now |
1st Floor, Ste 102
| Size |
| 3,016 SF |
| Term |
| Negotiable |
| Rental Rate |
| Upon Request Upon Request Upon Request Upon Request |
| Space Use |
| Retail |
| Build-Out |
| Full Build-Out |
| Available |
| Now |
2nd Floor
| Size |
| 18,680 SF |
| Term |
| Negotiable |
| Rental Rate |
| Upon Request Upon Request Upon Request Upon Request |
| Space Use |
| Flex |
| Build-Out |
| Full Build-Out |
| Available |
| Now |
Lower Level
| Size | 11,493 SF |
| Term | Negotiable |
| Rental Rate | Upon Request |
| Space Use | Office |
| Build-Out | Partial Build-Out |
| Available | Now |
11,493 square foot creative/industrial space available for lease. Call for more info: 630-362-7549 or email at Lmarrone@praecorp564.com
- Lease rate does not include utilities, property expenses or building services
- Partially Built-Out as Standard Office
- Mostly Open Floor Plan Layout
- Fits 29 - 92 People
1st Floor
| Size | 3,500-11,723 SF |
| Term | Negotiable |
| Rental Rate | Upon Request |
| Space Use | Office/Retail |
| Build-Out | Full Build-Out |
| Available | Now |
3,500 up to 11,723 square foot office space and flex/creative space available for lease. We also have event space available with two apartments that are currently used for the event space for overnight guest stays! Call for more info: 630-362-7549 or email at Lmarrone@praecorp564.com
- Lease rate does not include utilities, property expenses or building services
- Fully Built-Out as Standard Retail Space
- Mostly Open Floor Plan Layout
- Fits 9 - 94 People
- Space is in Excellent Condition
1st Floor, Ste 102
| Size | 3,016 SF |
| Term | Negotiable |
| Rental Rate | Upon Request |
| Space Use | Retail |
| Build-Out | Full Build-Out |
| Available | Now |
We have a fully turn key yoga studio which can also be used for fitness, chiropractic, other wellness related uses available. Call for more info: 630-362-7549 or email at Lmarrone@praecorp564.com
- Fully Built-Out as Standard Retail Space
- Space is in Excellent Condition
- Central Air and Heating
- Partitioned Offices
- High Ceilings
- Plug & Play
- Basement
- Common Parts WC Facilities
- Hardwood Floors
2nd Floor
| Size | 18,680 SF |
| Term | Negotiable |
| Rental Rate | Upon Request |
| Space Use | Flex |
| Build-Out | Full Build-Out |
| Available | Now |
Full second floor available for lease. Currently built out as a wedding venue complete with ceremony area, dining/dance area, bar, bridal suite, grooms room, catering prep kitchen (no hood) and storage. For more info call or email 630-362-7549 Lmarrone@praecorp564.com
- Central Air Conditioning
- Private Restrooms
- Drop Ceilings
- Plug & Play
Property Overview
Located in Downtown Elgin, 162-168 E Highland is a 79,642 SF, three-story, multi-tenant office building consisting of 7 commercial spaces and 2 residential apartments. The building encompasses the rich history of Elgin and offers unique tenant finishes that can’t be replicated by todays modern construction. The property is for sale or for lease. For inquiries contact Lorenzo Marrone - 630-362-7549 Lmarrone@praecorp564.com
- Central Heating
- Air Conditioning
Property Facts
Presented by
168 E Highland Ave
Hmm, there seems to have been an error sending your message. Please try again.
Thanks! Your message was sent.


