Your email has been sent.
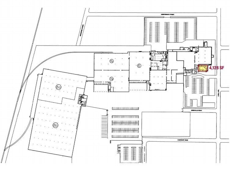
Gateway Business Center 1680-1700 Lyell Ave 4,128 SF of Office Space Available in Rochester, NY 14606



Highlights
- Easy Access to I-490/390
- On Truck Route & Bus Line
Features
All Available Space(1)
Display Rental Rate as
- Space
- Size
- Term
- Rental Rate
- Space Use
- Build-Out
- Available
Conveniently located second floor office space just minutes from both western suburbs and downtown. Great expressway access for I-490 and I-390. Right on major truck Rt. 31. Lots of parking. Near restaurants and shopping.
- Listed rate may not include certain utilities, building services and property expenses
- Includes 900 SF of dedicated office space
- Fits 11 - 34 People
| Space | Size | Term | Rental Rate | Space Use | Build-Out | Available |
| 2nd Floor | 4,128 SF | Negotiable | $9.59 CAD/SF/YR $0.80 CAD/SF/MO $39,599 CAD/YR $3,300 CAD/MO | Office | - | Now |
2nd Floor
| Size |
| 4,128 SF |
| Term |
| Negotiable |
| Rental Rate |
| $9.59 CAD/SF/YR $0.80 CAD/SF/MO $39,599 CAD/YR $3,300 CAD/MO |
| Space Use |
| Office |
| Build-Out |
| - |
| Available |
| Now |
2nd Floor
| Size | 4,128 SF |
| Term | Negotiable |
| Rental Rate | $9.59 CAD/SF/YR |
| Space Use | Office |
| Build-Out | - |
| Available | Now |
Conveniently located second floor office space just minutes from both western suburbs and downtown. Great expressway access for I-490 and I-390. Right on major truck Rt. 31. Lots of parking. Near restaurants and shopping.
- Listed rate may not include certain utilities, building services and property expenses
- Fits 11 - 34 People
- Includes 900 SF of dedicated office space
Property Overview
Brick and mortar building, formerly the Ragu sauce plant. Warehouse distribution facility with docks. Best distribution space in the area. West side of Rochester. Just minutes from both western suburbs and downtown. Great expressway access for I-490 and I-390. Right on major truck Rt. 31. Lots of parking. Near restaurants and shopping.
Distribution Facility Facts
Presented by
Gateway Business Center | 1680-1700 Lyell Ave
Hmm, there seems to have been an error sending your message. Please try again.
Thanks! Your message was sent.



