Log In/Sign Up
Your email has been sent.
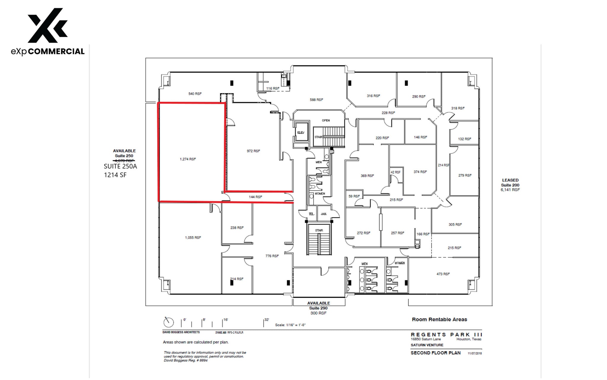
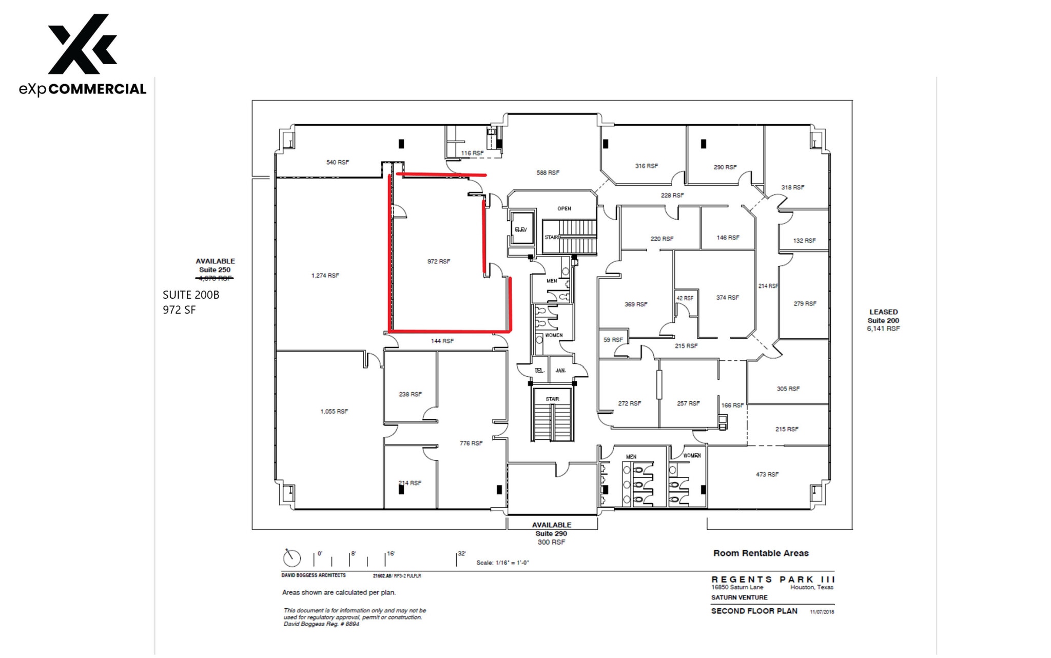
16850 Saturn Ln
Houston, TX 77058
Regents Park III · Office Property For Lease
·
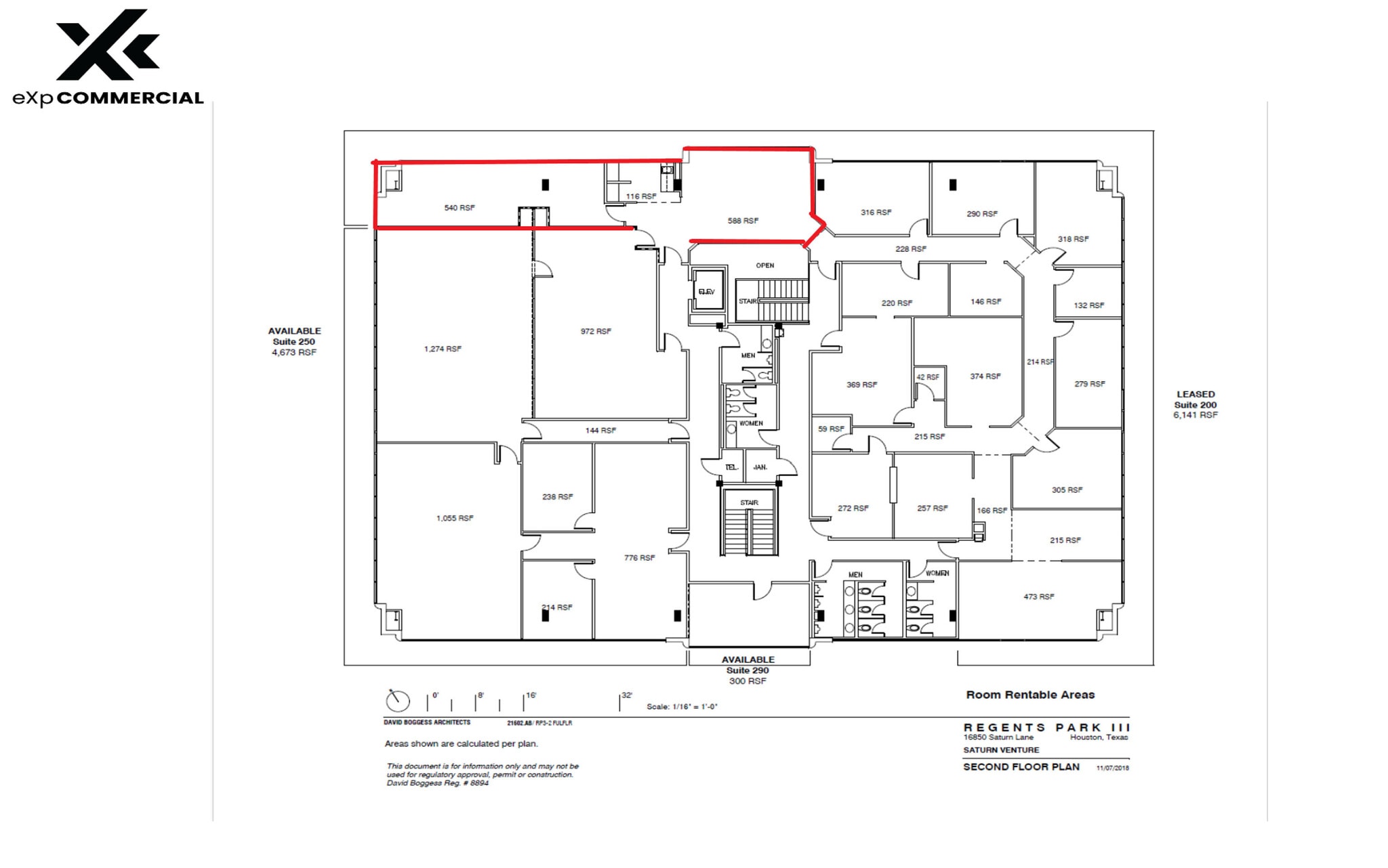
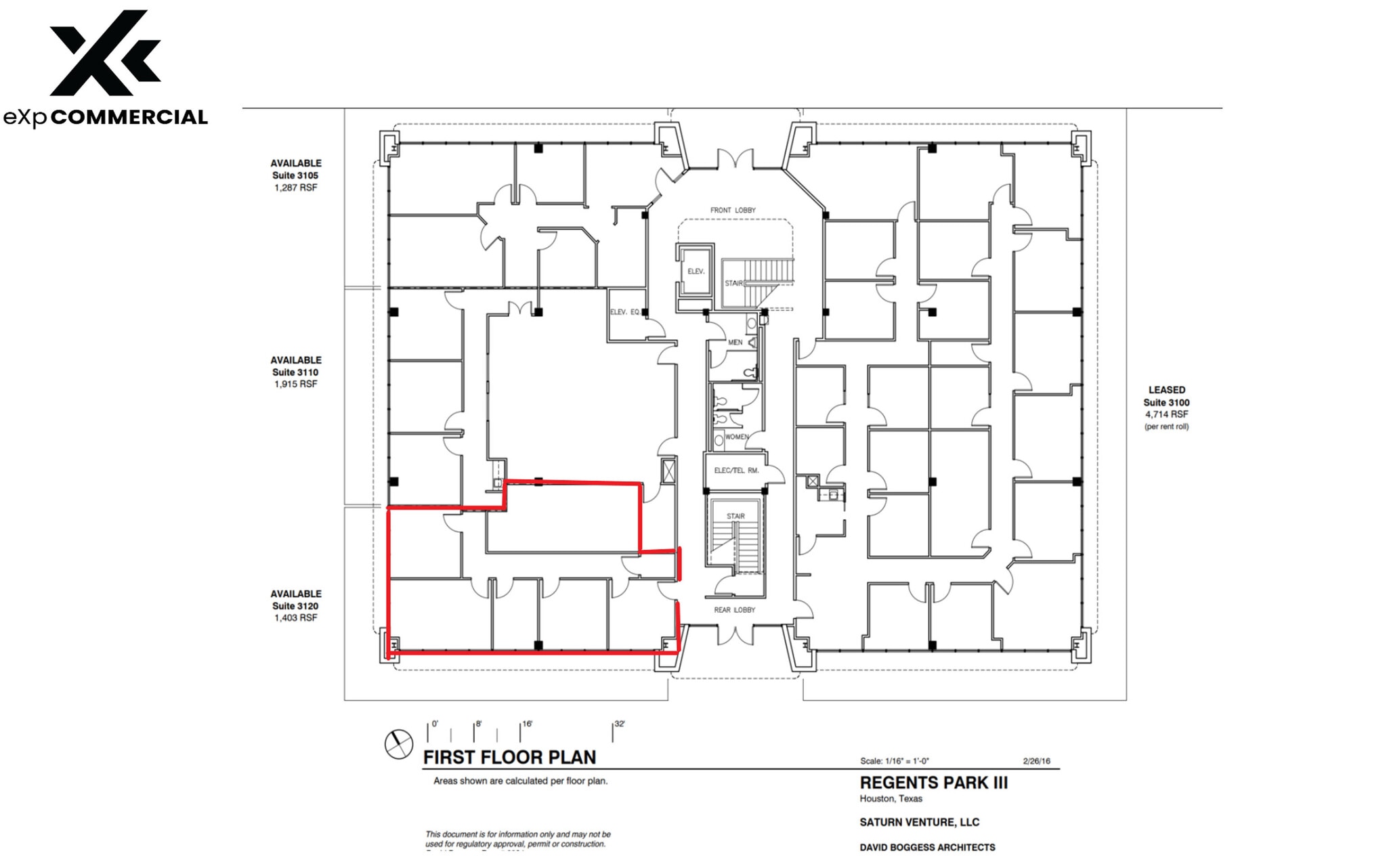
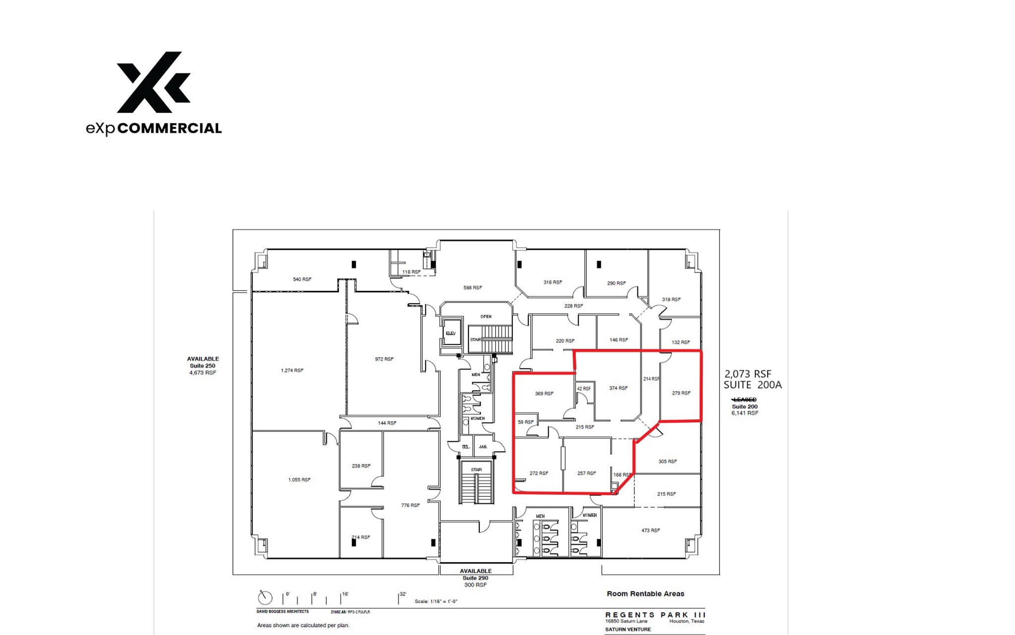
13,491 SF


Highlights
- Great Location, Fresh Rennovation, Great Tenants, Quiet, Secure Location in the Heart of the Bay Area
Property Overview
Beautiful office space ready for immediate delivery. Convenient to Clear Lake, League City, Webster, this quiet professional office building boasts a recent renovation and great rental rates. Suites from 400sf and up available for same day, no hassle, move in. Call or Text Jason at today 832-956-0547 or 763-498-1941
- Conferencing Facility
- Signage
- Air Conditioning
- Balcony
Property Facts
Building Type
Office
Year Built/Renovated
1985/2000
Building Height
2 Stories
Building Size
21,539 SF
Building Class
B
Typical Floor Size
10,370 SF
Unfinished Ceiling Height
12’
Parking
62 Surface Parking Spaces
1 of 20
Videos
Matterport 3D Exterior
Matterport 3D Tour
Photos
Street View
Street
Map
