Your email has been sent.
South County Distribution Center Chula Vista, CA 91911 8,184 - 102,455 SF of Industrial Space Available



Park Facts
| Total Space Available | 102,455 SF | Park Type | Industrial Park |
| Max. Contiguous | 45,402 SF |
| Total Space Available | 102,455 SF |
| Max. Contiguous | 45,402 SF |
| Park Type | Industrial Park |
All Available Spaces(4)
Display Rental Rate as
- Space
- Size
- Term
- Rental Rate
- Space Use
- Build-Out
- Available
NNNs = ±$0.42 PSF/Month.
- Lease rate does not include utilities, property expenses or building services
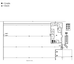
- 2 Drive Ins
- 2 Loading Docks
- 22'-26’ Clear Height
- Includes 875 SF of dedicated office space
- Can be combined with additional space(s) for up to 45,402 SF of adjacent space
- Reception Area
- 1600 amps at 277/480V for 1690-A&B combined
NNNs = ±$0.42 PSF/Month.
- Lease rate does not include utilities, property expenses or building services
- 2 Loading Docks
- 22'-26’ Clear Height
- Can be combined with additional space(s) for up to 45,402 SF of adjacent space
- Reception Area
- 1600 amps at 277/480V for 1690-A&B combined
| Space | Size | Term | Rental Rate | Space Use | Build-Out | Available |
| 1st Floor - A | 17,518 SF | Negotiable | $13.93 CAD/SF/YR $1.16 CAD/SF/MO $244,021 CAD/YR $20,335 CAD/MO | Industrial | Full Build-Out | Now |
| 1st Floor - B | 27,884 SF | Negotiable | $13.93 CAD/SF/YR $1.16 CAD/SF/MO $388,417 CAD/YR $32,368 CAD/MO | Industrial | Full Build-Out | Now |
1690 Brandywine Ave - 1st Floor - A
1690 Brandywine Ave - 1st Floor - B
- Space
- Size
- Term
- Rental Rate
- Space Use
- Build-Out
- Available
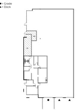
This industrial suite is located in Chula Vista, CA. Comprising of 8,184 SF of office and warehousing space.
- Lease rate does not include utilities, property expenses or building services
- 1 Drive Bay
- 2 Loading Docks
- 22'-26’ Clear Height
- Includes 1,367 SF of dedicated office space
- Space is in Excellent Condition
- Reception Area
- 120 amps at 208V
| Space | Size | Term | Rental Rate | Space Use | Build-Out | Available |
| 1st Floor - B | 8,184 SF | Negotiable | $18.85 CAD/SF/YR $1.57 CAD/SF/MO $154,237 CAD/YR $12,853 CAD/MO | Industrial | Full Build-Out | Now |
1675 Brandywine Ave - 1st Floor - B
- Space
- Size
- Term
- Rental Rate
- Space Use
- Build-Out
- Available
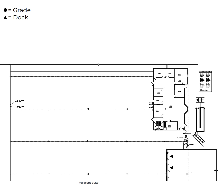
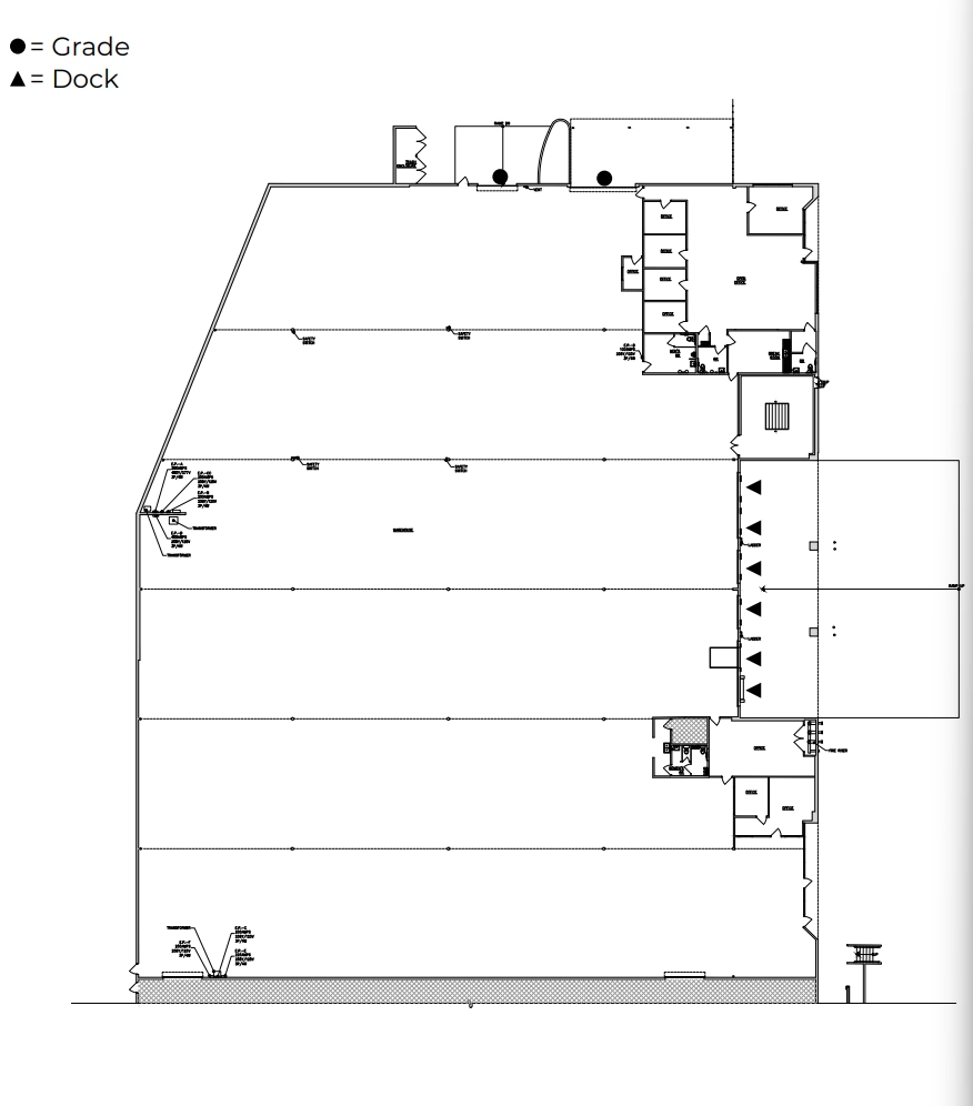
This industrial suite is located in Chula Vista, CA. Comprising of 48,869 SF of warehousing space with a fenced in yard. (EXPANDABLE)
- Lease rate does not include utilities, property expenses or building services
- 2 Drive Ins
- 6 Loading Docks
- Reception Area
- 6 Docks, 2 grade level doors
- Located in Chula Vista, CA
- 700 amps 120/208V 600 amps 277/480V
- Includes 4,887 SF of dedicated office space
- Space is in Excellent Condition
- Partitioned Offices
- Natural Light
- 22'-26' clear height
- 10,000 SF Fenced Yard
| Space | Size | Term | Rental Rate | Space Use | Build-Out | Available |
| 1st Floor - C&D | 48,869 SF | Negotiable | $12.29 CAD/SF/YR $1.02 CAD/SF/MO $600,646 CAD/YR $50,054 CAD/MO | Industrial | Full Build-Out | Now |
1670 Brandywine Ave - 1st Floor - C&D
1690 Brandywine Ave - 1st Floor - A
| Size | 17,518 SF |
| Term | Negotiable |
| Rental Rate | $13.93 CAD/SF/YR |
| Space Use | Industrial |
| Build-Out | Full Build-Out |
| Available | Now |
NNNs = ±$0.42 PSF/Month.
- Lease rate does not include utilities, property expenses or building services
- Includes 875 SF of dedicated office space
- 2 Drive Ins
- Can be combined with additional space(s) for up to 45,402 SF of adjacent space
- 2 Loading Docks
- Reception Area
- 22'-26’ Clear Height
- 1600 amps at 277/480V for 1690-A&B combined
1690 Brandywine Ave - 1st Floor - B
| Size | 27,884 SF |
| Term | Negotiable |
| Rental Rate | $13.93 CAD/SF/YR |
| Space Use | Industrial |
| Build-Out | Full Build-Out |
| Available | Now |
NNNs = ±$0.42 PSF/Month.
- Lease rate does not include utilities, property expenses or building services
- Can be combined with additional space(s) for up to 45,402 SF of adjacent space
- 2 Loading Docks
- Reception Area
- 22'-26’ Clear Height
- 1600 amps at 277/480V for 1690-A&B combined
1675 Brandywine Ave - 1st Floor - B
| Size | 8,184 SF |
| Term | Negotiable |
| Rental Rate | $18.85 CAD/SF/YR |
| Space Use | Industrial |
| Build-Out | Full Build-Out |
| Available | Now |
This industrial suite is located in Chula Vista, CA. Comprising of 8,184 SF of office and warehousing space.
- Lease rate does not include utilities, property expenses or building services
- Includes 1,367 SF of dedicated office space
- 1 Drive Bay
- Space is in Excellent Condition
- 2 Loading Docks
- Reception Area
- 22'-26’ Clear Height
- 120 amps at 208V
1670 Brandywine Ave - 1st Floor - C&D
| Size | 48,869 SF |
| Term | Negotiable |
| Rental Rate | $12.29 CAD/SF/YR |
| Space Use | Industrial |
| Build-Out | Full Build-Out |
| Available | Now |
This industrial suite is located in Chula Vista, CA. Comprising of 48,869 SF of warehousing space with a fenced in yard. (EXPANDABLE)
- Lease rate does not include utilities, property expenses or building services
- Includes 4,887 SF of dedicated office space
- 2 Drive Ins
- Space is in Excellent Condition
- 6 Loading Docks
- Partitioned Offices
- Reception Area
- Natural Light
- 6 Docks, 2 grade level doors
- 22'-26' clear height
- Located in Chula Vista, CA
- 10,000 SF Fenced Yard
- 700 amps 120/208V 600 amps 277/480V
Presented by
South County Distribution Center | Chula Vista, CA 91911
Hmm, there seems to have been an error sending your message. Please try again.
Thanks! Your message was sent.










