Your email has been sent.
17-21 Union St N 1,560 SF of Office/Retail Space Available in Concord, NC 28025



Highlights
- Clean, modern finishes
- Ideal for professional or creative offices
- Full kitchen
- Abundant natural light
- Two private bathrooms, including a shower
Space Availability (1)
Display Rental Rate as
- Space
- Size
- Term
- Rental Rate
- Rent Type
| Space | Size | Term | Rental Rate | Rent Type | ||
| 2nd Floor, Ste 19 | 1,560 SF | 3-5 Years | $37.08 CAD/SF/YR $3.09 CAD/SF/MO $57,848 CAD/YR $4,821 CAD/MO | Modified Gross |
2nd Floor, Ste 19
- Listed rate may not include certain utilities, building services and property expenses
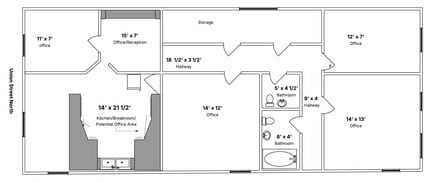
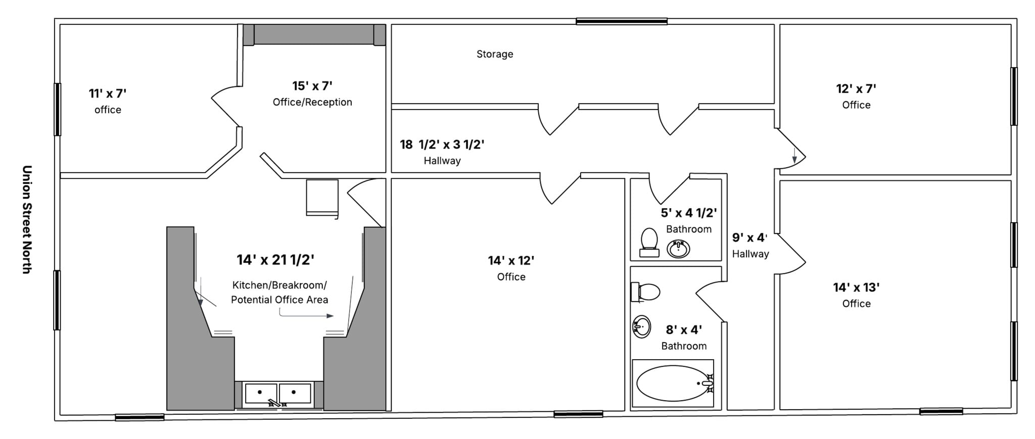
- Fully Built-Out as Standard Office
- Office intensive layout
- Partitioned Offices
- Central Air and Heating
- Private Restrooms
- Natural Light
- Shower Facilities
- Hardwood Floors
Rent Types
The rent amount and type that the tenant (lessee) will be responsible to pay to the landlord (lessor) throughout the lease term is negotiated prior to both parties signing a lease agreement. The rent type will vary depending upon the services provided. For example, triple net rents are typically lower than full service rents due to additional expenses the tenant is required to pay in addition to the base rent. Contact the listing broker for a full understanding of any associated costs or additional expenses for each rent type.
1. Full Service: A rental rate that includes normal building standard services as provided by the landlord within a base year rental.
2. Double Net (NN): Tenant pays for only two of the building expenses; the landlord and tenant determine the specific expenses prior to signing the lease agreement.
3. Triple Net (NNN): A lease in which the tenant is responsible for all expenses associated with their proportional share of occupancy of the building.
4. Modified Gross: Modified Gross is a general type of lease rate where typically the tenant will be responsible for their proportional share of one or more of the expenses. The landlord will pay the remaining expenses. See the below list of common Modified Gross rental rate structures: 4. Plus All Utilities: A type of Modified Gross Lease where the tenant is responsible for their proportional share of utilities in addition to the rent. 4. Plus Cleaning: A type of Modified Gross Lease where the tenant is responsible for their proportional share of cleaning in addition to the rent. 4. Plus Electric: A type of Modified Gross Lease where the tenant is responsible for their proportional share of the electrical cost in addition to the rent. 4. Plus Electric & Cleaning: A type of Modified Gross Lease where the tenant is responsible for their proportional share of the electrical and cleaning cost in addition to the rent. 4. Plus Utilities and Char: A type of Modified Gross Lease where the tenant is responsible for their proportional share of the utilities and cleaning cost in addition to the rent. 4. Industrial Gross: A type of Modified Gross lease where the tenant pays one or more of the expenses in addition to the rent. The landlord and tenant determine these prior to signing the lease agreement.
5. Tenant Electric: The landlord pays for all services and the tenant is responsible for their usage of lights and electrical outlets in the space they occupy.
6. Negotiable or Upon Request: Used when the leasing contact does not provide the rent or service type.
7. TBD: To be determined; used for buildings for which no rent or service type is known, commonly utilized when the buildings are not yet built.
Select Tenants at 17-21 Union St N, Concord, NC 28025
- Tenant
- Description
- US Locations
- Reach
- B&K Tea Cafe
- Other Services
- 4
- Local
- Cabarrus Creamery
- Restaurant
- 1
- -
- Enchanted Kitchen
- Card/Gifts
- 1
- -
| Tenant | Description | US Locations | Reach |
| B&K Tea Cafe | Other Services | 4 | Local |
| Cabarrus Creamery | Restaurant | 1 | - |
| Enchanted Kitchen | Card/Gifts | 1 | - |
Property Facts
| Total Space Available | 1,560 SF | Gross Leasable Area | 3,654 SF |
| Property Type | Retail | Year Built/Renovated | 1915/2018 |
| Property Subtype | Storefront Retail/Office |
| Total Space Available | 1,560 SF |
| Property Type | Retail |
| Property Subtype | Storefront Retail/Office |
| Gross Leasable Area | 3,654 SF |
| Year Built/Renovated | 1915/2018 |
About the Property
Elevate your business with a full-floor opportunity in the heart of Downtown Concord. Located at 19 Union Street North, this entire second-floor suite offers a rare combination of character, functionality, and modern comfort. Designed for productivity and flexibility, the space accommodates up to six private offices, many featuring custom built-ins and thoughtful finishes that create a polished, professional environment. Natural light pours in throughout the day, enhancing both energy and ambiance
- Bus Line
- Signage
Nearby Major Retailers
Presented by
17-21 Union St N
Hmm, there seems to have been an error sending your message. Please try again.
Thanks! Your message was sent.


