Your email has been sent.
Highlights
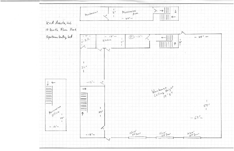
- ±14’8” clear warehouse ceiling height
- Large open warehouse area (approx. 68’ x 59’)
- Kitchen/breakroom and restroom in place
- Three (3) 12’ x 10’ grade-level overhead doors
- Mezzanine storage platform plus separate mezzanine office
- Functional layout ideal for light industrial, service, or distribution users
Features
All Available Space(1)
Display Rental Rate as
- Space
- Size
- Term
- Rental Rate
- Space Use
- Condition
- Available
Located in Spokane Valley’s established industrial corridor at 17 N Flora Rd, this functional industrial facility offers a versatile layout designed to support a wide range of light industrial, service, and distribution users. The property features approximately 14’8” clear warehouse ceiling height and a large open warehouse area, providing efficient space for racking, storage, and operations. Three (3) 12’ x 10’ grade-level overhead doors allow for convenient loading and circulation. The building is improved with a mezzanine storage platform and a separate mezzanine office, maximizing usable square footage and providing flexible space for administrative or overflow needs. A kitchen/breakroom and restroom are in place to support daily operations. The property’s central Spokane Valley location provides convenient access for local and regional users seeking a functional, well-configured industrial facility.
- Lease rate does not include utilities, property expenses or building services
- 3 Drive Ins
| Space | Size | Term | Rental Rate | Space Use | Condition | Available |
| 1st Floor - A | 5,270 SF | Negotiable | $16.57 CAD/SF/YR $1.38 CAD/SF/MO $87,315 CAD/YR $7,276 CAD/MO | Industrial | Shell Space | Now |
1st Floor - A
| Size |
| 5,270 SF |
| Term |
| Negotiable |
| Rental Rate |
| $16.57 CAD/SF/YR $1.38 CAD/SF/MO $87,315 CAD/YR $7,276 CAD/MO |
| Space Use |
| Industrial |
| Condition |
| Shell Space |
| Available |
| Now |
1st Floor - A
| Size | 5,270 SF |
| Term | Negotiable |
| Rental Rate | $16.57 CAD/SF/YR |
| Space Use | Industrial |
| Condition | Shell Space |
| Available | Now |
Located in Spokane Valley’s established industrial corridor at 17 N Flora Rd, this functional industrial facility offers a versatile layout designed to support a wide range of light industrial, service, and distribution users. The property features approximately 14’8” clear warehouse ceiling height and a large open warehouse area, providing efficient space for racking, storage, and operations. Three (3) 12’ x 10’ grade-level overhead doors allow for convenient loading and circulation. The building is improved with a mezzanine storage platform and a separate mezzanine office, maximizing usable square footage and providing flexible space for administrative or overflow needs. A kitchen/breakroom and restroom are in place to support daily operations. The property’s central Spokane Valley location provides convenient access for local and regional users seeking a functional, well-configured industrial facility.
- Lease rate does not include utilities, property expenses or building services
- 3 Drive Ins
Warehouse Facility Facts
Presented by
17 N Flora Rd
Hmm, there seems to have been an error sending your message. Please try again.
Thanks! Your message was sent.



