Your email has been sent.
Some information has been automatically translated.
Investment Highlights
- Programme neuf
- Parking mutualisé
- Accès rapide A89
Executive Summary
Le Parc du Viaduc est un programme neuf conçu pour accueillir des activités artisanales, industrielles légères ou de petites entreprises en recherche d’un environnement moderne et fonctionnel. L’ensemble se distingue par son architecture en structure bois et ses façades légères, apportant un cadre de travail qualitatif et durable. Les cellules sont pensées pour offrir une flexibilité importante, avec des volumes faciles à adapter et des hauteurs confortables permettant d’implanter aussi bien des machines que des espaces de travail. Le site intègre un parking mutualisé en nombre conséquent, garantissant une accessibilité facilitée pour les collaborateurs et les visiteurs. Le parc bénéficie d’une localisation stratégique à Tarare, à proximité immédiate de l’autoroute A89 et à moins de quarante-cinq minutes des principales gares lyonnaises. Cette situation permet de connecter aisément les différents bassins économiques de la région, tout en proposant un environnement calme et propice aux activités de production ou de logistique légère. La conception récente du site garantit un niveau de performance technique élevé et une qualité d’exploitation durable pour les entreprises souhaitant s’y implanter.
8 Units Available
Unit c1
| Unit Size | 4,531 SF | Sale Type | Owner User |
| Condo Use | Flex |
| Unit Size | 4,531 SF |
| Condo Use | Flex |
| Sale Type | Owner User |
Description
Activités:
. Parking mutualisé (168 places)
. Charpente ossature bois
Façades légères à ossature métallique
. Hauteur libre sous plafond 5,70 mètres
. Hauteur libre sous mezzanine 2,50 mètres
Bureaux :
. Hauteur sous plafond des bureaux 2,70 mètres
. Modularité du cloisonnement basée sur un tramage tous les 2,70 mètres
. Traitement hygiénique par ventilation mécanique d'air à double flux
. Production calorifique / frigorifique : système PAC DRV 2 tubes dans local technique au niveau 0
Commerces :
. Bâtiment en ERP catégorie 5 non définie
bâtiment en ERP catégorie 3 type N (lot 11 uniquement)
. Niveau 0 : Hauteur sous poutre 2,80 mètres
. Niveau 1 : Hauteur sous poutre 3,30 mètres
. Modularité du cloisonnement basée sur un tramage tous les 2,70 mètres
. Prédisposition pour équipement technique en attente en sous-sol
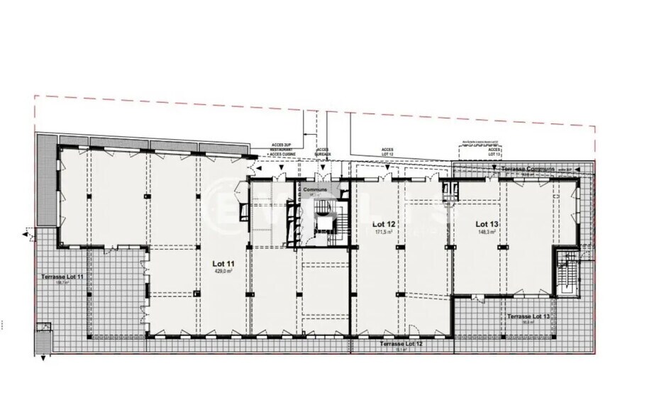
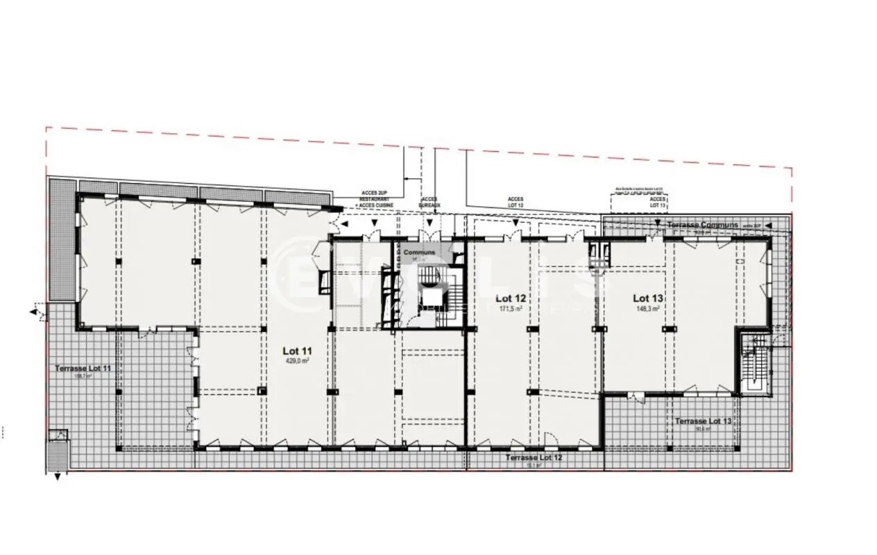
Surface RDC : 3912 m²
Sale Notes
Evolis vous présente le Parc du Viaduc à Tarare, lots de 160 à 300m² disponibles à la vente et/ou la location, comprenant un total de 5 207 m² dans l'ensemble du parc d'activité. Idéalement situé, ce parc neuf propose de belles prestations, à seulement 20 min de la TECHLID ! Locaux en charpente bois, livrés bruts, fluides en attente. Idéal pour des activités artisanales, startup, stockage. Des bureaux sont également disponibles à la vente sur le parc.
Interior Photo
Interior Photo
Interior Photo
Interior Photo
Interior Photo
Interior Photo
Interior Photo
Interior Photo
Interior Photo
Interior Photo
Interior Photo
Interior Photo
Interior Photo
Interior Photo
Interior Photo
Interior Photo
Interior Photo
Unit c2
| Unit Size | 3,616 SF | Sale Type | Owner User |
| Condo Use | Flex |
| Unit Size | 3,616 SF |
| Condo Use | Flex |
| Sale Type | Owner User |
Description
Activités:
. Parking mutualisé (168 places)
. Charpente ossature bois
Façades légères à ossature métallique
. Hauteur libre sous plafond 5,70 mètres
. Hauteur libre sous mezzanine 2,50 mètres
Bureaux :
. Hauteur sous plafond des bureaux 2,70 mètres
. Modularité du cloisonnement basée sur un tramage tous les 2,70 mètres
. Traitement hygiénique par ventilation mécanique d'air à double flux
. Production calorifique / frigorifique : système PAC DRV 2 tubes dans local technique au niveau 0
Commerces :
. Bâtiment en ERP catégorie 5 non définie
bâtiment en ERP catégorie 3 type N (lot 11 uniquement)
. Niveau 0 : Hauteur sous poutre 2,80 mètres
. Niveau 1 : Hauteur sous poutre 3,30 mètres
. Modularité du cloisonnement basée sur un tramage tous les 2,70 mètres
. Prédisposition pour équipement technique en attente en sous-sol
Surface RDC : 3912 m²
Sale Notes
Evolis vous présente le Parc du Viaduc à Tarare, lots de 160 à 300m² disponibles à la vente et/ou la location, comprenant un total de 5 207 m² dans l'ensemble du parc d'activité. Idéalement situé, ce parc neuf propose de belles prestations, à seulement 20 min de la TECHLID ! Locaux en charpente bois, livrés bruts, fluides en attente. Idéal pour des activités artisanales, startup, stockage. Des bureaux sont également disponibles à la vente sur le parc.
Interior Photo
Interior Photo
Interior Photo
Interior Photo
Interior Photo
Interior Photo
Interior Photo
Interior Photo
Interior Photo
Interior Photo
Interior Photo
Interior Photo
Interior Photo
Interior Photo
Interior Photo
Interior Photo
Interior Photo
Unit c3
| Unit Size | 4,757 SF | Sale Type | Owner User |
| Condo Use | Flex |
| Unit Size | 4,757 SF |
| Condo Use | Flex |
| Sale Type | Owner User |
Description
Activités:
. Parking mutualisé (168 places)
. Charpente ossature bois
Façades légères à ossature métallique
. Hauteur libre sous plafond 5,70 mètres
. Hauteur libre sous mezzanine 2,50 mètres
Bureaux :
. Hauteur sous plafond des bureaux 2,70 mètres
. Modularité du cloisonnement basée sur un tramage tous les 2,70 mètres
. Traitement hygiénique par ventilation mécanique d'air à double flux
. Production calorifique / frigorifique : système PAC DRV 2 tubes dans local technique au niveau 0
Commerces :
. Bâtiment en ERP catégorie 5 non définie
bâtiment en ERP catégorie 3 type N (lot 11 uniquement)
. Niveau 0 : Hauteur sous poutre 2,80 mètres
. Niveau 1 : Hauteur sous poutre 3,30 mètres
. Modularité du cloisonnement basée sur un tramage tous les 2,70 mètres
. Prédisposition pour équipement technique en attente en sous-sol
Surface RDC : 3912 m²
Sale Notes
Evolis vous présente le Parc du Viaduc à Tarare, lots de 160 à 300m² disponibles à la vente et/ou la location, comprenant un total de 5 207 m² dans l'ensemble du parc d'activité. Idéalement situé, ce parc neuf propose de belles prestations, à seulement 20 min de la TECHLID ! Locaux en charpente bois, livrés bruts, fluides en attente. Idéal pour des activités artisanales, startup, stockage. Des bureaux sont également disponibles à la vente sur le parc.
Interior Photo
Interior Photo
Interior Photo
Interior Photo
Interior Photo
Interior Photo
Interior Photo
Interior Photo
Interior Photo
Interior Photo
Interior Photo
Interior Photo
Interior Photo
Interior Photo
Interior Photo
Interior Photo
Interior Photo
Unit c4
| Unit Size | 4,531 SF | Sale Type | Owner User |
| Condo Use | Flex |
| Unit Size | 4,531 SF |
| Condo Use | Flex |
| Sale Type | Owner User |
Description
Activités:
. Parking mutualisé (168 places)
. Charpente ossature bois
Façades légères à ossature métallique
. Hauteur libre sous plafond 5,70 mètres
. Hauteur libre sous mezzanine 2,50 mètres
Bureaux :
. Hauteur sous plafond des bureaux 2,70 mètres
. Modularité du cloisonnement basée sur un tramage tous les 2,70 mètres
. Traitement hygiénique par ventilation mécanique d'air à double flux
. Production calorifique / frigorifique : système PAC DRV 2 tubes dans local technique au niveau 0
Commerces :
. Bâtiment en ERP catégorie 5 non définie
bâtiment en ERP catégorie 3 type N (lot 11 uniquement)
. Niveau 0 : Hauteur sous poutre 2,80 mètres
. Niveau 1 : Hauteur sous poutre 3,30 mètres
. Modularité du cloisonnement basée sur un tramage tous les 2,70 mètres
. Prédisposition pour équipement technique en attente en sous-sol
Surface RDC : 3912 m²
Sale Notes
Evolis vous présente le Parc du Viaduc à Tarare, lots de 160 à 300m² disponibles à la vente et/ou la location, comprenant un total de 5 207 m² dans l'ensemble du parc d'activité. Idéalement situé, ce parc neuf propose de belles prestations, à seulement 20 min de la TECHLID ! Locaux en charpente bois, livrés bruts, fluides en attente. Idéal pour des activités artisanales, startup, stockage. Des bureaux sont également disponibles à la vente sur le parc.
Interior Photo
Interior Photo
Interior Photo
Interior Photo
Interior Photo
Interior Photo
Interior Photo
Interior Photo
Interior Photo
Interior Photo
Interior Photo
Interior Photo
Interior Photo
Interior Photo
Interior Photo
Interior Photo
Interior Photo
Unit c1
| Unit Size | 1,291 SF | Sale Type | Owner User |
| Condo Use | Office |
| Unit Size | 1,291 SF |
| Condo Use | Office |
| Sale Type | Owner User |
Description
Activités:
. Parking mutualisé (168 places)
. Charpente ossature bois
Façades légères à ossature métallique
. Hauteur libre sous plafond 5,70 mètres
. Hauteur libre sous mezzanine 2,50 mètres
Bureaux :
. Hauteur sous plafond des bureaux 2,70 mètres
. Modularité du cloisonnement basée sur un tramage tous les 2,70 mètres
. Traitement hygiénique par ventilation mécanique d'air à double flux
. Production calorifique / frigorifique : système PAC DRV 2 tubes dans local technique au niveau 0
Commerces :
. Bâtiment en ERP catégorie 5 non définie
bâtiment en ERP catégorie 3 type N (lot 11 uniquement)
. Niveau 0 : Hauteur sous poutre 2,80 mètres
. Niveau 1 : Hauteur sous poutre 3,30 mètres
. Modularité du cloisonnement basée sur un tramage tous les 2,70 mètres
. Prédisposition pour équipement technique en attente en sous-sol
Surface RDC : 3912 m²
Sale Notes
Evolis vous présente le Parc du Viaduc à Tarare, lots de 160 à 300m² disponibles à la vente et/ou la location, comprenant un total de 5 207 m² dans l'ensemble du parc d'activité. Idéalement situé, ce parc neuf propose de belles prestations, à seulement 20 min de la TECHLID ! Locaux en charpente bois, livrés bruts, fluides en attente. Idéal pour des activités artisanales, startup, stockage. Des bureaux sont également disponibles à la vente sur le parc.
Interior Photo
Interior Photo
Interior Photo
Interior Photo
Interior Photo
Interior Photo
Interior Photo
Interior Photo
Interior Photo
Interior Photo
Interior Photo
Interior Photo
Interior Photo
Interior Photo
Interior Photo
Interior Photo
Interior Photo
Unit c2
| Unit Size | 1,140 SF | Sale Type | Owner User |
| Condo Use | Office |
| Unit Size | 1,140 SF |
| Condo Use | Office |
| Sale Type | Owner User |
Description
Activités:
. Parking mutualisé (168 places)
. Charpente ossature bois
Façades légères à ossature métallique
. Hauteur libre sous plafond 5,70 mètres
. Hauteur libre sous mezzanine 2,50 mètres
Bureaux :
. Hauteur sous plafond des bureaux 2,70 mètres
. Modularité du cloisonnement basée sur un tramage tous les 2,70 mètres
. Traitement hygiénique par ventilation mécanique d'air à double flux
. Production calorifique / frigorifique : système PAC DRV 2 tubes dans local technique au niveau 0
Commerces :
. Bâtiment en ERP catégorie 5 non définie
bâtiment en ERP catégorie 3 type N (lot 11 uniquement)
. Niveau 0 : Hauteur sous poutre 2,80 mètres
. Niveau 1 : Hauteur sous poutre 3,30 mètres
. Modularité du cloisonnement basée sur un tramage tous les 2,70 mètres
. Prédisposition pour équipement technique en attente en sous-sol
Surface RDC : 3912 m²
Sale Notes
Evolis vous présente le Parc du Viaduc à Tarare, lots de 160 à 300m² disponibles à la vente et/ou la location, comprenant un total de 5 207 m² dans l'ensemble du parc d'activité. Idéalement situé, ce parc neuf propose de belles prestations, à seulement 20 min de la TECHLID ! Locaux en charpente bois, livrés bruts, fluides en attente. Idéal pour des activités artisanales, startup, stockage. Des bureaux sont également disponibles à la vente sur le parc.
Interior Photo
Interior Photo
Interior Photo
Interior Photo
Interior Photo
Interior Photo
Interior Photo
Interior Photo
Interior Photo
Interior Photo
Interior Photo
Interior Photo
Interior Photo
Interior Photo
Interior Photo
Interior Photo
Interior Photo
Unit c3
| Unit Size | 1,140 SF | Sale Type | Owner User |
| Condo Use | Office |
| Unit Size | 1,140 SF |
| Condo Use | Office |
| Sale Type | Owner User |
Description
Activités:
. Parking mutualisé (168 places)
. Charpente ossature bois
Façades légères à ossature métallique
. Hauteur libre sous plafond 5,70 mètres
. Hauteur libre sous mezzanine 2,50 mètres
Bureaux :
. Hauteur sous plafond des bureaux 2,70 mètres
. Modularité du cloisonnement basée sur un tramage tous les 2,70 mètres
. Traitement hygiénique par ventilation mécanique d'air à double flux
. Production calorifique / frigorifique : système PAC DRV 2 tubes dans local technique au niveau 0
Commerces :
. Bâtiment en ERP catégorie 5 non définie
bâtiment en ERP catégorie 3 type N (lot 11 uniquement)
. Niveau 0 : Hauteur sous poutre 2,80 mètres
. Niveau 1 : Hauteur sous poutre 3,30 mètres
. Modularité du cloisonnement basée sur un tramage tous les 2,70 mètres
. Prédisposition pour équipement technique en attente en sous-sol
Surface RDC : 3912 m²
Sale Notes
Evolis vous présente le Parc du Viaduc à Tarare, lots de 160 à 300m² disponibles à la vente et/ou la location, comprenant un total de 5 207 m² dans l'ensemble du parc d'activité. Idéalement situé, ce parc neuf propose de belles prestations, à seulement 20 min de la TECHLID ! Locaux en charpente bois, livrés bruts, fluides en attente. Idéal pour des activités artisanales, startup, stockage. Des bureaux sont également disponibles à la vente sur le parc.
Interior Photo
Interior Photo
Interior Photo
Interior Photo
Interior Photo
Interior Photo
Interior Photo
Interior Photo
Interior Photo
Interior Photo
Interior Photo
Interior Photo
Interior Photo
Interior Photo
Interior Photo
Interior Photo
Interior Photo
Unit c4
| Unit Size | 1,291 SF | Sale Type | Owner User |
| Condo Use | Office |
| Unit Size | 1,291 SF |
| Condo Use | Office |
| Sale Type | Owner User |
Description
Activités:
. Parking mutualisé (168 places)
. Charpente ossature bois
Façades légères à ossature métallique
. Hauteur libre sous plafond 5,70 mètres
. Hauteur libre sous mezzanine 2,50 mètres
Bureaux :
. Hauteur sous plafond des bureaux 2,70 mètres
. Modularité du cloisonnement basée sur un tramage tous les 2,70 mètres
. Traitement hygiénique par ventilation mécanique d'air à double flux
. Production calorifique / frigorifique : système PAC DRV 2 tubes dans local technique au niveau 0
Commerces :
. Bâtiment en ERP catégorie 5 non définie
bâtiment en ERP catégorie 3 type N (lot 11 uniquement)
. Niveau 0 : Hauteur sous poutre 2,80 mètres
. Niveau 1 : Hauteur sous poutre 3,30 mètres
. Modularité du cloisonnement basée sur un tramage tous les 2,70 mètres
. Prédisposition pour équipement technique en attente en sous-sol
Surface RDC : 3912 m²
Sale Notes
Evolis vous présente le Parc du Viaduc à Tarare, lots de 160 à 300m² disponibles à la vente et/ou la location, comprenant un total de 5 207 m² dans l'ensemble du parc d'activité. Idéalement situé, ce parc neuf propose de belles prestations, à seulement 20 min de la TECHLID ! Locaux en charpente bois, livrés bruts, fluides en attente. Idéal pour des activités artisanales, startup, stockage. Des bureaux sont également disponibles à la vente sur le parc.
Interior Photo
Interior Photo
Interior Photo
Interior Photo
Interior Photo
Interior Photo
Interior Photo
Interior Photo
Interior Photo
Interior Photo
Interior Photo
Interior Photo
Interior Photo
Interior Photo
Interior Photo
Interior Photo
Interior Photo
Property Facts
| Total Building Size | 21,162 SF | Floors | 2 |
| Property Type | Flex | Typical Floor Size | 21,162 SF |
| Property Subtype | Light Manufacturing | Year Built | 2023 |
| Building Class | B | Lot Size | 0.44 AC |
| Total Building Size | 21,162 SF |
| Property Type | Flex |
| Property Subtype | Light Manufacturing |
| Building Class | B |
| Floors | 2 |
| Typical Floor Size | 21,162 SF |
| Year Built | 2023 |
| Lot Size | 0.44 AC |
Amenities
- 24 Hour Access
- Controlled Access
- Wheelchair Accessible
- Raised Floor System
Presented by
17 Rue De Paris - Bâtiment C
Hmm, there seems to have been an error sending your message. Please try again.
Thanks! Your message was sent.





