Log In/Sign Up
Your email has been sent.
17 W Sunset Ave 5,183 SF 100% Leased Flex Building Salt Lake City, UT 84115 $1,930,502 CAD ($372.47 CAD/SF)



EXECUTIVE SUMMARY
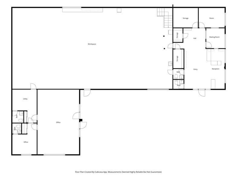
Fantastic opportunity to own both a well-established drapery business and an industrial building, conveniently located less than five minutes from I-15 in South Salt Lake. This turnkey operation includes all equipment, tools, and supplies needed to seamlessly continue or expand the established drapery business, which has built strong relationships over 30 years with several large recurring accounts. The business operates in a high-demand niche market with exponential room for growth. The property features two separate units-one of which is currently leased for $1,080 per month, providing immediate rental income and added investment stability. The space offers ample room for production. Don't miss out on this amazing opportunity for both business owners and investors looking to establish or grow their presence in a highly accessible industrial corridor! Measurements provided as a courtesy only, buyer to verify all info.
PROPERTY FACTS
| Price | $1,930,502 CAD | Rentable Building Area | 5,183 SF |
| Price Per SF | $372.47 CAD | No. Stories | 1 |
| Sale Type | Investment or Owner User | Year Built | 1977 |
| Property Type | Flex | Parking Ratio | 3.86/1,000 SF |
| Property Subtype | Light Manufacturing | Clear Ceiling Height | 14’ |
| Building Class | C | No. Drive In / Grade-Level Doors | 1 |
| Lot Size | 0.20 AC | Opportunity Zone |
Yes
|
| Zoning | 2000 | ||
| Price | $1,930,502 CAD |
| Price Per SF | $372.47 CAD |
| Sale Type | Investment or Owner User |
| Property Type | Flex |
| Property Subtype | Light Manufacturing |
| Building Class | C |
| Lot Size | 0.20 AC |
| Rentable Building Area | 5,183 SF |
| No. Stories | 1 |
| Year Built | 1977 |
| Parking Ratio | 3.86/1,000 SF |
| Clear Ceiling Height | 14’ |
| No. Drive In / Grade-Level Doors | 1 |
| Opportunity Zone |
Yes |
| Zoning | 2000 |
1 1
Walk Score®
Very Walkable (75)
PROPERTY TAXES
| Parcel Number | 15-25-229-010-0000 | Improvements Assessment | $810,698 CAD |
| Land Assessment | $154,425 CAD | Total Assessment | $965,123 CAD |
PROPERTY TAXES
Parcel Number
15-25-229-010-0000
Land Assessment
$154,425 CAD
Improvements Assessment
$810,698 CAD
Total Assessment
$965,123 CAD
1 of 38
VIDEOS
MATTERPORT 3D EXTERIOR
MATTERPORT 3D TOUR
PHOTOS
STREET VIEW
STREET
MAP
1 of 1
Presented by
17 W Sunset Ave
Already a member? Log In
Hmm, there seems to have been an error sending your message. Please try again.
Thanks! Your message was sent.
