Your email has been sent.
Highlights
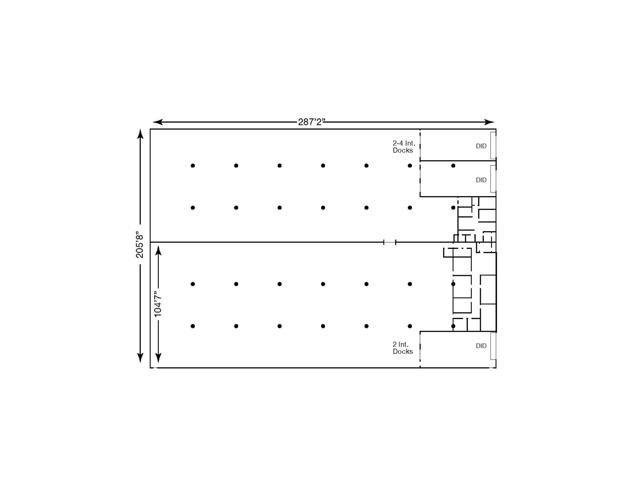
- 2 of the 4 interior docks have been filled in and are currently at grade level. They could be restored to be (4) functional interior truck docks.
- Immediate availability in a central Lake County location
- Excellent access to I-94, I-88, and I-55; 23 miles to O’Hare
- Banking, dining, shopping and hotel amenities located nearby.
- Flexible warehouse space with modern office buildouts
- Ample parking and strong power capacity for operational needs
Features
All Available Space(1)
Display Rental Rate as
- Space
- Size
- Term
- Rental Rate
- Space Use
- Build-Out
- Available
Availability: Immediate Ideal Central Lake County accessibility, 4.5 miles from 4-way interchange at Rt. 60/I-94 Unit Dimensions: 285’ x 102’9” Office Size: 2,312 SF Site Size: 3.06 acres
- Lease rate does not include certain property expenses
- 1 Drive Bay
- Includes 2,300 SF of dedicated office space
- 4 Loading Docks
| Space | Size | Term | Rental Rate | Space Use | Build-Out | Available |
| 1st Floor | 30,000 SF | Negotiable | $9.98 CAD/SF/YR $0.83 CAD/SF/MO $299,297 CAD/YR $24,941 CAD/MO | Industrial | Full Build-Out | 30 Days |
1st Floor
| Size |
| 30,000 SF |
| Term |
| Negotiable |
| Rental Rate |
| $9.98 CAD/SF/YR $0.83 CAD/SF/MO $299,297 CAD/YR $24,941 CAD/MO |
| Space Use |
| Industrial |
| Build-Out |
| Full Build-Out |
| Available |
| 30 Days |
1st Floor
| Size | 30,000 SF |
| Term | Negotiable |
| Rental Rate | $9.98 CAD/SF/YR |
| Space Use | Industrial |
| Build-Out | Full Build-Out |
| Available | 30 Days |
Availability: Immediate Ideal Central Lake County accessibility, 4.5 miles from 4-way interchange at Rt. 60/I-94 Unit Dimensions: 285’ x 102’9” Office Size: 2,312 SF Site Size: 3.06 acres
- Lease rate does not include certain property expenses
- Includes 2,300 SF of dedicated office space
- 1 Drive Bay
- 4 Loading Docks
Property Overview
Position your operations at 1700–1710 S. Butterfield Road, a prime industrial address in the heart of Lake County offering exceptional connectivity and functionality. This property delivers 30,000–60,000 SF of flexible warehouse/distribution space, complemented by modern office buildouts ranging from ±2,300 to 5,000 SF per unit, ideal for businesses seeking a strategic base in the Chicago metro area. The site’s central location ensures seamless access to major transportation corridors, just 4.5 miles from the full interchange at Rt. 60/I-94, with additional proximity to I-88 and I-55. O’Hare International Airport is only 23 miles away, supporting efficient regional and national logistics. Surrounding amenities include banking, dining, shopping, and hotels, creating convenience for employees and visitors alike. Constructed with durable masonry, the facility features 20-foot clear ceiling heights, 2–4 interior docks per unit, and one drive-in door, accommodating diverse loading requirements. With 800 amps of power (120–240 volts) and ample parking for 50 vehicles, the property is designed to support robust industrial operations. Zoned M-1, it offers flexibility for a range of light manufacturing and distribution uses. This is an opportunity to secure space in a proven industrial corridor with strong infrastructure and workforce accessibility. Immediate availability means your business can move quickly to capitalize on this strategic location.
Warehouse Facility Facts
Presented by
1700-1710 S Butterfield Rd
Hmm, there seems to have been an error sending your message. Please try again.
Thanks! Your message was sent.





