Your email has been sent.
Heart & Family Institute 1700 SE Hillmoor Dr 1,049 - 32,555 SF of Medical Space Available in Port Saint Lucie, FL 34952



Highlights
- Five-story medical office building with covered patient drop-off and abundant parking.
- Planned capital improvements include a renovated lobby, common areas, and updated exterior design in 2026.
- Competitive lease terms available with generous tenant improvement allowances.
- Located steps from HCA Florida St. Lucie Hospital, a 229-bed facility serving the area for more than 30 years.
- Strong tenant mix supported by a broad demographic and an on-site pharmacy for patient convenience.
- Positioned near Crosstown Parkway and within minutes of major regional thoroughfares, offering convenient access for patients and providers.
All Available Spaces(8)
Display Rental Rate as
- Space
- Size
- Term
- Rental Rate
- Space Use
- Build-Out
- Available
Entire floor available. Space to be rebuilt with a custom floor plan.
- Lease rate does not include utilities, property expenses or building services
- Space In Need of Renovation
- Fully Built-Out as Health Care Space
- Versatile Office/Medical Space
Built out, second generation medical suite. Large lab area, 3 private restrooms.
- Lease rate does not include utilities, property expenses or building services
- Private Restrooms
- Fully Built-Out as Standard Medical Space
- Large lab area, 3 private restrooms.
Built out, second generation medical suite. 6 wet exam rooms, X-Ray, large procedure room.
- Lease rate does not include utilities, property expenses or building services
- Office intensive layout
- Fully Built-Out as Standard Medical Space
- 6 wet exam rooms, X-Ray, large procedure room.
- Lease rate does not include utilities, property expenses or building services
- Fully Built-Out as Standard Medical Space
Built out, second generation medical suite.
- Lease rate does not include utilities, property expenses or building services
- Versatile Medical Space
- Fully Built-Out as Standard Medical Space
Built out, second generation - administrative or consulting office Note: Suites *401-407 can be combined to 5,324 SF
- Lease rate does not include utilities, property expenses or building services
- Second generation - admin/consulting office
- Fully Built-Out as Standard Medical Space
Suite 403 1,928 SF - former infusion/ procedure space Note: Suites *401-407 can be combined to 5,324 SF
- Lease rate does not include utilities, property expenses or building services
- Former infusion/ procedure space
- Partially Built-Out as Standard Medical Space
Built out, second generation medical suite with 8 wet exam rooms, private bath and 2-3 offices. Note: Suites *401-407 can be combined to 5,324 SF
- Lease rate does not include utilities, property expenses or building services
- Private Restrooms
- Fully Built-Out as Standard Medical Space
- 8 wet exam rooms, private bath and 2-3 offices.
| Space | Size | Term | Rental Rate | Space Use | Build-Out | Available |
| 2nd Floor, Ste 200-204 | 14,501 SF | Negotiable | $35.61 CAD/SF/YR $2.97 CAD/SF/MO $516,416 CAD/YR $43,035 CAD/MO | Medical | Full Build-Out | Now |
| 3rd Floor, Ste 300 | 1,482 SF | Negotiable | $35.61 CAD/SF/YR $2.97 CAD/SF/MO $52,778 CAD/YR $4,398 CAD/MO | Medical | Full Build-Out | Now |
| 3rd Floor, Ste 301-303 | 2,889 SF | Negotiable | $35.61 CAD/SF/YR $2.97 CAD/SF/MO $102,884 CAD/YR $8,574 CAD/MO | Medical | Full Build-Out | Now |
| 3rd Floor, Ste 302 | 3,303 SF | Negotiable | $35.61 CAD/SF/YR $2.97 CAD/SF/MO $117,628 CAD/YR $9,802 CAD/MO | Medical | Full Build-Out | Now |
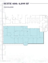
| 4th Floor, Ste 400 | 4,098 SF | Negotiable | $35.61 CAD/SF/YR $2.97 CAD/SF/MO $145,940 CAD/YR $12,162 CAD/MO | Medical | Full Build-Out | Now |
| 4th Floor, Ste 401 | 1,049 SF | Negotiable | $35.61 CAD/SF/YR $2.97 CAD/SF/MO $37,357 CAD/YR $3,113 CAD/MO | Medical | Full Build-Out | Now |
| 4th Floor, Ste 403 | 2,242 SF | Negotiable | $35.61 CAD/SF/YR $2.97 CAD/SF/MO $79,843 CAD/YR $6,654 CAD/MO | Medical | Partial Build-Out | Now |
| 4th Floor, Ste 405-407 | 2,991 SF | Negotiable | $35.61 CAD/SF/YR $2.97 CAD/SF/MO $106,517 CAD/YR $8,876 CAD/MO | Medical | Full Build-Out | Now |
2nd Floor, Ste 200-204
| Size |
| 14,501 SF |
| Term |
| Negotiable |
| Rental Rate |
| $35.61 CAD/SF/YR $2.97 CAD/SF/MO $516,416 CAD/YR $43,035 CAD/MO |
| Space Use |
| Medical |
| Build-Out |
| Full Build-Out |
| Available |
| Now |
3rd Floor, Ste 300
| Size |
| 1,482 SF |
| Term |
| Negotiable |
| Rental Rate |
| $35.61 CAD/SF/YR $2.97 CAD/SF/MO $52,778 CAD/YR $4,398 CAD/MO |
| Space Use |
| Medical |
| Build-Out |
| Full Build-Out |
| Available |
| Now |
3rd Floor, Ste 301-303
| Size |
| 2,889 SF |
| Term |
| Negotiable |
| Rental Rate |
| $35.61 CAD/SF/YR $2.97 CAD/SF/MO $102,884 CAD/YR $8,574 CAD/MO |
| Space Use |
| Medical |
| Build-Out |
| Full Build-Out |
| Available |
| Now |
3rd Floor, Ste 302
| Size |
| 3,303 SF |
| Term |
| Negotiable |
| Rental Rate |
| $35.61 CAD/SF/YR $2.97 CAD/SF/MO $117,628 CAD/YR $9,802 CAD/MO |
| Space Use |
| Medical |
| Build-Out |
| Full Build-Out |
| Available |
| Now |
4th Floor, Ste 400
| Size |
| 4,098 SF |
| Term |
| Negotiable |
| Rental Rate |
| $35.61 CAD/SF/YR $2.97 CAD/SF/MO $145,940 CAD/YR $12,162 CAD/MO |
| Space Use |
| Medical |
| Build-Out |
| Full Build-Out |
| Available |
| Now |
4th Floor, Ste 401
| Size |
| 1,049 SF |
| Term |
| Negotiable |
| Rental Rate |
| $35.61 CAD/SF/YR $2.97 CAD/SF/MO $37,357 CAD/YR $3,113 CAD/MO |
| Space Use |
| Medical |
| Build-Out |
| Full Build-Out |
| Available |
| Now |
4th Floor, Ste 403
| Size |
| 2,242 SF |
| Term |
| Negotiable |
| Rental Rate |
| $35.61 CAD/SF/YR $2.97 CAD/SF/MO $79,843 CAD/YR $6,654 CAD/MO |
| Space Use |
| Medical |
| Build-Out |
| Partial Build-Out |
| Available |
| Now |
4th Floor, Ste 405-407
| Size |
| 2,991 SF |
| Term |
| Negotiable |
| Rental Rate |
| $35.61 CAD/SF/YR $2.97 CAD/SF/MO $106,517 CAD/YR $8,876 CAD/MO |
| Space Use |
| Medical |
| Build-Out |
| Full Build-Out |
| Available |
| Now |
2nd Floor, Ste 200-204
| Size | 14,501 SF |
| Term | Negotiable |
| Rental Rate | $35.61 CAD/SF/YR |
| Space Use | Medical |
| Build-Out | Full Build-Out |
| Available | Now |
Entire floor available. Space to be rebuilt with a custom floor plan.
- Lease rate does not include utilities, property expenses or building services
- Fully Built-Out as Health Care Space
- Space In Need of Renovation
- Versatile Office/Medical Space
3rd Floor, Ste 300
| Size | 1,482 SF |
| Term | Negotiable |
| Rental Rate | $35.61 CAD/SF/YR |
| Space Use | Medical |
| Build-Out | Full Build-Out |
| Available | Now |
Built out, second generation medical suite. Large lab area, 3 private restrooms.
- Lease rate does not include utilities, property expenses or building services
- Fully Built-Out as Standard Medical Space
- Private Restrooms
- Large lab area, 3 private restrooms.
3rd Floor, Ste 301-303
| Size | 2,889 SF |
| Term | Negotiable |
| Rental Rate | $35.61 CAD/SF/YR |
| Space Use | Medical |
| Build-Out | Full Build-Out |
| Available | Now |
Built out, second generation medical suite. 6 wet exam rooms, X-Ray, large procedure room.
- Lease rate does not include utilities, property expenses or building services
- Fully Built-Out as Standard Medical Space
- Office intensive layout
- 6 wet exam rooms, X-Ray, large procedure room.
3rd Floor, Ste 302
| Size | 3,303 SF |
| Term | Negotiable |
| Rental Rate | $35.61 CAD/SF/YR |
| Space Use | Medical |
| Build-Out | Full Build-Out |
| Available | Now |
- Lease rate does not include utilities, property expenses or building services
- Fully Built-Out as Standard Medical Space
4th Floor, Ste 400
| Size | 4,098 SF |
| Term | Negotiable |
| Rental Rate | $35.61 CAD/SF/YR |
| Space Use | Medical |
| Build-Out | Full Build-Out |
| Available | Now |
Built out, second generation medical suite.
- Lease rate does not include utilities, property expenses or building services
- Fully Built-Out as Standard Medical Space
- Versatile Medical Space
4th Floor, Ste 401
| Size | 1,049 SF |
| Term | Negotiable |
| Rental Rate | $35.61 CAD/SF/YR |
| Space Use | Medical |
| Build-Out | Full Build-Out |
| Available | Now |
Built out, second generation - administrative or consulting office Note: Suites *401-407 can be combined to 5,324 SF
- Lease rate does not include utilities, property expenses or building services
- Fully Built-Out as Standard Medical Space
- Second generation - admin/consulting office
4th Floor, Ste 403
| Size | 2,242 SF |
| Term | Negotiable |
| Rental Rate | $35.61 CAD/SF/YR |
| Space Use | Medical |
| Build-Out | Partial Build-Out |
| Available | Now |
Suite 403 1,928 SF - former infusion/ procedure space Note: Suites *401-407 can be combined to 5,324 SF
- Lease rate does not include utilities, property expenses or building services
- Partially Built-Out as Standard Medical Space
- Former infusion/ procedure space
4th Floor, Ste 405-407
| Size | 2,991 SF |
| Term | Negotiable |
| Rental Rate | $35.61 CAD/SF/YR |
| Space Use | Medical |
| Build-Out | Full Build-Out |
| Available | Now |
Built out, second generation medical suite with 8 wet exam rooms, private bath and 2-3 offices. Note: Suites *401-407 can be combined to 5,324 SF
- Lease rate does not include utilities, property expenses or building services
- Fully Built-Out as Standard Medical Space
- Private Restrooms
- 8 wet exam rooms, private bath and 2-3 offices.
Property Overview
Renovations coming soon: All new lobby and new building facade (planned for 2026). Five story medical office building with covered patient drop off lanes and ample surface parking. Located adjacent to HCA Florida St. Lucie Medical Center, a 229-bed hospital serving Florida’s Treasure Coast community for over 30 years Located next to St. Lucie Surgery Center Strong provider mix, wide demographic patient base and on-site pharmacy 2nd generation, built-out medical offices from +/- 1,000 - 11,000 SF. Spaces available for immediate occupancy
- 24 Hour Access
- Controlled Access
- Air Conditioning
Property Facts
Presented by
Heart & Family Institute | 1700 SE Hillmoor Dr
Hmm, there seems to have been an error sending your message. Please try again.
Thanks! Your message was sent.

















