Log In/Sign Up
Your email has been sent.
Highlights
- Traffic Count 13,691 AADT
Features
Drive In Bays
5
Exterior Dock Doors
1
Levelers
1
Standard Parking Spaces
15
All Available Space(1)
Display Rental Rate as
- Space
- Size
- Term
- Rental Rate
- Space Use
- Build-Out
- Available
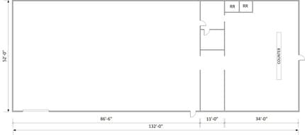
Former NAPA Auto Parts store, features 6,900/SF retail and warehouse.
- Listed rate may not include certain utilities, building services and property expenses
- 1 Drive Bay
| Space | Size | Term | Rental Rate | Space Use | Build-Out | Available |
| 1st Floor | 6,900 SF | Negotiable | $10.30 CAD/SF/YR $0.86 CAD/SF/MO $71,091 CAD/YR $5,924 CAD/MO | Industrial | - | Now |
1st Floor
| Size |
| 6,900 SF |
| Term |
| Negotiable |
| Rental Rate |
| $10.30 CAD/SF/YR $0.86 CAD/SF/MO $71,091 CAD/YR $5,924 CAD/MO |
| Space Use |
| Industrial |
| Build-Out |
| - |
| Available |
| Now |
1 of 1
Videos
Matterport 3D Exterior
Matterport 3D Tour
Photos
Street View
Street
Map
1st Floor
| Size | 6,900 SF |
| Term | Negotiable |
| Rental Rate | $10.30 CAD/SF/YR |
| Space Use | Industrial |
| Build-Out | - |
| Available | Now |
Former NAPA Auto Parts store, features 6,900/SF retail and warehouse.
- Listed rate may not include certain utilities, building services and property expenses
- 1 Drive Bay
Property Overview
Prime Lincoln Way frontage with excellent visibility, traffic count, and prominent signage. • Multiple uses include: contractor supply, equipment rental, ecommerce fulfillment, retail, and more. • No drains in warehouse, no auto-body or mechanic shops need inquire.
Warehouse Facility Facts
Building Size
18,943 SF
Lot Size
2.33 AC
Year Built/Renovated
1953/1978
Construction
Masonry
Water
City
Sewer
City
Heating
Gas
Zoning
B-1
1 1
Fairly walkable
40/100
Exceptionally drivable
100/100
Limited public transit
30/100
Fairly bikeable
40/100
1 of 5
Videos
Matterport 3D Exterior
Matterport 3D Tour
Photos
Street View
Street
Map
1 of 1
Presented by
1709 Lincoln Way E
Already a member? Log In
Hmm, there seems to have been an error sending your message. Please try again.
Thanks! Your message was sent.





