Your email has been sent.
1745 S Highland Ave - Medical Offices 1,245 - 2,697 SF Office/Medical Condo Units Offered at $388,808 - $839,008 CAD Per Unit in Clearwater, FL 33756



Investment Highlights
- Medical Buildout
- Plenty of Free Surface Parking
- Multiple Treatment Rooms
- Ready to Occupy
- 4 Exam Rooms with Sinks
- Offices and Consultation Areas
Executive Summary
Purpose Built Medical Building. Plenty of parking with Doctor and staff parking in rear of building. Hospital nearby.
3 Units Available
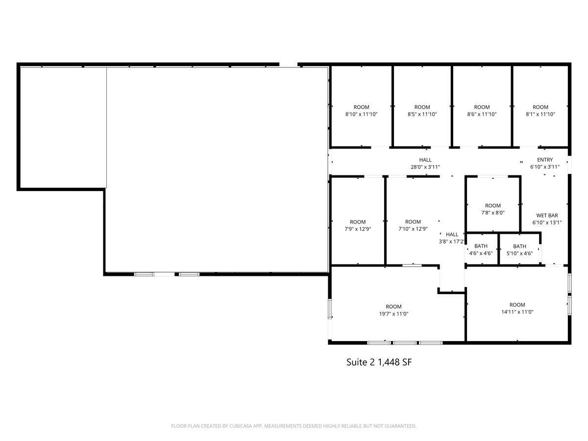
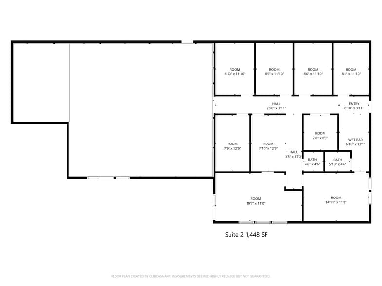
Unit 2
| Unit Size | 1,448 SF | Condo Use | Office/Medical |
| Price | $450,199 CAD | Sale Type | Investment or Owner User |
| Price Per SF | $310.91 CAD | APN/Parcel ID | 26-29-15-56994-000-0020 |
| Unit Size | 1,448 SF |
| Price | $450,199 CAD |
| Price Per SF | $310.91 CAD |
| Condo Use | Office/Medical |
| Sale Type | Investment or Owner User |
| APN/Parcel ID | 26-29-15-56994-000-0020 |
Description
Great Chance to Own this unit. Excellent Floor Plan. Ready for your personal touch. Reception area, Large work station, Multiple Exam Rooms with Sinks, Two Restrooms, Rear Exit Door, Separate Staff and Doctor Parking.
Suitable for Medical or Professional Offices. Low Condo Fees.
Sale Notes
Stop Leasing and Start Owning
Floor Plan Suite 2
Unit 2 & 4
| Unit Size | 2,697 SF | Condo Use | Office/Medical |
| Price | $839,008 CAD | Sale Type | Investment or Owner User |
| Price Per SF | $311.09 CAD |
| Unit Size | 2,697 SF |
| Price | $839,008 CAD |
| Price Per SF | $311.09 CAD |
| Condo Use | Office/Medical |
| Sale Type | Investment or Owner User |
Description
Medical Condos in Great Location. All professional offices. Unit 2 & Unit 4. Currently adjoined units, can easily be separated into 2 units.
Sale Notes
Fully built, Second Generation Medical offices, complete with sinks in Exam rooms.
Sale comprises Suites 2 & 4, which are adjoining. Occupy all or lease part of your space while your practice grows.
Great Layout with Plenty of Parking. Turn key units
399A1599
2D Floor Plan for 1745 South Highland Avenue
399A1815
DJI_20251017102853_0621_D
DJI_20251017103458_0625_D
399A1605
399A1794
399A1671
399A1749
399A1737
399A1689
399A1695
399A1758
DJI_20251017103413_0623_D
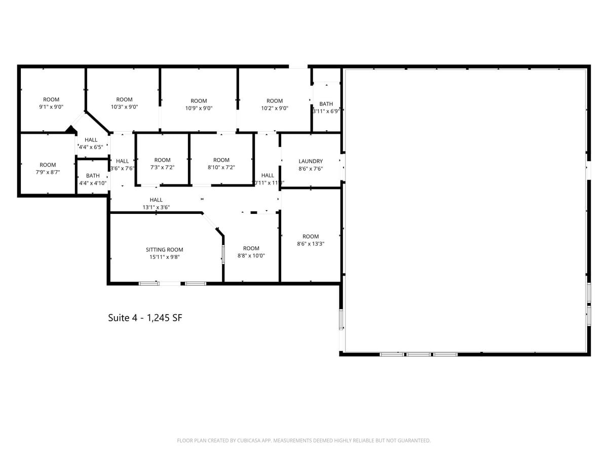
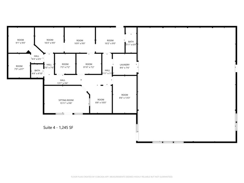
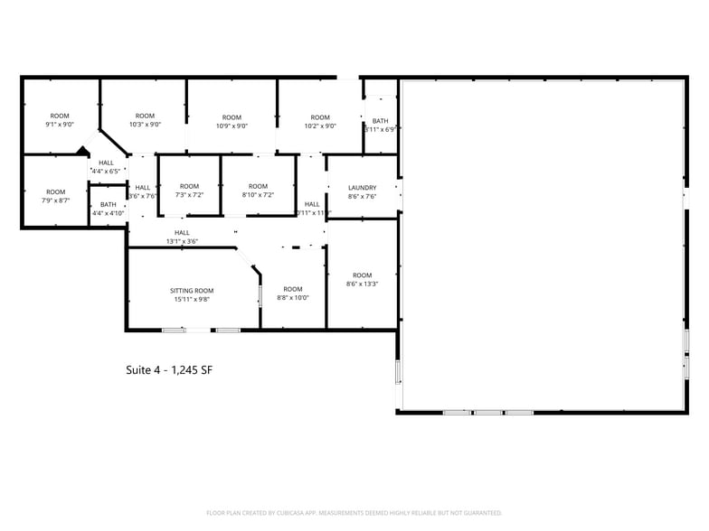
Unit 4
| Unit Size | 1,245 SF | Condo Use | Office/Medical |
| Price | $388,808 CAD | Sale Type | Investment or Owner User |
| Price Per SF | $312.30 CAD | APN/Parcel ID | 26-29-15-56994-000-0040 |
| Unit Size | 1,245 SF |
| Price | $388,808 CAD |
| Price Per SF | $312.30 CAD |
| Condo Use | Office/Medical |
| Sale Type | Investment or Owner User |
| APN/Parcel ID | 26-29-15-56994-000-0040 |
Description
Great Opportunity to own this Reasonable Priced Medical or Professional Services condo. Plenty of Parking. Low Condo Fees. Reception area, Office, 6 rooms, 2 restrooms, laundry room. Rear exit. Ample parking plus staff and doctor parking area.
Sale Notes
Stop Leasing - Start Owning
Floor Plan Suite 4
Floor Plan Suite 4
Property Facts
| Total Building Size | 7,900 SF | Typical Floor Size | 7,900 SF |
| Property Type | Office | Year Built | 1980 |
| Property Subtype | Medical | Lot Size | 0.99 AC |
| Building Class | C | Parking Ratio | 7.09/1,000 SF |
| Floors | 1 | ||
| Zoning | Condo - 6-Unit Condo ROG Residential Office General | ||
| Total Building Size | 7,900 SF |
| Property Type | Office |
| Property Subtype | Medical |
| Building Class | C |
| Floors | 1 |
| Typical Floor Size | 7,900 SF |
| Year Built | 1980 |
| Lot Size | 0.99 AC |
| Parking Ratio | 7.09/1,000 SF |
| Zoning | Condo - 6-Unit Condo ROG Residential Office General |
Amenities
- 24 Hour Access
- Courtyard
- Signage
- Kitchen
- Reception
- Central Heating
- Partitioned Offices
- Drop Ceiling
- Air Conditioning
Presented by
1745 S Highland Ave - Medical Offices
Hmm, there seems to have been an error sending your message. Please try again.
Thanks! Your message was sent.



