Log In/Sign Up
Your email has been sent.
Investment Highlights
- Ideal for warehousing, distribution, and light industrial operations with a clean layout and efficient functionality.
- Supports high-stack racking, increased storage capacity, and optimized operational flow
- Enhances convenience and accessibility within the business park
- Includes reception area, multiple private offices, and restrooms—perfect for administrative, management, or customer-facing needs.
- Provides excellent loading flexibility for a variety of trucking and logistics requirements
- Just 2.3 miles from the I-10, surrounded by nearby retail amenities, improving employee convenience and supporting business operations.
Executive Summary
The property at 1750-1780 Foothill Blvd. in Upland, California, is part of the MVP Foothill Business Park, offering industrial spaces suitable for various business needs. The business park has ample surface parking, enhancing accessibility for tenants and visitors. The property’s location is approximately 2.3 miles from the 10 Freeway, facilitating convenient transportation access. The location also offers numerous retail amenities nearby.
Property Facts
| Sale Type | Investment or Owner User | Construction Status | Proposed |
| Property Type | Industrial | Rentable Building Area | 42,350 SF |
| Building Class | B | No. Stories | 1 |
| Zoning | MU - Mixed Use | ||
| Sale Type | Investment or Owner User |
| Property Type | Industrial |
| Building Class | B |
| Construction Status | Proposed |
| Rentable Building Area | 42,350 SF |
| No. Stories | 1 |
| Zoning | MU - Mixed Use |
Space Availability
- Space
- Size
- Space Use
- Build-Out
- Available
Easy Access to the 10 Fwy
| Space | Size | Space Use | Build-Out | Available |
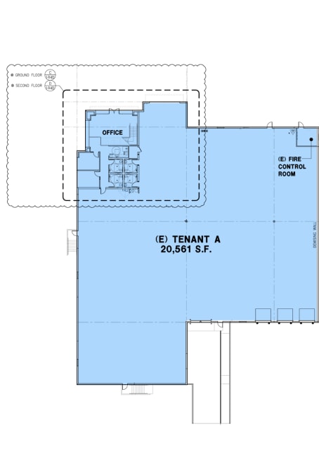
| 1st Fl - A | 20,561 SF | Industrial | Shell Space | To Be Determined |
| 1st Fl - B | 21,789 SF | Industrial | Shell Space | To Be Determined |
1st Fl - A
| Size |
| 20,561 SF |
| Space Use |
| Industrial |
| Build-Out |
| Shell Space |
| Available |
| To Be Determined |
1st Fl - B
| Size |
| 21,789 SF |
| Space Use |
| Industrial |
| Build-Out |
| Shell Space |
| Available |
| To Be Determined |
1 of 3
Videos
Matterport 3D Exterior
Matterport 3D Tour
Photos
Street View
Street
Map
1st Fl - A
| Size | 20,561 SF |
| Space Use | Industrial |
| Build-Out | Shell Space |
| Available | To Be Determined |
Easy Access to the 10 Fwy
1 of 3
Videos
Matterport 3D Exterior
Matterport 3D Tour
Photos
Street View
Street
Map
1st Fl - B
| Size | 21,789 SF |
| Space Use | Industrial |
| Build-Out | Shell Space |
| Available | To Be Determined |
1 1
Fairly walkable
50/100
Exceptionally drivable
100/100
Limited public transit
30/100
Somewhat bikeable
20/100
Property Taxes
| Parcel Number | 1007-091-01 | Improvements Assessment | $1,258,359 CAD |
| Land Assessment | $4,362,887 CAD | Total Assessment | $5,621,245 CAD |
Property Taxes
Parcel Number
1007-091-01
Land Assessment
$4,362,887 CAD
Improvements Assessment
$1,258,359 CAD
Total Assessment
$5,621,245 CAD
1 of 2
Videos
Matterport 3D Exterior
Matterport 3D Tour
Photos
Street View
Street
Map
1 of 1
Presented by
1774 NW Foothill Blvd
Already a member? Log In
Hmm, there seems to have been an error sending your message. Please try again.
Thanks! Your message was sent.







