Your email has been sent.
Park Highlights
- Rear-Load Configuration
- Ample Parking
- Concrete Truck Ramp
- 32' Clear Height
- Dock-High Loading
- ESFR Fire Protection
Park Facts
| Total Space Available | 129,885 SF | Features | Storage Space |
| Park Type | Industrial Park |
| Total Space Available | 129,885 SF |
| Park Type | Industrial Park |
| Features | Storage Space |
Features and Amenities
- Storage Space
All Available Spaces(2)
Display Rental Rate as
- Space
- Size
- Term
- Rental Rate
- Space Use
- Build-Out
- Available
- Lease rate does not include utilities, property expenses or building services
- 1 Drive Bay
- 8 Loading Docks
- 40 parking spaces
- ±50’-8’x42’-0’ column spacing with 60’ Speed Bays
- 32’ Clear Height
- Includes 3,925 SF of dedicated office space
- Space is in Excellent Condition
- 8 9’x10’ dock-high doors (2 with levelers)
- LED lighting
- ESFR fire suppression system
| Space | Size | Term | Rental Rate | Space Use | Build-Out | Available |
| 1st Floor - 130 | 53,011 SF | Negotiable | Upon Request Upon Request Upon Request Upon Request | Industrial | - | Now |
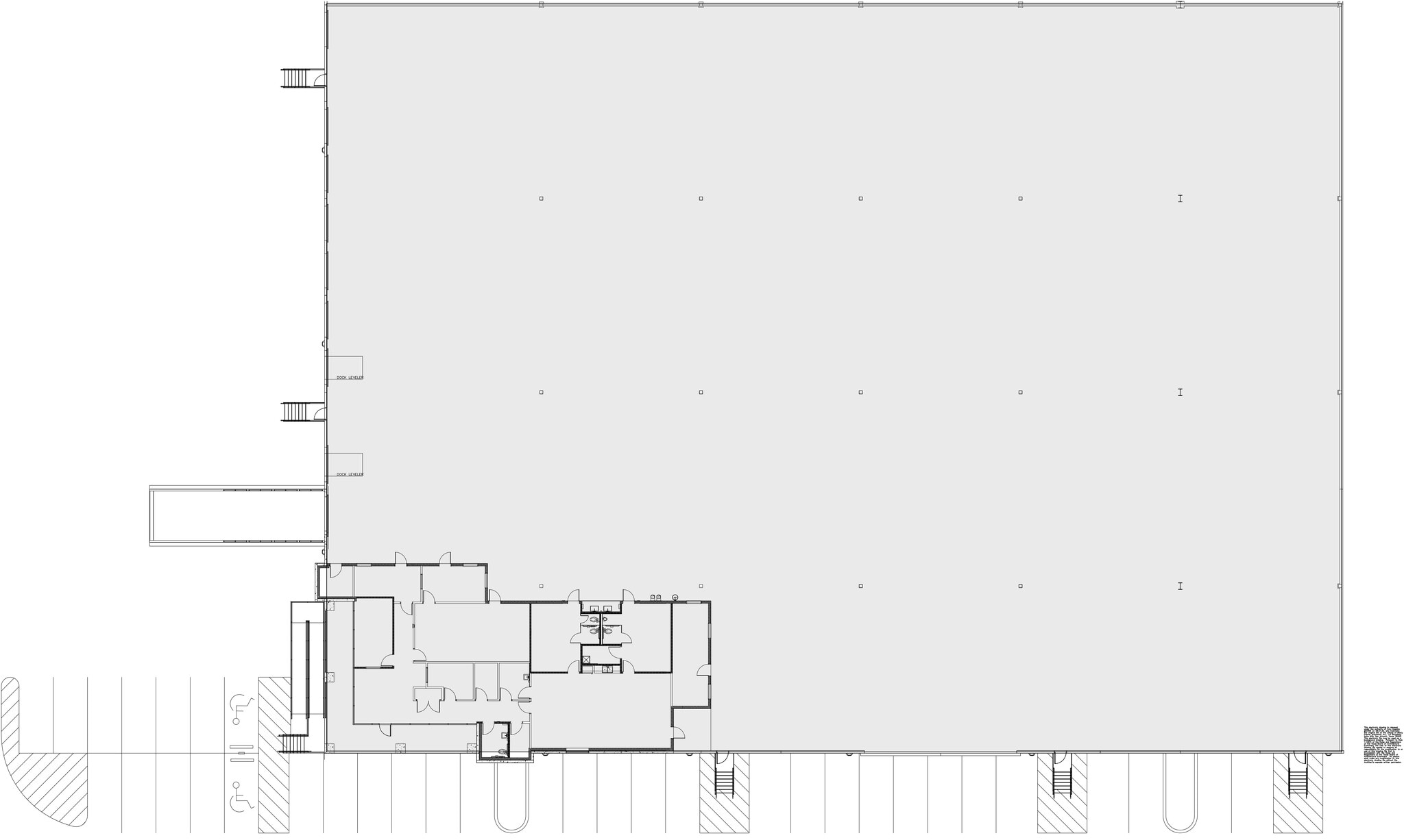
17745 Lookout Rd - 1st Floor - 130
- Space
- Size
- Term
- Rental Rate
- Space Use
- Build-Out
- Available
- Lease rate does not include utilities, property expenses or building services
- Space is in Excellent Condition
- 18 9’x10’ dock-high doors
- ±50’-8’x42’-0’ column spacing with 60’ Speed Bays
- 32' Clear Height
- Includes 2,880 SF of dedicated office space
- 18 Loading Docks
- LED lighting
- ESFR fire suppression system
| Space | Size | Term | Rental Rate | Space Use | Build-Out | Available |
| 1st Floor - 210 | 76,874 SF | Negotiable | Upon Request Upon Request Upon Request Upon Request | Industrial | - | Now |
17745 Lookout Rd - 1st Floor - 210
17745 Lookout Rd - 1st Floor - 130
| Size | 53,011 SF |
| Term | Negotiable |
| Rental Rate | Upon Request |
| Space Use | Industrial |
| Build-Out | - |
| Available | Now |
- Lease rate does not include utilities, property expenses or building services
- Includes 3,925 SF of dedicated office space
- 1 Drive Bay
- Space is in Excellent Condition
- 8 Loading Docks
- 8 9’x10’ dock-high doors (2 with levelers)
- 40 parking spaces
- LED lighting
- ±50’-8’x42’-0’ column spacing with 60’ Speed Bays
- ESFR fire suppression system
- 32’ Clear Height
17745 Lookout Rd - 1st Floor - 210
| Size | 76,874 SF |
| Term | Negotiable |
| Rental Rate | Upon Request |
| Space Use | Industrial |
| Build-Out | - |
| Available | Now |
- Lease rate does not include utilities, property expenses or building services
- Includes 2,880 SF of dedicated office space
- Space is in Excellent Condition
- 18 Loading Docks
- 18 9’x10’ dock-high doors
- LED lighting
- ±50’-8’x42’-0’ column spacing with 60’ Speed Bays
- ESFR fire suppression system
- 32' Clear Height
Park Overview
Enterprise Industrial Park – Your Gateway to Prime Industrial Space in Schertz, Texas! Enterprise Industrial Park is strategically situated at 17745 Lookout Road in Schertz, Texas. With meticulous planning and state-of-the-art amenities, this master-planned business park offers the perfect environment for your Cross-Dock & Front-Load Distribution/Mfg needs. This park offers exceptional space equipped with corner and center located offices, 32' clear height warehouse, and 60' deep staging bays on each side, this building is designed to elevate your business to new heights. Additionally, it offers dock-high loading. The central entry drive off Lookout Road ensures easy access to major transportation arteries, including I-35, Loop 1604, and I-10, streamlining your logistics and connectivity. Whether you seek expansion, relocation, or a fresh start, our industrial spaces cater to your every need. Call us for a tour today!
Presented by
Enterprise Industrial Park | Schertz, TX 78154
Hmm, there seems to have been an error sending your message. Please try again.
Thanks! Your message was sent.








