Your email has been sent.
Park Facts
| Total Space Available | 11,850 SF | Park Type | Industrial Park |
| Total Space Available | 11,850 SF |
| Park Type | Industrial Park |
All Available Spaces(2)
Display Rental Rate as
- Space
- Size
- Term
- Rental Rate
- Space Use
- Build-Out
- Available
Available Space: ±5,100 SF Warehouse SF: ±4,386 SF Office: ±714 SF Eave Height: ±22´ Loading: Two (2) 16' x 14' grade-level doors Power: 3 Phase / 120 / 208 volt Construction: Metal Location: Easy access to Grand Parkway (99) & US-290 Lease Rate: Call For Information
- Includes 714 SF of dedicated office space
| Space | Size | Term | Rental Rate | Space Use | Build-Out | Available |
| 1st Floor | 5,100 SF | Negotiable | Upon Request Upon Request Upon Request Upon Request | Industrial | - | 30 Days |
17761 Grant Rd - 1st Floor
- Space
- Size
- Term
- Rental Rate
- Space Use
- Build-Out
- Available
Building SF: ±6,750 SF Warehouse SF ±5,950 SF Office SF: ±800 SF Eave Height: ±22' Loading: One (1) dock-well One (1) grade level door Power: 3-phase Construction: Metal Location: Easy access to Grand Parkway (99) & US- 290 Lease Rate: Call for information
- Includes 800 SF of dedicated office space
- 1 Loading Dock
- 1 Drive Bay
- Easy access to Grand Parkway (99) & US- 290
| Space | Size | Term | Rental Rate | Space Use | Build-Out | Available |
| 1st Floor | 6,750 SF | Negotiable | Upon Request Upon Request Upon Request Upon Request | Industrial | - | Now |
17765 Grant Rd - 1st Floor
17761 Grant Rd - 1st Floor
| Size | 5,100 SF |
| Term | Negotiable |
| Rental Rate | Upon Request |
| Space Use | Industrial |
| Build-Out | - |
| Available | 30 Days |
Available Space: ±5,100 SF Warehouse SF: ±4,386 SF Office: ±714 SF Eave Height: ±22´ Loading: Two (2) 16' x 14' grade-level doors Power: 3 Phase / 120 / 208 volt Construction: Metal Location: Easy access to Grand Parkway (99) & US-290 Lease Rate: Call For Information
- Includes 714 SF of dedicated office space
17765 Grant Rd - 1st Floor
| Size | 6,750 SF |
| Term | Negotiable |
| Rental Rate | Upon Request |
| Space Use | Industrial |
| Build-Out | - |
| Available | Now |
Building SF: ±6,750 SF Warehouse SF ±5,950 SF Office SF: ±800 SF Eave Height: ±22' Loading: One (1) dock-well One (1) grade level door Power: 3-phase Construction: Metal Location: Easy access to Grand Parkway (99) & US- 290 Lease Rate: Call for information
- Includes 800 SF of dedicated office space
- 1 Drive Bay
- 1 Loading Dock
- Easy access to Grand Parkway (99) & US- 290
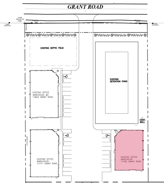
Site Plan
Park Overview
Building 1: LEASED Building 2: LEASED Building 3: 17777 Grant Road ±4,500 SF, Two (2)16’x14’ overhead doors Building 4: LEASED Building 5: LEASED Building 6: LEASED Power: 3-phase Construction: Metal Lease Rate: Call for information
Presented by
Grant Road Business Park | Cypress, TX 77429
Hmm, there seems to have been an error sending your message. Please try again.
Thanks! Your message was sent.










