Log In/Sign Up
Your email has been sent.
Investment Highlights
- Ideal for warehousing, distribution, and light industrial operations with a clean layout and efficient functionality.
- Supports high-stack racking, increased storage capacity, and optimized operational flow.
- Enhances convenience and accessibility within the business park.
- Includes reception area, multiple private offices, and restrooms—perfect for administrative, management, or customer-facing needs.
- Provides excellent loading flexibility for a variety of trucking and logistics requirements.
- Just 2.3 miles from the I-10, surrounded by nearby retail amenities, improving employee convenience and supporting business operations.
Executive Summary
The property at 1750-1780 Foothill Blvd. in Upland, California, is part of the MVP Foothill Business Park, offering industrial spaces suitable for various business needs. The business park has ample surface parking, enhancing accessibility for tenants and visitors.
Property Facts
| Sale Type | Investment or Owner User | Construction Status | Proposed |
| Property Type | Industrial | Rentable Building Area | 51,959 SF |
| Building Class | B | No. Stories | 1 |
| Zoning | MU - Mixed Use | ||
| Sale Type | Investment or Owner User |
| Property Type | Industrial |
| Building Class | B |
| Construction Status | Proposed |
| Rentable Building Area | 51,959 SF |
| No. Stories | 1 |
| Zoning | MU - Mixed Use |
Space Availability
- Space
- Size
- Space Use
- Build-Out
- Available
| Space | Size | Space Use | Build-Out | Available |
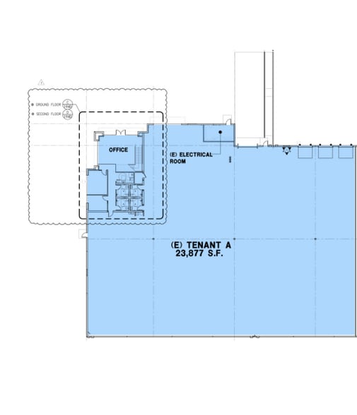
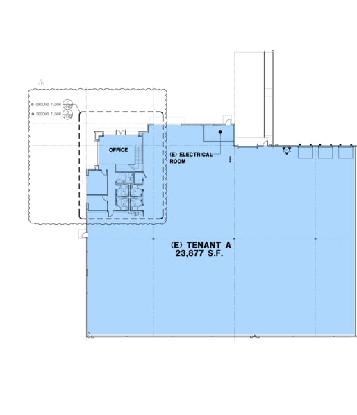
| 1st Fl - A | 23,877 SF | Industrial | Shell Space | To Be Determined |
| 1st Fl - B | 28,082 SF | Industrial | Shell Space | Now |
1st Fl - A
| Size |
| 23,877 SF |
| Space Use |
| Industrial |
| Build-Out |
| Shell Space |
| Available |
| To Be Determined |
1st Fl - B
| Size |
| 28,082 SF |
| Space Use |
| Industrial |
| Build-Out |
| Shell Space |
| Available |
| Now |
1 of 3
Videos
Matterport 3D Exterior
Matterport 3D Tour
Photos
Street View
Street
Map
1st Fl - A
| Size | 23,877 SF |
| Space Use | Industrial |
| Build-Out | Shell Space |
| Available | To Be Determined |
1 of 4
Videos
Matterport 3D Exterior
Matterport 3D Tour
Photos
Street View
Street
Map
1st Fl - B
| Size | 28,082 SF |
| Space Use | Industrial |
| Build-Out | Shell Space |
| Available | Now |
1 1
Fairly walkable
50/100
Exceptionally drivable
90/100
Limited public transit
30/100
Fairly bikeable
40/100
Property Taxes
| Parcel Number | 1007-091-01 | Improvements Assessment | $1,273,466 CAD |
| Land Assessment | $4,415,266 CAD | Total Assessment | $5,688,732 CAD |
Property Taxes
Parcel Number
1007-091-01
Land Assessment
$4,415,266 CAD
Improvements Assessment
$1,273,466 CAD
Total Assessment
$5,688,732 CAD
1 of 4
Videos
Matterport 3D Exterior
Matterport 3D Tour
Photos
Street View
Street
Map
1 of 1
Presented by
1780 W Foothill Blvd
Already a member? Log In
Hmm, there seems to have been an error sending your message. Please try again.
Thanks! Your message was sent.









