Your email has been sent.
Former Panera Bread | 4,849 SF End-Cap 1781 Dunlawton Ave 4,849 SF of Retail Space Available in Port Orange, FL 32127



Highlights
- 4,849 SF former Panera end-cap with outdoor seating
- Strong co-tenancy with Target, Lowe’s, Chick-fil-A, Starbucks, and others
- Divisible space with excellent visibility and LED signage
- Ideal for restaurant, retail, medical, or fitness users
Space Availability (1)
Display Rental Rate as
- Space
- Size
- Term
- Rental Rate
- Rent Type
| Space | Size | Term | Rental Rate | Rent Type | ||
| 1st Floor, Ste 4 | 4,849 SF | Negotiable | $61.55 CAD/SF/YR $5.13 CAD/SF/MO $298,435 CAD/YR $24,870 CAD/MO | Triple Net (NNN) |
1st Floor, Ste 4
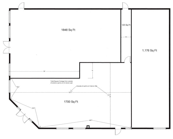
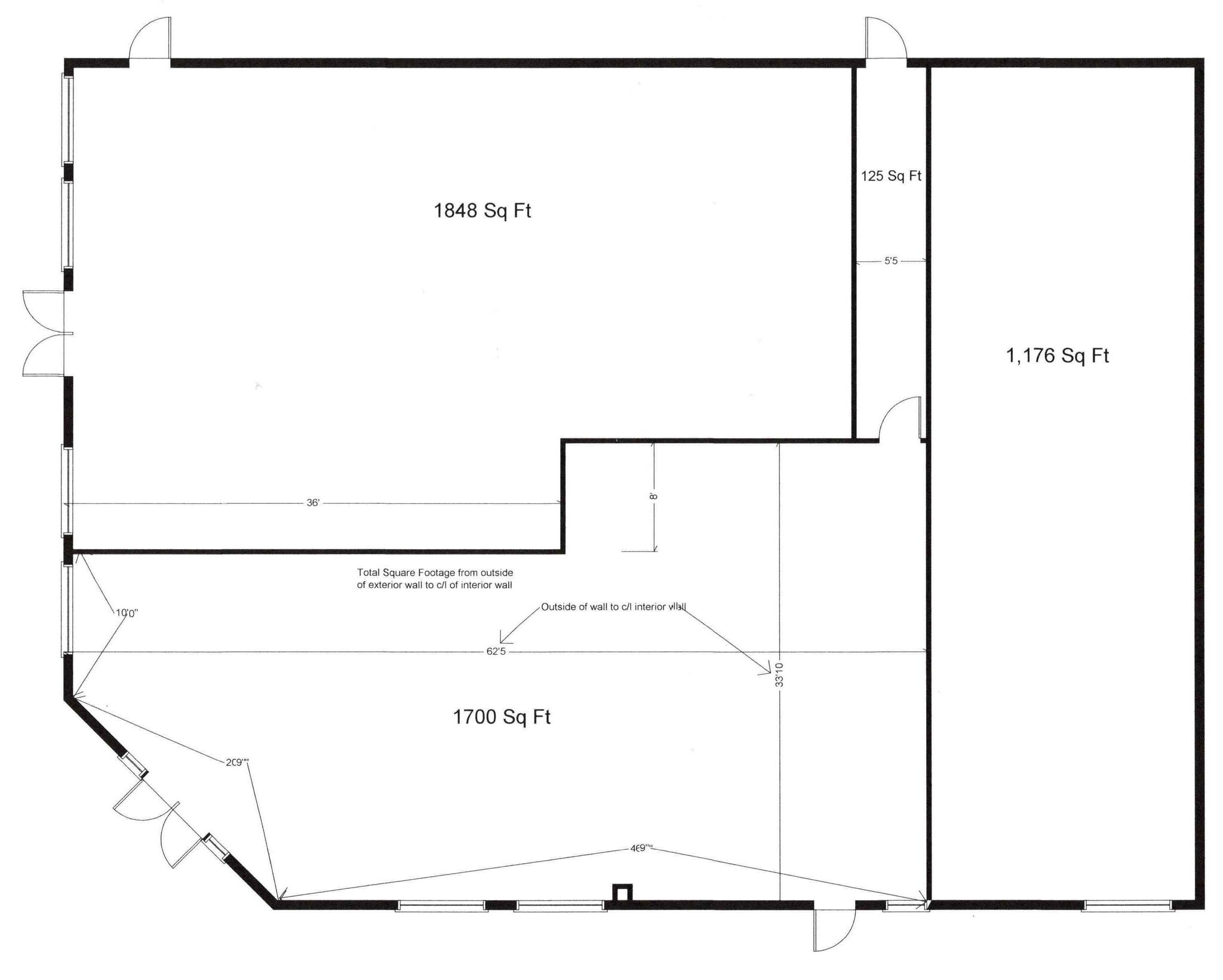
Former Panera Bread for Lease in Port Orange Gateway Center. This 4,849 SF end-cap space with outdoor seating is located on high-traffic Dunlawton Avenue in a wellpositioned shopping center just off I-95. May be divided into smaller spaces ranging from 1,100 to 1,700 SF. High-visibility location for restaurant, retail, medical, fitness, showroom, or other uses. The property has direct frontage and signage, including an LED message board. Co-tenants include Hand & Stone, Great Clips, Pizza Hut, Tropical Smoothie Cafe, and Thai Kitchen by Saowanee. Outparcel to Target and Lowe’s and adjacent to Chick-fil-A, First Watch, Chipotle, Starbucks, and others, driving strong daily traffic and brand exposure. Front and rear parking available. Estimated CAM, Real Estate Taxes, and Insurance $13.35 per SF. LOCATION DESCRIPTION Located on Dunlawton Avenue, Port Orange’s primary eastwest corridor just east of I-95, with immediate access via the Dunlawton interchange.
- Lease rate does not include utilities, property expenses or building services
- Fully Built-Out as a Restaurant or Café Space
- Highly Desirable End Cap Space
- 4,849 SF former Panera end-cap w/ outdoor seating
- Divisible space with excellent visibility and LED
- Strong co-tenancy with Target, Lowe’s, Chick-fil-A
- Ideal for restaurant, retail, medical, or fitness
Rent Types
The rent amount and type that the tenant (lessee) will be responsible to pay to the landlord (lessor) throughout the lease term is negotiated prior to both parties signing a lease agreement. The rent type will vary depending upon the services provided. For example, triple net rents are typically lower than full service rents due to additional expenses the tenant is required to pay in addition to the base rent. Contact the listing broker for a full understanding of any associated costs or additional expenses for each rent type.
1. Full Service: A rental rate that includes normal building standard services as provided by the landlord within a base year rental.
2. Double Net (NN): Tenant pays for only two of the building expenses; the landlord and tenant determine the specific expenses prior to signing the lease agreement.
3. Triple Net (NNN): A lease in which the tenant is responsible for all expenses associated with their proportional share of occupancy of the building.
4. Modified Gross: Modified Gross is a general type of lease rate where typically the tenant will be responsible for their proportional share of one or more of the expenses. The landlord will pay the remaining expenses. See the below list of common Modified Gross rental rate structures: 4. Plus All Utilities: A type of Modified Gross Lease where the tenant is responsible for their proportional share of utilities in addition to the rent. 4. Plus Cleaning: A type of Modified Gross Lease where the tenant is responsible for their proportional share of cleaning in addition to the rent. 4. Plus Electric: A type of Modified Gross Lease where the tenant is responsible for their proportional share of the electrical cost in addition to the rent. 4. Plus Electric & Cleaning: A type of Modified Gross Lease where the tenant is responsible for their proportional share of the electrical and cleaning cost in addition to the rent. 4. Plus Utilities and Char: A type of Modified Gross Lease where the tenant is responsible for their proportional share of the utilities and cleaning cost in addition to the rent. 4. Industrial Gross: A type of Modified Gross lease where the tenant pays one or more of the expenses in addition to the rent. The landlord and tenant determine these prior to signing the lease agreement.
5. Tenant Electric: The landlord pays for all services and the tenant is responsible for their usage of lights and electrical outlets in the space they occupy.
6. Negotiable or Upon Request: Used when the leasing contact does not provide the rent or service type.
7. TBD: To be determined; used for buildings for which no rent or service type is known, commonly utilized when the buildings are not yet built.
Select Tenants at Former Panera Bread | 4,849 SF End-Cap
- Tenant
- Description
- US Locations
- Reach
- Classy Nails
- Salon/Barber/Spa
- 1
- -
- Hand & Stone Massage and Facial Spa
- Massage
- 790
- International
- Panera Bread
- Bakery
- 2,830
- International
- Pizza Hut
- Pizza
- 8,466
- International
- Thai Kitchen By Saowannee
- -
- 1
- -
- Tropical Smoothie Cafe
- Fast-food
- 2,046
- National
| Tenant | Description | US Locations | Reach |
| Classy Nails | Salon/Barber/Spa | 1 | - |
| Hand & Stone Massage and Facial Spa | Massage | 790 | International |
| Panera Bread | Bakery | 2,830 | International |
| Pizza Hut | Pizza | 8,466 | International |
| Thai Kitchen By Saowannee | - | 1 | - |
| Tropical Smoothie Cafe | Fast-food | 2,046 | National |
Property Facts
| Total Space Available | 4,849 SF | Total Land Area | 1.61 AC |
| Property Type | Retail | Year Built | 2005 |
| Gross Leasable Area | 14,092 SF | Parking Ratio | 7.67/1,000 SF |
| Total Space Available | 4,849 SF |
| Property Type | Retail |
| Gross Leasable Area | 14,092 SF |
| Total Land Area | 1.61 AC |
| Year Built | 2005 |
| Parking Ratio | 7.67/1,000 SF |
About the Property
Former Panera Bread for Lease in Port Orange Gateway Center. This 4,849 SF end-cap space with outdoor seating is located on high-traffic Dunlawton Avenue in a wellpositioned shopping center just off I-95. May be divided into smaller spaces ranging from 1,100 to 1,700 SF. High-visibility location for restaurant, retail, medical, fitness, showroom, or other uses. The property has direct frontage and signage, including an LED message board. Co-tenants include Hand & Stone, Great Clips, Pizza Hut, Tropical Smoothie Cafe, and Thai Kitchen by Saowanee. Outparcel to Target and Lowe’s and adjacent to Chick-fil-A, First Watch, Chipotle, Starbucks, and others, driving strong daily traffic and brand exposure. Front and rear parking available. Estimated CAM, Real Estate Taxes, and Insurance $13.35 per SF. LOCATION DESCRIPTION Located on Dunlawton Avenue, Port Orange’s primary eastwest corridor just east of I-95, with immediate access via the Dunlawton interchange.
- Bus Line
- Dedicated Turn Lane
- Freeway Visibility
- Pylon Sign
- Signage
Nearby Major Retailers
Presented by
Former Panera Bread | 4,849 SF End-Cap | 1781 Dunlawton Ave
Hmm, there seems to have been an error sending your message. Please try again.
Thanks! Your message was sent.


