Your email has been sent.
Park Highlights
- All units have a private ground level, at-grade entry
- Immediate access to the Capital Beltway (I-495) and Route 202 (Landover Road)
- Located in the rapidly growing Largo market, with UM Capital Region Medical Center
- Served by public transit, including Downtown Largo Metro Station (Blue/Silver Lines) and regional bus lines
Park Facts
| Total Space Available | 4,642 SF | Park Type | Office Park |
| Total Space Available | 4,642 SF |
| Park Type | Office Park |
All Available Spaces(2)
Display Rental Rate as
- Space
- Size
- Term
- Rental Rate
- Space Use
- Build-Out
- Available
Three office condos (Units 1801-1809) totaling 5,784± SF. Well-maintained business condo park, ideal for small office users. Private exterior entrances. Located in the rapidly growing Largo market, with Northwest Stadium and UM. Capital Region Medical Center. Near numerous amenities, including restaurants, shopping, hotels, medical, professional services and entertainment venues. Immediate access to the Capital Beltway (I-495) and Route 202 (Landover Road). Served by public transit, including Downtown Largo Metro Station (Blue/Silver Lines) and regional bus lines.
- Fully Built-Out as Standard Office
- Private exterior entrances
- Mostly Open Floor Plan Layout
Three office condos (Units 1801-1809) totaling 5,784± SF. Well-maintained business condo park, ideal for small office users. Private exterior entrances. Located in the rapidly growing Largo market, with Northwest Stadium and UM. Capital Region Medical Center. Near numerous amenities, including restaurants, shopping, hotels, medical, professional services and entertainment venues. Immediate access to the Capital Beltway (I-495) and Route 202 (Landover Road). Served by public transit, including Downtown Largo Metro Station (Blue/Silver Lines) and regional bus lines.
- Fully Built-Out as Standard Office
- Private exterior entrances
- Mostly Open Floor Plan Layout
| Space | Size | Term | Rental Rate | Space Use | Build-Out | Available |
| 1st Floor, Ste 1801 | 3,500 SF | Negotiable | Upon Request Upon Request Upon Request Upon Request | Office | Full Build-Out | 30 Days |
| 1st Floor, Ste 1807 | 1,142 SF | Negotiable | Upon Request Upon Request Upon Request Upon Request | Office | Full Build-Out | 30 Days |
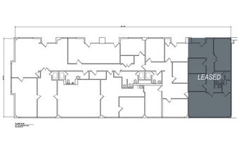
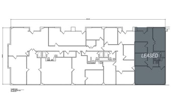
1801-1823 Brightseat Rd - 1st Floor - Ste 1801
1801-1823 Brightseat Rd - 1st Floor - Ste 1807
1801-1823 Brightseat Rd - 1st Floor - Ste 1801
| Size | 3,500 SF |
| Term | Negotiable |
| Rental Rate | Upon Request |
| Space Use | Office |
| Build-Out | Full Build-Out |
| Available | 30 Days |
Three office condos (Units 1801-1809) totaling 5,784± SF. Well-maintained business condo park, ideal for small office users. Private exterior entrances. Located in the rapidly growing Largo market, with Northwest Stadium and UM. Capital Region Medical Center. Near numerous amenities, including restaurants, shopping, hotels, medical, professional services and entertainment venues. Immediate access to the Capital Beltway (I-495) and Route 202 (Landover Road). Served by public transit, including Downtown Largo Metro Station (Blue/Silver Lines) and regional bus lines.
- Fully Built-Out as Standard Office
- Mostly Open Floor Plan Layout
- Private exterior entrances
1801-1823 Brightseat Rd - 1st Floor - Ste 1807
| Size | 1,142 SF |
| Term | Negotiable |
| Rental Rate | Upon Request |
| Space Use | Office |
| Build-Out | Full Build-Out |
| Available | 30 Days |
Three office condos (Units 1801-1809) totaling 5,784± SF. Well-maintained business condo park, ideal for small office users. Private exterior entrances. Located in the rapidly growing Largo market, with Northwest Stadium and UM. Capital Region Medical Center. Near numerous amenities, including restaurants, shopping, hotels, medical, professional services and entertainment venues. Immediate access to the Capital Beltway (I-495) and Route 202 (Landover Road). Served by public transit, including Downtown Largo Metro Station (Blue/Silver Lines) and regional bus lines.
- Fully Built-Out as Standard Office
- Mostly Open Floor Plan Layout
- Private exterior entrances
Select Tenants at This Property
- Floor
- Tenant Name
- Industry
- 1st
- Back To Basics Music Ministry
- Services
- 1st
- Tri Tech Enterprise Systems
- Professional, Scientific, and Technical Services
Park Overview
95 Office Park is a well-maintained business condo park in the growing Largo area of Prince George’s County. It offers office suites that are ideal for small users or owner/users. Each building in 95 Office Park is two stories. Suites have their own private exterior entrances and range in size. 95 Office Park is located in Largo, the heart of Prince George's County and home to many exciting new regional developments, including the new UM Capital Region Medical Center. The site has a great location off Route 202 (Landover Road) with immediate access to the Capital Beltway (I-495). Largo is home to numerous amenities, such as Northwest Stadium, Woodmore Town Center, and the Downtown Largo Metro station.
Presented by
95 Office Park | Landover, MD 20785
Hmm, there seems to have been an error sending your message. Please try again.
Thanks! Your message was sent.









