Log In/Sign Up
Your email has been sent.
1805 NW 22nd Ct
Miami, FL 33125
1805 NW 22nd Ct, Miami, FL 33125-1305 · Multifamily Property For Sale
·
2 Units


Investment Highlights
- Brand-New Luxury Construction. Fully permitted contemporary quadplex featuring high end finishes. Impact windows. EV-ready. Superior build quality.
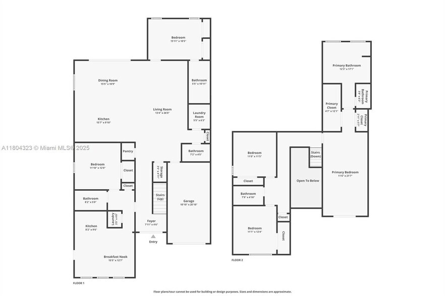
- 7,000+ SF of premium space. Nearly 3,000 SF per residence, each offering 5 beds / 4.5 baths for versatile occupancy.
- Premier Miami River District Location Minutes from Brickell, Downtown Miami, Wynwood, Midtown, Health District, Civic Center, and MIA Airport.
- Four legal income-producing units: Two duplexes each with a private 1/1 suite, offering strong rental flexibility.
- Strong Investment Efficiency All units separate meters, secure gate, garages, and multiple parking options.
- Exceptional Appreciation & Demand Zone Surrounded by major medical, commercial, and residential expansion, driving strong rental absorption.
Executive Summary
Exceptional Contemporary Quadplex in the Heart of Miami’s Urban Core | Prime Miami River Location – Center of Transformative Growth
Discover a rare, architecturally impressive multifamily asset located just steps from the Miami River—an area experiencing some of the most dynamic redevelopment in the entire city. This brand-new, fully permitted contemporary quadplex offers more than 7,000 SF of high-end construction, designed with both elegance and investment performance in mind.
The property is composed of two modern duplex-style townhomes, each thoughtfully enhanced with a private, fully independent mother-in-law suite, creating four legal units with exceptional income versatility. Each main residence features nearly 3,000 SF of sophisticated living space with soaring ceiling heights, expansive impact windows that flood the interiors with natural light, and open-concept layouts ideal for today’s renters. The chef-inspired kitchens showcase large waterfall islands, granite countertops, custom cabinetry, and stainless-steel appliances, complemented by 4 bedrooms and 3.5 baths finished with premium materials.
Every townhouse also includes a spacious 1/1 first-floor studio with its own entrance and living area, making each side a complete 5 bed / 4.5 bath offering—perfect for long-term tenants, short-term rentals, or multigenerational living. Designed for effortless management, all units come with separate water and electrical meters, and the property includes high-ceiling garages, private and street parking options, an electric security gate, and EV-ready infrastructure, ensuring long-term operational efficiency and future-proof appeal.
Positioned just west of the Miami River, the property sits within one of Miami’s highest-demand growth corridors, surrounded by large-scale redevelopment and infrastructure investment. Its central location offers unmatched access to key urban hubs, including the Miami Health District and Civic Center, Downtown Miami and Brickell, the cultural centers of Wynwood, Midtown, and the Design District, and immediate connectivity to major highways such as 836, I-95, and SR-112. Miami International Airport is only minutes away, making the location ideal for local and international tenants alike.
This rapidly evolving district has become a magnet for medical professionals, business travelers, high-demand renters, and investors seeking stable income with strong appreciation potential. With its exceptional design, multi-unit flexibility, separated utilities, and strategic position in one of Miami’s most promising urban corridors, stands out as a premier, income-producing asset with significant long-term upside.
A rare opportunity to own a contemporary, high-performing multifamily property in the center of Miami’s future.
Discover a rare, architecturally impressive multifamily asset located just steps from the Miami River—an area experiencing some of the most dynamic redevelopment in the entire city. This brand-new, fully permitted contemporary quadplex offers more than 7,000 SF of high-end construction, designed with both elegance and investment performance in mind.
The property is composed of two modern duplex-style townhomes, each thoughtfully enhanced with a private, fully independent mother-in-law suite, creating four legal units with exceptional income versatility. Each main residence features nearly 3,000 SF of sophisticated living space with soaring ceiling heights, expansive impact windows that flood the interiors with natural light, and open-concept layouts ideal for today’s renters. The chef-inspired kitchens showcase large waterfall islands, granite countertops, custom cabinetry, and stainless-steel appliances, complemented by 4 bedrooms and 3.5 baths finished with premium materials.
Every townhouse also includes a spacious 1/1 first-floor studio with its own entrance and living area, making each side a complete 5 bed / 4.5 bath offering—perfect for long-term tenants, short-term rentals, or multigenerational living. Designed for effortless management, all units come with separate water and electrical meters, and the property includes high-ceiling garages, private and street parking options, an electric security gate, and EV-ready infrastructure, ensuring long-term operational efficiency and future-proof appeal.
Positioned just west of the Miami River, the property sits within one of Miami’s highest-demand growth corridors, surrounded by large-scale redevelopment and infrastructure investment. Its central location offers unmatched access to key urban hubs, including the Miami Health District and Civic Center, Downtown Miami and Brickell, the cultural centers of Wynwood, Midtown, and the Design District, and immediate connectivity to major highways such as 836, I-95, and SR-112. Miami International Airport is only minutes away, making the location ideal for local and international tenants alike.
This rapidly evolving district has become a magnet for medical professionals, business travelers, high-demand renters, and investors seeking stable income with strong appreciation potential. With its exceptional design, multi-unit flexibility, separated utilities, and strategic position in one of Miami’s most promising urban corridors, stands out as a premier, income-producing asset with significant long-term upside.
A rare opportunity to own a contemporary, high-performing multifamily property in the center of Miami’s future.
Property Facts
| Price Per Unit | $2,222,740 CAD | Lot Size | 0.20 AC |
| Sale Type | Investment | Building Size | 7,138 SF |
| No. Units | 2 | No. Stories | 2 |
| Property Type | Multifamily | Year Built | 2025 |
| Property Subtype | Apartment | Parking Ratio | 0.28/1,000 SF |
| Building Class | C | ||
| Zoning | 5700/DUPLEXES - GENERAL | ||
| Price Per Unit | $2,222,740 CAD |
| Sale Type | Investment |
| No. Units | 2 |
| Property Type | Multifamily |
| Property Subtype | Apartment |
| Building Class | C |
| Lot Size | 0.20 AC |
| Building Size | 7,138 SF |
| No. Stories | 2 |
| Year Built | 2025 |
| Parking Ratio | 0.28/1,000 SF |
| Zoning | 5700/DUPLEXES - GENERAL |
Amenities
Site Amenities
- Fenced Lot
- Guest Apartment
Unit Mix Information
| Description | No. Units | Avg. Rent/Mo | SF |
|---|---|---|---|
| 4+3.5 | 2 | - | 3,000 |
| Studios | 2 | - | - |
Property Taxes
| Parcel Number | 01-3134-027-0540 | Improvements Assessment | $0 CAD |
| Land Assessment | $0 CAD | Total Assessment | $341,457 CAD |
Property Taxes
Parcel Number
01-3134-027-0540
Land Assessment
$0 CAD
Improvements Assessment
$0 CAD
Total Assessment
$341,457 CAD
1 of 47
Videos
Matterport 3D Exterior
Matterport 3D Tour
Photos
Street View
Street
Map
